検索条件該当物件数:2件
| 販売価格 |
3580万円 |
|---|---|
| 月々の支払額 |
95,727円 |
| 所在地 | 東京都荒川区町屋7丁目 |
| 沿線・駅 | 町屋駅 徒歩17分 |
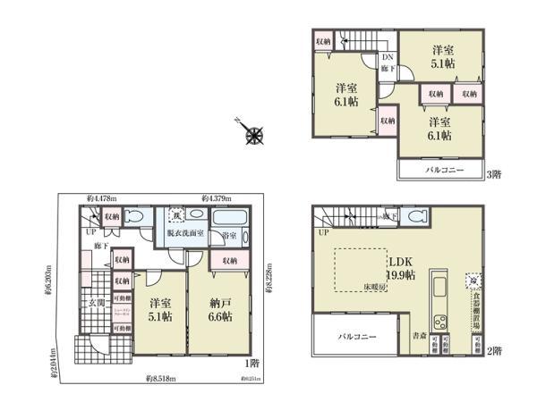
| 土地面積 | 39.75 m2 |
| 建物面積 | 87.77 m2 |
| 間取り | 4SLDK |
| 販売価格 |
8499万円~9299万円 |
|---|---|
| 月々の支払額 |
227,258円 |
| 所在地 | 東京都荒川区町屋6丁目 |
| 沿線・駅 | 町屋駅 徒歩13分 |
| 建物面積 | 108.67~113.02 m2 |
| 土地面積 | 79.04~89.04 m2 |
| 間取り | 3LDK+S~4LDK+S |

- 1



