江戸川区春江町5丁目 中古一戸建て
月々の支払い
0円
| 物件価格 | 万円 |
|---|---|
| 自己資金 (頭金) |
万円 |
| 金利 | % |
| 返済年数 |
40年(NEW) 35年(一般的) 30年 |
※返済金額はあくまでも目安の数値となります。詳しくは下記よりご相談ください。
資金計画相談お問い合わせ ▶ 篠崎店
0120-664-511
| 価格 | 4280万円 (税込) |
| 所在地 | 東京都江戸川区春江町5丁目 |
| 沿線・駅 | 都営新宿線一之江駅 徒歩14分 東京メトロ東西線葛西駅バス6分 都営バス 「三角」バス停 停歩9分 JR総武本線新小岩駅バス30分 都営バス 「葛西工科高校前」バス停 停歩9分 |
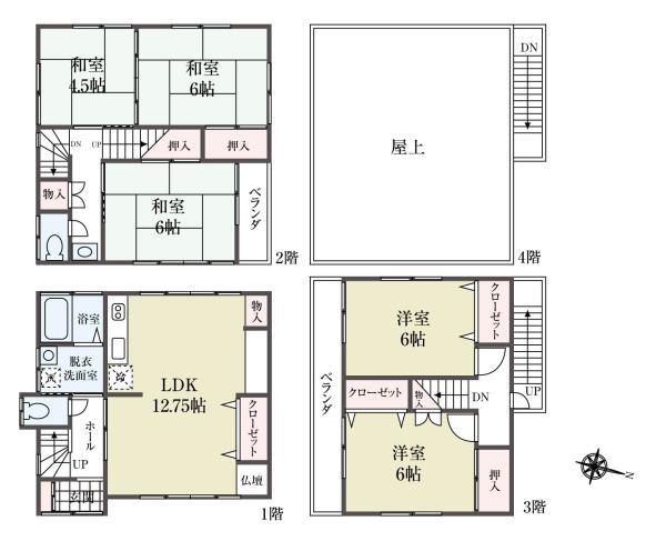
| 建物面積 | 102.99m2(31.15坪) |
| 間取り | 5LDK |
間取り・区画図
おすすめポイント
即日ご案内致します!ハウスプラザ篠崎店
【おかげさまでグーグル口コミ☆4.9】
【一之江駅徒歩14分】【船堀駅徒歩15分】【両面道路に接道】
【間取り5LDK】【居室広々】【ルーフバルコニー】
【営業が感じたここがオススメポイント】
・まずは何といっても都営新宿線「一之江」駅徒歩14分の日当たり通風良好な好立地
・都営新宿線「船堀」駅徒歩15分の2駅利用が可能
・現況空室のため、いつでもご見学いただけます
・東・西の二面道路に面した、車通りの少ない安心安全な住環境
・各お部屋の広さは十分に確保しており、収納スペースは充実
・1階リビングフロアは12帖超えの家具の配置がしやすい広々空間
・ワイドバルコニーでたくさんの洗濯物を干すことができます
・ルーフバルコニーからの眺望はとても良好です
・ローンのご相談はいつでもハウスプラザ篠崎店にお任せください!
【生活環境良好な住環境】
江戸川区には住宅地域が広がり、区内には幼稚園や保育園、小中学校なども充実しており、子育て世代にも優しい環境です。大小さまざまな公園が存在し、自然が豊かで過ごしやすい環境が整っています
物件詳細
| 所在地 | 東京都江戸川区春江町5丁目13 | ||
|---|---|---|---|
| 交通 | 都営新宿線一之江駅 徒歩14分 東京メトロ東西線葛西駅バス6分 都営バス 「三角」バス停 停歩9分 JR総武本線新小岩駅バス30分 都営バス 「葛西工科高校前」バス停 停歩9分 |
||
| 総戸数 | 1戸 | ||
| 販売戸数 | 1戸 | ||
| 価格 | 4280万円 (税込) | ||
| 土地面積 | 53.00m2(16.03坪) | ||
| 建物面積 | 102.99m2(31.15坪) | ||
| 土地権利 | 所有権 | ||
| 間取り | 5LDK | ||
| 築年月 | 平成4年9月 | ||
| 構造 | 木造 地上3階建て | ||
| 都市計画 | 市街化 | ||
| 用途地域 | 第1種住居地域 | ||
| 建ぺい率/容積率 | 60% / 160% | ||
| 地目 | 宅地 | ||
| 接道 | 西側 2.20m 公道 接面7.60m | ||
| 私道負担 | 有(面積:16.00m²(4.84坪)) |
||
| 現況 | 完成済 | ||
| 設備 | 都市ガス 公営水道 公共下水 | ||
| 入居年月 | 相談 | ||
| 取引形態 | 媒介 | ||
| 備考 | 景観法、航空法、宅地造成工事規制区域、準防火地域、敷地面積最低限度有、日影制限有、第二種高度地区、【現況】空室、【接道】東側:建築基準法外道路、建蔽率・容積率超過 | ||
| 更新日 | 2026年3月23日 | ||
| 次回更新予定日 | 2026年4月8日 | ||
| 取引有効期限 | 2026年04月08日 | ||
周辺環境
| 施設 | 江戸川区立二之江第二小学校 189m 江戸川区立二之江中学校 510m コモディイイダ 西瑞江環七店 670m セブン-イレブン 江戸川春江町5丁目店 228m ドラッグセイムス 春江5丁目店 158m タムスわんぱく保育園船堀 443m 春江おひさま保育園 578m 二ノ江幼稚園 425m 江戸川区立船堀幼稚園 959m 春江五丁目南公園 66m 春江五丁目公園 414m 三角診療所 689m 葛西中央病院 803m ライフ 船堀店 258m |
||
|---|---|---|---|
| 周辺の物件検索 | |||
現地見学会情報
月々の支払い
0円
| 物件価格 | 万円 |
|---|---|
| 自己資金 (頭金) |
万円 |
| 金利 | % |
| 返済年数 |
40年(NEW) 35年(一般的) 30年 |
※返済金額はあくまでも目安の数値となります。詳しくは下記よりご相談ください。
資金計画相談お問い合わせ 篠崎店
0120-664-511















































