江戸川区中央2丁目 新築一戸建て
月々の支払い
0円
| 物件価格 | 万円 |
|---|---|
| 自己資金 (頭金) |
万円 |
| 金利 | % |
| 返済年数 |
40年(NEW) 35年(一般的) 30年 |
※返済金額はあくまでも目安の数値となります。詳しくは下記よりご相談ください。
資金計画相談お問い合わせ ▶ 篠崎店
0120-664-511
| 価格 | 6998万円 (税込) |
| 所在地 | 東京都江戸川区中央2丁目 |
| 沿線・駅 | JR総武本線新小岩駅 徒歩30分 東京メトロ東西線葛西駅バス24分 都営バス 「同潤会」バス停 停歩4分 都営新宿線船堀駅バス12分 都営バス 「京葉交差点」バス停 停歩10分 |
| 建物面積 | 118.03m2(35.7坪) うち1F車庫 面積:12.73m2 |
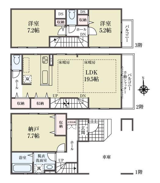
| 間取り | 2LDK+S |
間取り・区画図
おすすめポイント
即日ご案内致します!ハウスプラザ篠崎店
【おかげさまでグーグル口コミ☆4.9】
【デザイナーズハウス】【リビングフロア19帖以上】【大型パントリースペース】
【住宅設備・収納充実】【生活環境良好】
【営業が感じたここがオススメポイント】
・まずは何といってもお洒落な収納スペースが大変豊富なデザイナーズハウス
・いつでも現地やモデルハウスまでご案内いたします
・前面道路は広々9m公道面に面した車通りの少ない安心安全な住環境です
・各お部屋の広さは十分に確保しており、収納スペースは充実
・2階リビングフロアは19帖超えの家具の配置がしやすい広々空間
・2階リビング水廻り集約のママ楽家事動線プランを採用
・あったら嬉しい大型キッチンパントリースペース
・食洗器付きシステムキッチンや床暖房、浴室乾燥機など住宅設備は充実
・頭金0円からご購入が可能です
【生活環境良好な住環境】
新小岩駅周辺には駅直結の「シャポー新小岩」や24時間営業の「西友」「サミットストア」が点在!昔ながらの洋食店や青果店が軒を連ねる「ルミエール商店街」が日常を彩ります
物件詳細
| 所在地 | 東京都江戸川区中央2丁目1107-5 | ||
|---|---|---|---|
| 交通 | JR総武本線新小岩駅 徒歩30分 東京メトロ東西線葛西駅バス24分 都営バス 「同潤会」バス停 停歩4分 都営新宿線船堀駅バス12分 都営バス 「京葉交差点」バス停 停歩10分 |
||
| 総戸数 | 1戸 | ||
| 販売戸数 | 1戸 | ||
| 価格 | 6998万円 (税込) | ||
| 土地面積 | 70.03m2(21.18坪) | ||
| 建物面積 | 118.03m2(35.7坪) うち1F車庫 面積:12.73m2 | ||
| 土地権利 | 所有権 | ||
| 間取り | 2LDK+S | ||
| 築年月 | 令和8年4月 | ||
| 構造 | 木造 地上3階建て | ||
| 都市計画 | 市街化 | ||
| 用途地域 | 準工業地域 | ||
| 建ぺい率/容積率 | 60% / 200% | ||
| 地目 | 宅地 | ||
| 接道 | 東側 9.14m 公道 | ||
| 私道負担 | 無 |
||
| 現況 | 未完成 | ||
| 設備 | 都市ガス 公営水道 公共下水 | ||
| 入居年月 | 期日指定 2026年4月中旬 | ||
| 取引形態 | 媒介 | ||
| 備考 | 第KBI-YKH25-10-2802号 景観法、航空法、宅地造成工事規制区域、準防火地域、敷地面積最低限度有、日影制限有、第二種高度地区 | ||
| 更新日 | 2026年3月26日 | ||
| 次回更新予定日 | 2026年4月11日 | ||
| 取引有効期限 | 2026年04月11日 | ||
周辺環境
| 施設 | 江戸川区立大杉小学校 359m 江戸川区立松江第三中学校 925m アタック 中央店 569m セブン-イレブン 江戸川中央2丁目店 303m スギドラッグ 江戸川南店 284m 大杉保育園 237m しおどめ保育園 江戸川中央 245m 大杉神明幼稚園 316m 東小松川幼稚園 895m 大杉公園 291m 大杉一丁目公園 392m 広見医院 91m 鈴木医院 422m まいばすけっと 江戸川中央2丁目店 267m |
||
|---|---|---|---|
| 周辺の物件検索 | |||
現地見学会情報
月々の支払い
0円
| 物件価格 | 万円 |
|---|---|
| 自己資金 (頭金) |
万円 |
| 金利 | % |
| 返済年数 |
40年(NEW) 35年(一般的) 30年 |
※返済金額はあくまでも目安の数値となります。詳しくは下記よりご相談ください。
資金計画相談お問い合わせ 篠崎店
0120-664-511














































