豊島区千早4丁目 新築一戸建て
月々の支払い
0円
| 物件価格 | 万円 |
|---|---|
| 自己資金 (頭金) |
万円 |
| 金利 | % |
| 返済年数 |
40年(NEW) 35年(一般的) 30年 |
※返済金額はあくまでも目安の数値となります。詳しくは下記よりご相談ください。
資金計画相談お問い合わせ ▶ 池袋店
0120-954-387
| 価格 | 1億480万円 (税込) |
| 所在地 | 東京都豊島区千早4丁目 |
| 沿線・駅 | 東京メトロ有楽町線千川駅 徒歩7分 西武池袋線東長崎駅 徒歩10分 東京メトロ副都心線小竹向原駅 徒歩12分 |
| 建物面積 | 109.50m2(33.12坪) うち1F車庫 面積:9.93m2 |
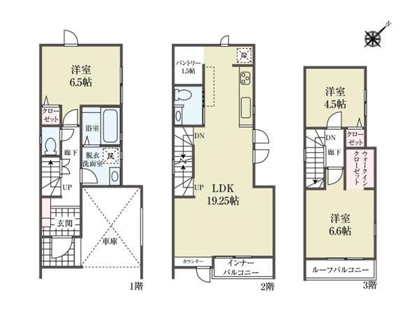
| 間取り | 3LDK |
間取り・区画図
おすすめポイント
ZEH水準新築戸建て×駅2路線利用×19帖超大型3DLK×太陽パネル
有楽町線「千川」駅より徒歩8分。断熱等級6かつZEH水準の新築戸建て。
池袋方面へのアクセスを身近にしながら、落ち着いた住環境で家族の時間をゆったり育める邸宅です。
南側道路に接する3LDKで、LDKは約19.25帖の広さを確保。
断熱等級6かつZEH水準の省エネ性能を備え、ランニングコストも考慮されています。
30年間の長期メンテナンスプランを用意しており、維持管理面も考慮。
パントリーやWIC、インナーバルコニー等、利便性を高める設備も充実。
サミットストアや小学校が徒歩圏内に揃う住環境です。
東京ゼロエミ適合住宅!東京都の予算上限もありますので、詳しくは担当までお尋ねください。
物件詳細
| 所在地 | 東京都豊島区千早4丁目16 | ||
|---|---|---|---|
| 交通 | 東京メトロ有楽町線千川駅 徒歩7分 西武池袋線東長崎駅 徒歩10分 東京メトロ副都心線小竹向原駅 徒歩12分 |
||
| 総戸数 | 1戸 | ||
| 販売戸数 | 1戸 | ||
| 価格 | 1億480万円 (税込) | ||
| 土地面積 | 69.22m2(20.93坪) | ||
| 建物面積 | 109.50m2(33.12坪) うち1F車庫 面積:9.93m2 | ||
| 土地権利 | 所有権 | ||
| 間取り | 3LDK | ||
| 築年月 | 令和8年4月 | ||
| 構造 | 木造 地上3階建て | ||
| 都市計画 | 市街化 | ||
| 用途地域 | 第1種中高層住居専用地域 | ||
| 建ぺい率/容積率 | 70% / 160% | ||
| 地目 | 宅地 | ||
| 接道 | 南東側 3.70m 公道 | ||
| 私道負担 | 無 |
||
| 現況 | 未完成 | ||
| 設備 | 都市ガス 公営水道 公共下水 | ||
| 入居年月 | 期日指定 2026年4月下旬 | ||
| 取引形態 | 媒介 | ||
| 備考 | 第25UDI1W建07406号 準防火地域、第2種高度地区、宅地造成等工事規制区域、【北東側通路有】持分:1.66平米 | ||
| 更新日 | 2026年3月21日 | ||
| 次回更新予定日 | 2026年4月11日 | ||
| 取引有効期限 | 2026年04月11日 | ||
周辺環境
| 施設 | 豊島区立さくら小学校 614m 豊島区立明豊中学校 207m セブンイレブン 豊島長崎6丁目店 215m サミットストア東長崎店 340m 千川駅前商店会 556m 練馬総合病院 800m わかしま内科・消化器科 332m ライフ千川駅前店 575m スーパーオオゼキ千川駅前店 600m 千早子どもの家保育園 366m 豊島区役所 西部子ども家庭支援センター 270m 千早四丁目なかよし広場児童遊園 151m 長崎六丁目児童遊園 319m 豊島区立要町保育園 315m |
||
|---|---|---|---|
| 周辺の物件検索 | |||
現地見学会情報
月々の支払い
0円
| 物件価格 | 万円 |
|---|---|
| 自己資金 (頭金) |
万円 |
| 金利 | % |
| 返済年数 |
40年(NEW) 35年(一般的) 30年 |
※返済金額はあくまでも目安の数値となります。詳しくは下記よりご相談ください。
資金計画相談お問い合わせ 池袋店
0120-954-387










































