江戸川区平井1丁目 中古一戸建て
月々の支払い
0円
| 物件価格 | 万円 |
|---|---|
| 自己資金 (頭金) |
万円 |
| 金利 | % |
| 返済年数 |
40年(NEW) 35年(一般的) 30年 |
※返済金額はあくまでも目安の数値となります。詳しくは下記よりご相談ください。
資金計画相談お問い合わせ ▶ 篠崎店
0120-664-511
| 価格 | 1億7800万円 (税込) |
| 所在地 | 東京都江戸川区平井1丁目 |
| 沿線・駅 | JR中央・総武線平井駅 徒歩12分 都営新宿線東大島駅 徒歩18分 東京メトロ東西線葛西駅バス28分 都営バス 「小松川3丁目」バス停 停歩3分 |
| 建物面積 | 191.18m2(57.83坪) |
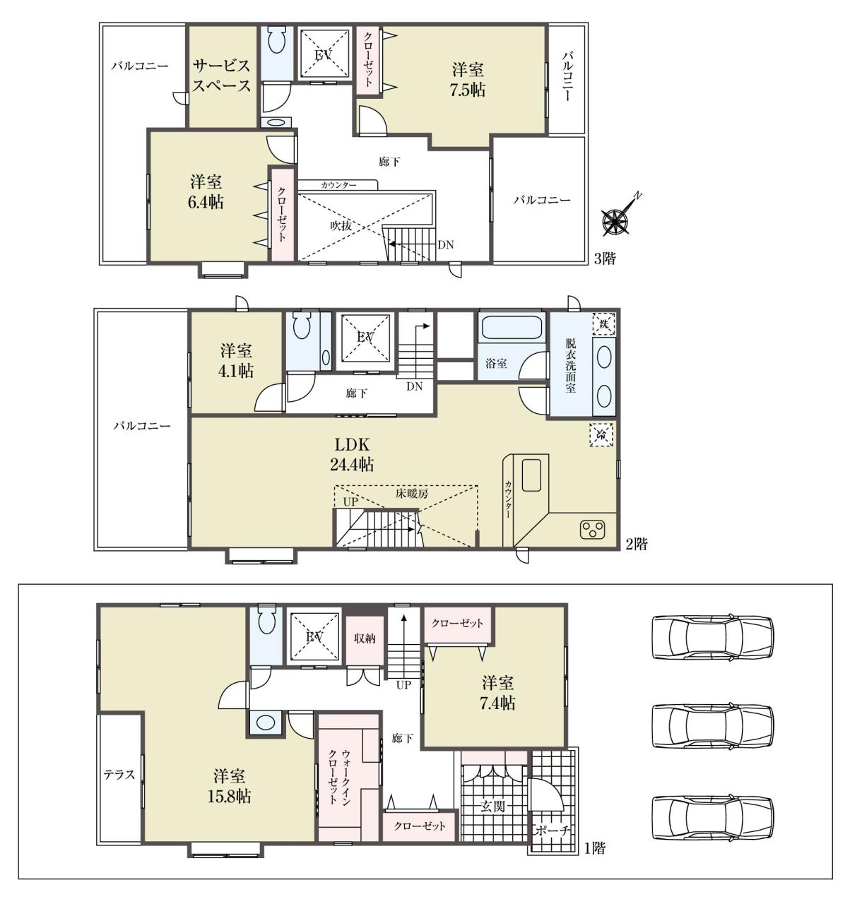
| 間取り | 5LDK+S |
間取り・区画図
おすすめポイント
即日ご案内致します!ハウスプラザ篠崎店
【おかげさまでグーグル口コミ☆4.9】
【平井駅徒歩12分】【ハウスメーカー施工】
【軽量鉄骨造】【リビング24帖超え】【並列3台駐車OK】
【営業が感じたここがオススメポイント】
・まずは何といっても再開発が進むJR総武線「平井」駅徒歩12分の好立地
・フルリフォーム完了いたしました!いつでもご見学いただけます
・お車大好きな方ご注目!カーポート付き!並列駐車3台可能
・へーベルハウス施工の軽量鉄骨造3階建て
・玄関を開けると広々ホールが気持ちいい空間+収納付き
・各お部屋の広さは十分に確保しており、ウォークインクローゼットなど収納スペースは充実
・2階リビングフロアは24帖超えの家具の配置がしやすい広々空間
・2階リビング水廻り集約のママ楽家事動線
・ホームエレベーター付きのお家
・奥行きワイドバルコニーでたくさんの洗濯物を干すことができます
【生活環境良好な住環境】
下町情緒が残るのんびりとした街並みで、大きな繁華街ではないため治安がよく、昔ながらの活気ある商店街もあり買い物・飲食スポットが充実しているので生活には困りません
物件詳細
| 所在地 | 東京都江戸川区平井1丁目2 | ||
|---|---|---|---|
| 交通 | JR中央・総武線平井駅 徒歩12分 都営新宿線東大島駅 徒歩18分 東京メトロ東西線葛西駅バス28分 都営バス 「小松川3丁目」バス停 停歩3分 |
||
| 総戸数 | 1戸 | ||
| 販売戸数 | 1戸 | ||
| 価格 | 1億7800万円 (税込) | ||
| 土地面積 | 171.23m2(51.79坪) | ||
| 建物面積 | 191.18m2(57.83坪) | ||
| 土地権利 | 所有権 | ||
| 間取り | 5LDK+S | ||
| 築年月 | 平成20年7月 | ||
| 構造 | 軽量鉄骨 地上3階建て | ||
| 都市計画 | 市街化 | ||
| 用途地域 | 近隣商業地域 | ||
| 建ぺい率/容積率 | 80% / 300% | ||
| 地目 | 宅地 | ||
| 接道 | 北東側 29.00m 公道 接面7.90m | ||
| 私道負担 | 無 |
||
| 現況 | 完成済 | ||
| 設備 | 都市ガス 公営水道 公共下水 | ||
| 入居年月 | 即時 | ||
| 取引形態 | 媒介 | ||
| 備考 | 2025/12 内装リフォーム済・浴室・トイレ・壁・床・全室・洗面所・建具・ 全面 2026/02 外装リフォーム済・外壁・屋根 景観法、航空法、宅地造成工事規制区域、防火地域、敷地面積最低限度有、高さ最低限度有、【現況】空室 |
||
| 更新日 | 2026年3月20日 | ||
| 次回更新予定日 | 2026年4月8日 | ||
| 取引有効期限 | 2026年04月08日 | ||
周辺環境
| 施設 | 江戸川区立小松川小学校 487m 江戸川区立小松川第二中学校 570m ビッグ・エー 江戸川小松川店 323m ローソン 小松川三丁目店 99m どらっぐぱぱす 小松川店 301m Kerria International School 430m 小松川第二保育園 436m 東京聖書バプテスト教会 附属シオン幼児学園 541m スポーツ幼児園 One Step 923m 平井二丁目公園 191m 小松川たんぽぽ公園 367m 北浦医院 150m 中川医院 267m まいばすけっと 平井1丁目店 198m |
||
|---|---|---|---|
| 周辺の物件検索 | |||
現地見学会情報
月々の支払い
0円
| 物件価格 | 万円 |
|---|---|
| 自己資金 (頭金) |
万円 |
| 金利 | % |
| 返済年数 |
40年(NEW) 35年(一般的) 30年 |
※返済金額はあくまでも目安の数値となります。詳しくは下記よりご相談ください。
資金計画相談お問い合わせ 篠崎店
0120-664-511
































































