足立区綾瀬2丁目 新築一戸建て/全9棟
| 価格 | 6580万円~6880万円 (税込) |
| 所在地 | 東京都足立区綾瀬2丁目 |
| 沿線・駅 | 東京メトロ千代田線綾瀬駅 徒歩9分 京成本線堀切菖蒲園駅 徒歩18分 東武伊勢崎線小菅駅 徒歩24分 |
| 建物面積 | 75.27m2(22.76坪)~97.43m2(29.47坪) |
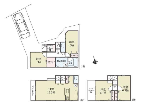
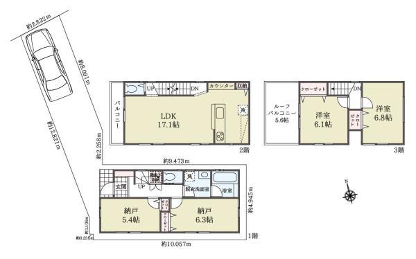
| 間取り | 2LDK+2S~4LDK |
各棟情報
おすすめポイント
今からモデルハウス見れます!【グーグル口コミ☆4.4】【諸条件相談可】
□■営業のおすすめポイント■□
・東京メトロ綾瀬駅徒歩9分の始発駅利用可能な立地
・綾瀬小学校まで約徒歩6分の立地の為、安心して通わせることができます。
・大型のバルコニー付きの為、ゆとりのある心地良い空間です!
・標準仕様で床暖房、カーテンレール、網戸、浴室乾燥機、食洗器もついております
・1階にウォークインクローゼットもついている為、収納豊富もなっております(C号棟)
・カラーセレクトも可能となっております(※時期によります)
プレゼンテーション予約受付中となっておりますので、お問い合わせの際にご希望日時をお伝えください!
物件詳細
| 所在地 | 東京都足立区綾瀬2丁目39 | ||
|---|---|---|---|
| 交通 | 東京メトロ千代田線綾瀬駅 徒歩9分 京成本線堀切菖蒲園駅 徒歩18分 東武伊勢崎線小菅駅 徒歩24分 |
||
| 総戸数 | 9戸 | ||
| 販売戸数 | 3戸 | ||
| 価格 | 6580万円~6880万円 (税込) | ||
| 土地面積 | 70.00m2(21.17坪)~79.56m2(24.06坪) | ||
| 建物面積 | 75.27m2(22.76坪)~97.43m2(29.47坪) | ||
| 土地権利 | 所有権 | ||
| 間取り | 2LDK+2S~4LDK | ||
| 築年月 | 令和8年8月 | ||
| 構造 | 木造 地上3階 | ||
| 都市計画 | 市街化 | ||
| 用途地域 | 第1種中高層住居専用地域 | ||
| 建ぺい率/容積率 | 70%/160% | ||
| 地目 | 宅地 | ||
| 接道 | 北側 4.00m 公道 南側 4.00m 私道 |
||
| 私道負担 | 無 |
||
| 現況 | 未完成 | ||
| 設備 | 都市ガス 公営水道 公共下水 | ||
| 入居年月 | 期日指定 2026年8月下旬 | ||
| 取引形態 | 媒介 | ||
| 備考 | 第25UDI1T建05087号 他 準防火地域、第3種高度地区、宅地造成等工事規制区域、【路地状面積】19.37平米(C号棟)・35.89平米(D号棟)含む、【私道負担】他有:10平米×14/16×1/3(I号棟)、【完成年月】2026年6月中旬(C号棟) | ||
| 更新日 | 2026年3月23日 | ||
| 次回更新予定日 | 2026年4月10日 | ||
| 開発面積 | |||
| 取引有効期限 | 2026年04月10日 | ||
周辺環境
| 施設 | 足立区立綾瀬小学校 500m 足立区立東綾瀬中学校 800m タウンショップシライ 260m まいばすけっと 綾瀬南店 210m ビーンズ亀有 2000m 堀切中央病院 650m 綾瀬東口医院 350m ビッグ・エー綾瀬店 500m セブンイレブン 足立綾瀬2丁目東店 400m 綾南公園 400m たけのこ保育園 450m 普賢寺公園 58m 綾瀬二丁目ふれあい公園 190m ぽけっとランド綾瀬 400m |
||
|---|---|---|---|
| 周辺の物件検索 | |||
現地見学会情報
お支払いローンシミュレーション
月々の支払い
0円
| 物件価格 | 万円 |
|---|---|
| 自己資金 (頭金) |
万円 |
| 金利 | % |
| 返済年数 |
40年(NEW) 35年(一般的) 30年 |
※返済金額はあくまでも目安の数値となります。詳しくは下記よりご相談ください。
資金計画相談お問い合わせ 本店(営業部)
0120-566-877

















































