浦安市今川3丁目 新築一戸建て/全2棟 1号棟
月々の支払い
0円
| 物件価格 | 万円 |
|---|---|
| 自己資金 (頭金) |
万円 |
| 金利 | % |
| 返済年数 |
40年(NEW) 35年(一般的) 30年 |
※返済金額はあくまでも目安の数値となります。詳しくは下記よりご相談ください。
資金計画相談お問い合わせ ▶ 浦安店
0120-980-611
| 価格 | 7980万円 (税込) |
| 所在地 | 千葉県浦安市今川3丁目 |
| 沿線・駅 | JR京葉線新浦安駅 徒歩20分 東京メトロ東西線浦安駅バス16分 「サンコーポ東口」バス停 停歩8分 JR中央・総武線本八幡駅バス44分 「新浦安駅北口」バス停 停歩22分 |
| 建物面積 | 99.30m2(30.03坪) |
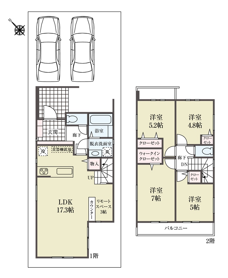
| 間取り | 4LDK |
間取り・区画図
おすすめポイント
【本日見学できます!】
土地面積118m2の駐車2台可能な2階建て住宅!
~ おすすめポイント ~
〇敷地面積35坪超えのゆとりある住宅!
〇並列駐車2台可能!
〇食器洗浄機やEVコンセント等の設備が充実してます!
〇目の前の道路が5m以上もある車庫入れらくらく住宅!
〇南側隣地が公園の為開放感を感じることができる陽当たり良好住宅!
〇1階はLDKと作業スペース合わせては20帖以上ある明るくゆったりとした空間!
〇デザインや間取にこだわった生活のしやすい住宅です。
〇ウォークインクローゼットやLDK収納のある収納スペースが充実した住宅!
〇LDKには折り上げ天井がある為デザイン性の高い空間です。
ぜひ1度ご見学ください。
24時間365日ご対応可能です!
お気軽にお問合せください。
物件詳細
| 所在地 | 千葉県浦安市今川3丁目10 | ||
|---|---|---|---|
| 交通 | JR京葉線新浦安駅 徒歩20分 東京メトロ東西線浦安駅バス16分 「サンコーポ東口」バス停 停歩8分 JR中央・総武線本八幡駅バス44分 「新浦安駅北口」バス停 停歩22分 |
||
| 総戸数 | 2戸 | ||
| 販売戸数 | 1戸 | ||
| 価格 | 7980万円 (税込) | ||
| 土地面積 | 118.34m2(35.79坪) | ||
| 建物面積 | 99.30m2(30.03坪) | ||
| 土地権利 | 所有権 | ||
| 間取り | 4LDK | ||
| 築年月 | 令和8年4月 | ||
| 構造 | 木造 地上2階建て | ||
| 都市計画 | 市街化 | ||
| 用途地域 | 第1種低層住居専用地域 | ||
| 建ぺい率/容積率 | 50% / 100% | ||
| 地目 | 宅地 | ||
| 接道 | 北東側 5.73m 公道 | ||
| 私道負担 | 無 |
||
| 現況 | 未完成 | ||
| 設備 | 都市ガス 公営水道 公共下水 | ||
| 入居年月 | 期日指定 2026年4月下旬 | ||
| 取引形態 | 媒介 | ||
| 備考 | 第BNV確済25-924号 法第22条区域、宅地造成工事規制区域、日影制限有 | ||
| 更新日 | 2026年3月19日 | ||
| 次回更新予定日 | 2026年4月9日 | ||
| 取引有効期限 | 2026年04月09日 | ||
周辺環境
| 施設 | 浦安市立見明川小学校 1423m 浦安市立見明川中学校 1287m セブンイレブン 浦安今川4丁目店 581m ワイズマートディスカ高洲店 727m ライフガーデン新浦安 1089m 吉野クリニック 522m あきやまクリニック 706m オーケー 新浦安店 1306m セブンイレブン 浦安鉄鋼通り店 659m 浦安市立高洲保育園 672m 浦安市立少年の広場 185m 今川第2児童公園 65m 渋谷教育学園浦安幼稚園 626m |
||
|---|---|---|---|
| 周辺の物件検索 | |||
現地見学会情報
月々の支払い
0円
| 物件価格 | 万円 |
|---|---|
| 自己資金 (頭金) |
万円 |
| 金利 | % |
| 返済年数 |
40年(NEW) 35年(一般的) 30年 |
※返済金額はあくまでも目安の数値となります。詳しくは下記よりご相談ください。
資金計画相談お問い合わせ 浦安店
0120-980-611

































