江戸川区東小岩3丁目 中古一戸建て
月々の支払い
0円
| 物件価格 | 万円 |
|---|---|
| 自己資金 (頭金) |
万円 |
| 金利 | % |
| 返済年数 |
40年(NEW) 35年(一般的) 30年 |
※返済金額はあくまでも目安の数値となります。詳しくは下記よりご相談ください。
資金計画相談お問い合わせ ▶ 篠崎店
0120-664-511
| 価格 | 3380万円 (税込) |
| 所在地 | 東京都江戸川区東小岩3丁目 |
| 沿線・駅 | 京成本線江戸川駅 徒歩13分 JR中央・総武線小岩駅バス9分 京成バス 「江戸川病院」バス停 停歩4分 都営新宿線篠崎駅バス12分 京成バス 「江戸川病院」バス停 停歩4分 |
| 建物面積 | 86.44m2(26.14坪) |
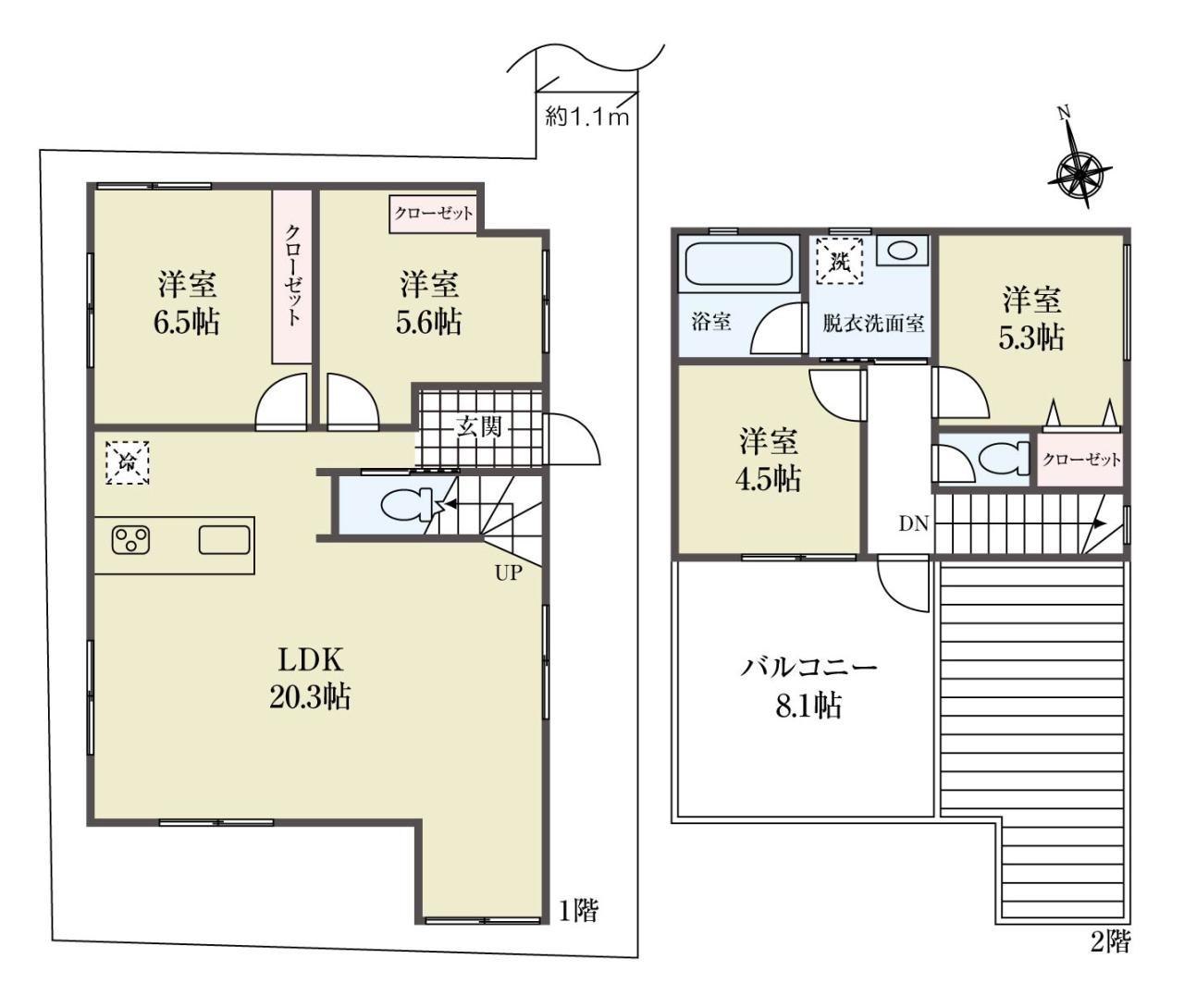
| 間取り | 4LDK |
間取り・区画図
おすすめポイント
即日ご案内致します!ハウスプラザ篠崎店
【おかげさまでグーグル口コミ☆4.9】
【フルリノベーション戸建】【1階リビング20帖超え】【広々バルコニー】
【勾配天井】【住宅設備・収納充実】
【営業が感じたここがオススメポイント】
・まずは何といっても京成本線「江戸川」駅徒歩13分の生活環境良好な好立地
・JR総武線「小岩」駅徒歩17分と2駅2線利用可能!
・いつでも現地までご案内いたします!室内のご見学OK!オール電化住宅
・前面道路は車通りの少ない安心安全な住環境です
・各お部屋の広さは十分に確保しており、収納スペースは充実
・1階リビングフロアは20帖超えの家具の配置がしやすい広々空間+勾配天井採用で開放感アップ
・2階広々バルコニーからの眺望はとても良好です
・耐震工事から基礎補強、外壁から屋根材まですべて新規交換!
・ユニットバスやシステムキッチン、トイレなど、給湯器や宅内の排水管まですべて新規設置
・お引き渡し後も安心の5年保証付き住宅!
・省エネルギー認定「BELS」評価
・ZEH水準住宅+耐震基準適合証明書取得予定
物件詳細
| 所在地 | 東京都江戸川区東小岩3丁目14 | ||
|---|---|---|---|
| 交通 | 京成本線江戸川駅 徒歩13分 JR中央・総武線小岩駅バス9分 京成バス 「江戸川病院」バス停 停歩4分 都営新宿線篠崎駅バス12分 京成バス 「江戸川病院」バス停 停歩4分 |
||
| 総戸数 | 1戸 | ||
| 販売戸数 | 1戸 | ||
| 価格 | 3380万円 (税込) | ||
| 土地面積 | 99.16m2(29.99坪) | ||
| 建物面積 | 86.44m2(26.14坪) | ||
| 土地権利 | 所有権 | ||
| 間取り | 4LDK | ||
| 築年月 | 昭和38年7月 | ||
| 構造 | 木造 地上2階建て | ||
| 都市計画 | 市街化 | ||
| 用途地域 | 第1種住居地域 | ||
| 建ぺい率/容積率 | 60% / 200% | ||
| 地目 | 宅地 | ||
| 接道 | 北側 8.70m 公道 | ||
| 私道負担 | 無 |
||
| 現況 | 完成済 | ||
| 設備 | 公営水道 公共下水 | ||
| 入居年月 | 期日指定 2026年4月下旬 | ||
| 取引形態 | 媒介 | ||
| 備考 | 2026/04 内装リフォーム完了予定・キッチン・浴室・トイレ・壁・床・全室・洗面所・給湯器・給排水管・建具・サッシ・ 全面 2026/04 外装リフォーム完了予定・外壁・屋根 景観法、航空法、宅地造成工事規制区域、準防火地域、敷地面積最低限度有、日影制限有、第二種高度地区、【現況】空室、【接道瑕疵】再建築不可 |
||
| 更新日 | 2026年3月16日 | ||
| 次回更新予定日 | 2026年4月5日 | ||
| 取引有効期限 | 2026年04月05日 | ||
周辺環境
| 施設 | 江戸川区立小岩小学校 431m 江戸川区立小岩第一中学校 171m まいばすけっと 東小岩6丁目店 632m セブン-イレブン 江戸川東小岩4丁目店 500m ドラッグセイムス 南小岩7丁目店 978m キンダーランドPippi 197m 東小岩おひさま保育園 478m 江戸川白百合幼稚園 478m 太陽の子 東小岩保育園 514m 東小岩五丁目児童遊園 485m 東小岩すぎの子児童遊園 500m 江戸川プラスクリニック 162m 江戸川病院 203m まいばすけっと 東小岩3丁目店 374m |
||
|---|---|---|---|
| 周辺の物件検索 | |||
現地見学会情報
月々の支払い
0円
| 物件価格 | 万円 |
|---|---|
| 自己資金 (頭金) |
万円 |
| 金利 | % |
| 返済年数 |
40年(NEW) 35年(一般的) 30年 |
※返済金額はあくまでも目安の数値となります。詳しくは下記よりご相談ください。
資金計画相談お問い合わせ 篠崎店
0120-664-511












































