浦安市富岡4丁目 新築一戸建て/全2棟
| 価格 | 6780万円 (税込) |
| 所在地 | 千葉県浦安市富岡4丁目 |
| 沿線・駅 | JR京葉線新浦安駅 徒歩20分 JR京葉線舞浜駅 徒歩24分 東京メトロ東西線浦安駅バス19分 京成バス千葉ウエスト 「東野中央」バス停 停歩9分 |
| 建物面積 | 99.55m2(30.11坪) |
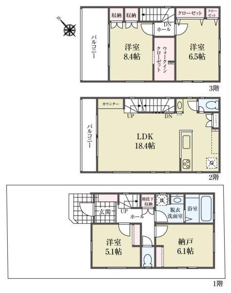
| 間取り | 2LDK+S |
各棟情報
おすすめポイント
【即日案内可能】新浦安駅徒歩圏の新築デザイナーズハウス!!
閑静な住宅地で住環境良好な浦安市富岡4丁目に大容量4LDKタイプの新築デザイナーズハウスが誕生します!
部屋はそれぞれ収納があり空間も大きく全部屋の平均で約6.5帖もあります!!
WIC付きの主寝室は外水栓付きのワイドバルコニーへ繋がっており利便性と開放感があります。
LDKは広々の18帖超!家具の配置がしやすく、ゆとりのある間取りとなっております。
大きな商業施設が周辺にあるため日々の生活にお役立ていただけます!
現在建築中となっているためモデルハウスのご案内、周辺環境等のご案内をしております、お気軽にお問い合わせください。
物件詳細
| 所在地 | 千葉県浦安市富岡4丁目15-9 | ||
|---|---|---|---|
| 交通 | JR京葉線新浦安駅 徒歩20分 JR京葉線舞浜駅 徒歩24分 東京メトロ東西線浦安駅バス19分 京成バス千葉ウエスト 「東野中央」バス停 停歩9分 |
||
| 総戸数 | 2戸 | ||
| 販売戸数 | 2戸 | ||
| 価格 | 6780万円 (税込) | ||
| 土地面積 | 76.99m2(23.28坪) | ||
| 建物面積 | 99.55m2(30.11坪) | ||
| 土地権利 | 所有権 | ||
| 間取り | 2LDK+S | ||
| 築年月 | 令和8年5月 | ||
| 構造 | 木造 地上3階建て | ||
| 都市計画 | 市街化 | ||
| 用途地域 | 第1種住居地域 | ||
| 建ぺい率/容積率 | 60% / 200% | ||
| 地目 | 宅地 | ||
| 接道 | 幅員 4.38m 北西側 4.38m 公道 |
||
| 私道負担 | 無 |
||
| 現況 | 未完成 | ||
| 設備 | 都市ガス 公営水道 公共下水 | ||
| 入居年月 | 期日指定 2026年6月中旬 | ||
| 取引形態 | 媒介 | ||
| 備考 | 第25UDI建05026号他 法22条区域、第二種高度地区 | ||
| 更新日 | 2026年3月13日 | ||
| 次回更新予定日 | 2026年3月28日 | ||
| 開発面積 | |||
| 取引有効期限 | 2026年03月28日 | ||
周辺環境
| 施設 | 浦安市立富岡小学校 847m 浦安市立富岡中学校 775m ファミリーマート ヤックスドラッグ浦安東野店 757m サミットストア ライフガーデン浦安富岡店 459m ライフガーデン新浦安 445m 吉野クリニック 855m 浦安内科消化器クリニック 869m 井上こどもクリニック 1486m ローズタウン歯科クリニック 339m 弁天保育園 575m 浦安市役所 1231m 浦安市中央公園 277m 中央公園 280m 浦安市立富岡幼稚園 560m |
||
|---|---|---|---|
| 周辺の物件検索 | |||
現地見学会情報
月々の支払い
0円
| 物件価格 | 万円 |
|---|---|
| 自己資金 (頭金) |
万円 |
| 金利 | % |
| 返済年数 |
40年(NEW) 35年(一般的) 30年 |
※返済金額はあくまでも目安の数値となります。詳しくは下記よりご相談ください。
資金計画相談お問い合わせ 浦安店
0120-980-611





























