江東区亀戸7丁目 中古一戸建て
月々の支払い
0円
| 物件価格 | 万円 |
|---|---|
| 自己資金 (頭金) |
万円 |
| 金利 | % |
| 返済年数 |
40年(NEW) 35年(一般的) 30年 |
※返済金額はあくまでも目安の数値となります。詳しくは下記よりご相談ください。
資金計画相談お問い合わせ ▶ 錦糸町店
0120-987-419
| 価格 | 8380万円 (税込) |
| 所在地 | 東京都江東区亀戸7丁目 |
| 沿線・駅 | JR中央・総武線亀戸駅 徒歩12分 東武亀戸線亀戸水神駅 徒歩6分 東武亀戸線東あずま駅 徒歩16分 |
| 建物面積 | 90.87m2(27.48坪) |
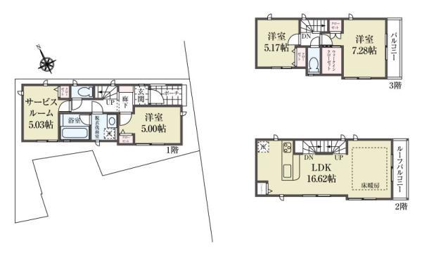
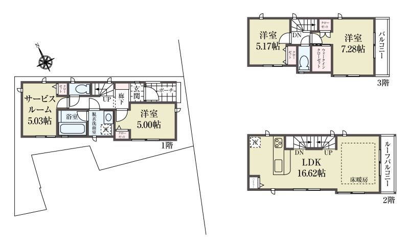
| 間取り | 3LDK+S |
間取り・区画図
おすすめポイント
【亀戸駅12分に築浅3SLDKの戸建てが堂々発表です!!】
◇◆◇おすすめPOINT◇◆◇
・JR総武線「亀戸」駅徒歩12分、東武亀戸線「亀戸水神」駅徒歩6分の2路線2駅利用可能な便利な交通アクセス♪
・目の前に建物がないため、日当たり風通し良好です♪
・家族団欒のLDKスペースは広々16.6帖あり、床暖房付きです。
・収納の数も豊富で、3階にはウォークインクローゼットもついてます♪
・食洗機もついており日々の家事をお助けしてくれます♪
・おかげさまでGoogle口コミ☆5.0 2026年3月
◇◇ご見学予約受付中◇◇
・現地のご見学予約を受付中です。昼夜問わずいつでもご希望の日時をお伝え下さい。
【ハウスプラザ錦糸町店 0120-987-419】まで
お気軽にお問合せ下さい。
物件詳細
| 所在地 | 東京都江東区亀戸7丁目28-1 | ||
|---|---|---|---|
| 交通 | JR中央・総武線亀戸駅 徒歩12分 東武亀戸線亀戸水神駅 徒歩6分 東武亀戸線東あずま駅 徒歩16分 |
||
| 総戸数 | 1戸 | ||
| 販売戸数 | 1戸 | ||
| 価格 | 8380万円 (税込) | ||
| 土地面積 | 65.21m2(19.72坪) | ||
| 建物面積 | 90.87m2(27.48坪) | ||
| 土地権利 | 所有権 | ||
| 間取り | 3LDK+S | ||
| 築年月 | 平成28年3月 | ||
| 構造 | 木造 地上3階建て | ||
| 都市計画 | 市街化 | ||
| 用途地域 | 準工業地域 | ||
| 建ぺい率/容積率 | 60% / 300% | ||
| 地目 | 宅地 | ||
| 接道 | 東側 1.70m 公道 | ||
| 私道負担 | 無 |
||
| 現況 | 完成済 | ||
| 設備 | 都市ガス 公営水道 公共下水 | ||
| 入居年月 | 相談 | ||
| 取引形態 | 媒介 | ||
| 備考 | 準防火地域、第2種特別工業地区、第三種高度地、【現況】空室 | ||
| 更新日 | 2026年3月26日 | ||
| 次回更新予定日 | 2026年4月11日 | ||
| 取引有効期限 | 2026年04月11日 | ||
周辺環境
| 施設 | 江東区立浅間堅川小学校 601m 江東区立亀戸中学校 893m セブンイレブン江東亀戸7丁目東店 306m リコス亀戸7丁目店 385m KAMEIDO CLOCK 960m 園ペインクリニック 568m ひらの亀戸ひまわり診療所 473m わかたけクリニック 451m 立花幼稚園 1100m 亀戸7丁目南公園 513m 江東区亀戸出張所 1500m 平岩第2公園 108m 亀戸7丁目公園 327m 亀戸浅間保育園 188m |
||
|---|---|---|---|
| 周辺の物件検索 | |||
現地見学会情報
月々の支払い
0円
| 物件価格 | 万円 |
|---|---|
| 自己資金 (頭金) |
万円 |
| 金利 | % |
| 返済年数 |
40年(NEW) 35年(一般的) 30年 |
※返済金額はあくまでも目安の数値となります。詳しくは下記よりご相談ください。
資金計画相談お問い合わせ 錦糸町店
0120-987-419


































