川口市安行吉岡 中古一戸建て
月々の支払い
0円
| 物件価格 | 万円 |
|---|---|
| 自己資金 (頭金) |
万円 |
| 金利 | % |
| 返済年数 |
40年(NEW) 35年(一般的) 30年 |
※返済金額はあくまでも目安の数値となります。詳しくは下記よりご相談ください。
資金計画相談お問い合わせ ▶ 竹の塚店
0120-973-767
| 価格 | 3080万円 |
| 所在地 | 埼玉県川口市大字安行吉岡 |
| 沿線・駅 | JR京浜東北線西川口駅バス24分 国際興業バス 「吉岡」バス停 停歩6分 埼玉高速鉄道戸塚安行駅バス10分 国際興業バス 「吉岡」バス停 停歩6分 埼玉高速鉄道南鳩ケ谷駅バス12分 国際興業バス 「赤井田畑」バス停 停歩8分 |
| 建物面積 | 92.12m2(27.86坪) |
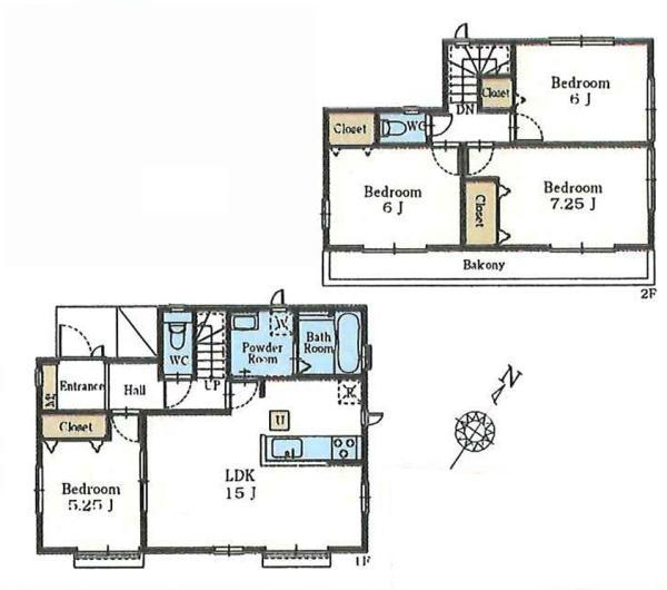
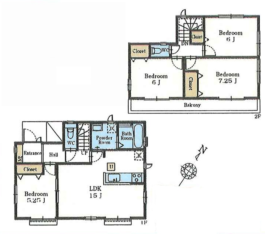
| 間取り | 4LDK |
間取り・区画図
おすすめポイント
即日ご案内します【おかげさまでグーグル口コミ4.9】ハウスプラザ竹の塚店
◆ハウスプラザのおすすめ◆
・2023年11月築の築浅中古戸建!
・建物見学できます!実際に広さや仕様をぜひご体感ください。
・住みやすい2階建てのお家
・リビング15帖+5.25帖の洋室の1階部分
・各部屋5帖以上のお部屋にクローゼット付き
・住宅ローン相談会開催中
※自分たちがいくらまで借りれるのか
※車のローン、学生ローンが残ってるけど借りられるのか
※色々な銀行に出して比較検討したい
などなどお気軽にご相談ください。
物件詳細
| 所在地 | 埼玉県川口市大字安行吉岡1565-19 | ||
|---|---|---|---|
| 交通 | JR京浜東北線西川口駅バス24分 国際興業バス 「吉岡」バス停 停歩6分 埼玉高速鉄道戸塚安行駅バス10分 国際興業バス 「吉岡」バス停 停歩6分 埼玉高速鉄道南鳩ケ谷駅バス12分 国際興業バス 「赤井田畑」バス停 停歩8分 |
||
| 総戸数 | 1戸 | ||
| 販売戸数 | 1戸 | ||
| 価格 | 3080万円 | ||
| 土地面積 | 110.00m2(33.27坪) | ||
| 建物面積 | 92.12m2(27.86坪) | ||
| 土地権利 | 所有権 | ||
| 間取り | 4LDK | ||
| 築年月 | 令和5年11月 | ||
| 構造 | 木造 地上2階建て | ||
| 都市計画 | 市街化 | ||
| 用途地域 | 第2種住居地域 第1種低層住居専用地域 |
||
| 建ぺい率/容積率 | 54% / 147% | ||
| 地目 | 宅地 | ||
| 接道 | 北西側 6.00m 私道 | ||
| 私道負担 | 有(面積:294.00m²(88.93坪)×持分:1/11) |
||
| 現況 | 完成済 | ||
| 設備 | 都市ガス 公営水道 公共下水 | ||
| 入居年月 | 即時 | ||
| 取引形態 | 専任媒介 | ||
| 備考 | 法第22条区域、【ゴミ置場】持分有:5.23平米×1/13、【現況】空室 | ||
| 更新日 | 2026年3月6日 | ||
| 次回更新予定日 | 2026年3月21日 | ||
| 取引有効期限 | 2026年03月21日 | ||
周辺環境
| 施設 | 川口市立慈林小学校 1019m 川口市立安行中学校 1562m セブンイレブン 川口安行慈林店 1286m マルエツ 安行慈林店 804m イオンモール川口 3736m 武南病院附属クリニック 1156m 渋谷医院 1978m 大河原医院 2143m セブンイレブン 川口安行原店 1321m ローソン 川口新郷店 1118m サミットストア 川口赤井店 1687m 緑ケ丘第二公園 280m 川口市立安行保育所 850m 翠ケ丘幼稚園 1156m |
||
|---|---|---|---|
| 周辺の物件検索 | |||
現地見学会情報
月々の支払い
0円
| 物件価格 | 万円 |
|---|---|
| 自己資金 (頭金) |
万円 |
| 金利 | % |
| 返済年数 |
40年(NEW) 35年(一般的) 30年 |
※返済金額はあくまでも目安の数値となります。詳しくは下記よりご相談ください。
資金計画相談お問い合わせ 竹の塚店
0120-973-767


















































