市川市大洲1丁目 新築一戸建て
お支払いローンシミュレーション
月々の支払い
0円
| 物件価格 | 万円 |
|---|---|
| 自己資金 (頭金) |
万円 |
| 金利 | % |
| 返済年数 |
40年(NEW) 35年(一般的) 30年 |
※返済金額はあくまでも目安の数値となります。詳しくは下記よりご相談ください。
資金計画相談お問い合わせ ▶ 本八幡店
0120-303-965
| 価格 | 5190万円 (税込) |
| 所在地 | 千葉県市川市大洲1丁目 |
| 沿線・駅 | JR中央・総武線市川駅バス8分 「大洲郵便局」バス停 停歩2分 都営新宿線本八幡駅バス8分 「大洲郵便局」バス停 停歩2分 JR中央・総武線本八幡駅バス8分 「大洲郵便局」バス停 停歩2分 |
| 建物面積 | 88.29m2(26.7坪) うち1F車庫 面積:9.93m2 |
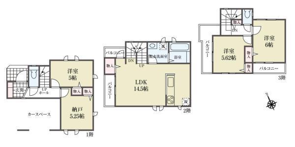
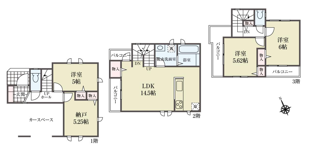
| 間取り | 3LDK+S |
間取り・区画図
おすすめポイント
【即日ご対応します 諸条件相談可】解放感北西角地 2階LDKプラン
【スタッフのおすすめポイント】
☆LDKと水回りが同じフロアで家事動線に配慮
☆部屋数は4つ カースペース付き
☆耐震等級は3を取得の地震に強いお家です
☆充実の周辺環境の立地
☆角地により解放感にも納得
☆周辺物件も合わせてご案内可能
☆おまとめローンもご紹介可能
物件詳細
| 所在地 | 千葉県市川市大洲1丁目【以下未定】 | ||
|---|---|---|---|
| 交通 | JR中央・総武線市川駅バス8分 「大洲郵便局」バス停 停歩2分 都営新宿線本八幡駅バス8分 「大洲郵便局」バス停 停歩2分 JR中央・総武線本八幡駅バス8分 「大洲郵便局」バス停 停歩2分 |
||
| 総戸数 | 1戸 | ||
| 販売戸数 | 1戸 | ||
| 価格 | 5190万円 (税込) | ||
| 土地面積 | 61.18m2(18.5坪) | ||
| 建物面積 | 88.29m2(26.7坪) うち1F車庫 面積:9.93m2 | ||
| 土地権利 | 所有権 | ||
| 間取り | 3LDK+S | ||
| 築年月 | 令和8年3月 | ||
| 構造 | 木造 地上3階建て | ||
| 都市計画 | 市街化 | ||
| 用途地域 | 第1種住居地域 | ||
| 建ぺい率/容積率 | 60% / 160% | ||
| 地目 | 宅地 | ||
| 接道 | 西側 3.89m 公道 北東側 4.00m 私道 |
||
| 私道負担 | 有(面積:4.29m²(1.29坪)) |
||
| 現況 | 完成済 | ||
| 設備 | 都市ガス 公営水道 公共下水 | ||
| 入居年月 | 即時 | ||
| 取引形態 | 媒介 | ||
| 備考 | 第HPA-25-13401-1号 法22条区域、第一種高度地区、宅地造成等工事規制区域 | ||
| 更新日 | 2026年3月14日 | ||
| 次回更新予定日 | 2026年3月31日 | ||
| 取引有効期限 | 2026年03月31日 | ||
周辺環境
| 施設 | 市川市立鶴指小学校 546m 市川市立第八中学校 515m デイリーヤマザキ 大洲2丁目店 176m まいばすけっと 市川大和田5丁目店 259m Shapo(シャポー) 本八幡 1946m 市川市民診療所 798m イオンタウン市川大和田 1257m マルエツ 南八幡店 864m ビッグ・エー市川新田店 733m ファミリーマート 市川大洲店 206m デイジー保育園・市川市大和田 264m 大和田4丁目公園 270m 大洲防災公園 446m 市川市立大洲保育園 143m |
||
|---|---|---|---|
| 周辺の物件検索 | |||
現地見学会情報
お支払いローンシミュレーション
月々の支払い
0円
| 物件価格 | 万円 |
|---|---|
| 自己資金 (頭金) |
万円 |
| 金利 | % |
| 返済年数 |
40年(NEW) 35年(一般的) 30年 |
※返済金額はあくまでも目安の数値となります。詳しくは下記よりご相談ください。
資金計画相談お問い合わせ 本八幡店
0120-303-965



















































