江戸川区大杉5丁目 新築一戸建て
月々の支払い
0円
| 物件価格 | 万円 |
|---|---|
| 自己資金 (頭金) |
万円 |
| 金利 | % |
| 返済年数 |
40年(NEW) 35年(一般的) 30年 |
※返済金額はあくまでも目安の数値となります。詳しくは下記よりご相談ください。
資金計画相談お問い合わせ ▶ 篠崎店
0120-664-511
| 価格 | 6499万円 (税込) |
| 所在地 | 東京都江戸川区大杉5丁目 |
| 沿線・駅 | JR総武本線新小岩駅バス18分 都営バス 「大杉4丁目」バス停 停歩4分 都営新宿線一之江駅バス7分 京成バス 「大杉第二小学校」バス停 停歩5分 東京メトロ東西線葛西駅バス16分 京成バス 「大杉第二小学校」バス停 停歩5分 |
| 建物面積 | 124.68m2(37.71坪) うち1F車庫 面積:17.28m2 |
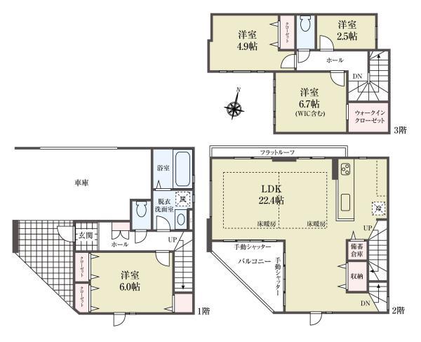
| 間取り | 4LDK |
間取り・区画図
おすすめポイント
即日ご案内致します!ハウスプラザ篠崎店
【おかげさまでグーグル口コミ☆4.9】
【デザイナーズハウス】【頭金0円からOK】【南西角地】
【リビング22帖超え】【住宅設備・収納充実】
【営業が感じたここがオススメポイント】
・まずは何といっても幅員6m×6.5mの南西道路に面した日当たり通風良好な立地
・建物完成いたしました!いつでもご見学いただけます
・前面道路は車通りの少ない安心安全な住環境です
・玄関を開けると広々ホールが気持ちいい空間
・各お部屋の広さは十分に確保しており、ウォークインクローゼットなど収納スペースは充実
・2階リビングフロアは22帖超えの家具の配置がしやすい広々空間
・食洗器付きシステムキッチンや床暖房、浴室乾燥機など住宅設備は充実
・省エネルギー認定「BELS」評価物件
・お引き渡し後も安心の30年長期サポート
【生活環境良好】
江戸川区には住宅地域が広がり、区内には幼稚園や保育園、小中学校なども充実しており、子育て世代にも優しい環境です。大小さまざまな公園が存在し、自然が豊かで過ごしやすい環境が整っています
物件詳細
| 所在地 | 東京都江戸川区大杉5丁目156-1 | ||
|---|---|---|---|
| 交通 | JR総武本線新小岩駅バス18分 都営バス 「大杉4丁目」バス停 停歩4分 都営新宿線一之江駅バス7分 京成バス 「大杉第二小学校」バス停 停歩5分 東京メトロ東西線葛西駅バス16分 京成バス 「大杉第二小学校」バス停 停歩5分 |
||
| 総戸数 | 1戸 | ||
| 販売戸数 | 1戸 | ||
| 価格 | 6499万円 (税込) | ||
| 土地面積 | 71.28m2(21.56坪) | ||
| 建物面積 | 124.68m2(37.71坪) うち1F車庫 面積:17.28m2 | ||
| 土地権利 | 所有権 | ||
| 間取り | 4LDK | ||
| 築年月 | 令和8年1月 | ||
| 構造 | 木造 地上3階建て | ||
| 都市計画 | 市街化 | ||
| 用途地域 | 第1種中高層住居専用地域 | ||
| 建ぺい率/容積率 | 80% / 150% | ||
| 地目 | 宅地 | ||
| 接道 | 西側 6.50m 公道 南側 6.00m 私道 |
||
| 私道負担 | 有(面積:100.44m²(30.38坪)×持分:502/2510) |
||
| 現況 | 完成済 | ||
| 設備 | 都市ガス 公営水道 公共下水 | ||
| 入居年月 | 即時 | ||
| 取引形態 | 媒介 | ||
| 備考 | 第KBI-YKH25-10-2617号 景観法、航空法、宅地造成工事規制区域、準防火地域、隅切り有、敷地面積最低限度有、日影制限有、第二種高度地区、53条区域、【備蓄倉庫部分】0.7平米含む | ||
| 更新日 | 2026年3月6日 | ||
| 次回更新予定日 | 2026年4月8日 | ||
| 取引有効期限 | 2026年04月08日 | ||
周辺環境
| 施設 | 江戸川区立大杉第二小学校 512m 江戸川区立松江第三中学校 852m ビッグ・エー 江戸川松本店 684m セブン-イレブン 江戸川大杉1丁目店 177m スギドラッグ 江戸川中央店 448m アゼリーアネックス保育園 370m 松本おひさま保育園 595m 大杉神明幼稚園 466m 松本幼稚園 936m 大杉五丁目児童遊園 374m 大杉五丁目公園 375m 金田クリニック 433m 佐々木内科小児科クリニック 567m アタック 中央店 504m |
||
|---|---|---|---|
| 周辺の物件検索 | |||
現地見学会情報
月々の支払い
0円
| 物件価格 | 万円 |
|---|---|
| 自己資金 (頭金) |
万円 |
| 金利 | % |
| 返済年数 |
40年(NEW) 35年(一般的) 30年 |
※返済金額はあくまでも目安の数値となります。詳しくは下記よりご相談ください。
資金計画相談お問い合わせ 篠崎店
0120-664-511






























































