北区上十条5丁目 売地/建築条件付き/全3区画 A区画
| 価格 | 4706.15万円 |
| 所在地 | 東京都北区上十条5丁目 |
| 沿線・駅 | JR埼京線十条駅 徒歩12分 JR京浜東北線東十条駅 徒歩14分 都営三田線板橋本町駅 徒歩19分 |
| 土地面積 | 68.06m2(20.58坪) |
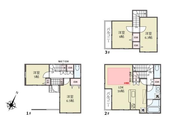
間取り・区画図
おすすめポイント
【ショールーム御座います】おかげさまでGoogle口コミ・ハウスプラザ合計☆4.7
当社のみ取扱いの建築条件付き売地です。
ご要望に沿った参考プラン作成いたします。
ショールームのご案内、プレゼンテーション可能です。
◇◆◇おすすめポイント◇◆◇
□複数路線利用可能で住環境良好!
□お好みのプランにて建築が可能!
□カラーセレクトも可能!
お問い合わせはハウスプラザ赤羽店までお気軽にどうぞ!
【フリーダイヤル 0120-303-976 携帯電話からもOK】
物件詳細
| 所在地 | 東京都北区上十条5丁目24-5 | ||
|---|---|---|---|
| 交通 | JR埼京線十条駅 徒歩12分 JR京浜東北線東十条駅 徒歩14分 都営三田線板橋本町駅 徒歩19分 |
||
| 総区画数 | 3区画 | ||
| 販売区画数 | 1区画 | ||
| 価格 | 4706.15万円 | ||
| 土地面積 | 68.06m2(20.58坪) セットバック要(4.56m²) | ||
| 土地権利 | 所有権 | ||
| 都市計画 | 市街化 | ||
| 用途地域 | 第1種中高層住居専用地域 | ||
| 建ぺい率/容積率 | 60% / 150% | ||
| 地目 | 宅地 | ||
| 接道 | 西側 4.00m 公道 | ||
| 私道負担 | 無 |
||
| 現況 | 更地 | ||
| 設備 | 都市ガス 公営水道 公共下水 | ||
| 引渡日 | 相談 | ||
| 取引形態 | 売主 | ||
| 備考 | 準防火地域、新防火地域、第2種高度地区、※この土地は、土地売買契約後3ヶ月以内に当社が指定する建築会社と建物の建築請負契約を締結することを条件に販売します。この期間内に建築請負契約を締結されなかった場合は、土地売買契約は白紙となり、受領した手付金等の土地代金は全てお返しします。 | ||
| 更新日 | 2026年3月2日 | ||
| 次回更新予定日 | 2026年3月17日 | ||
| 取引有効期限 | 2026年03月17日 | ||
周辺環境
| 施設 | 北区立王子第三小学校 110m 北区立十条富士見中学校 1400m ローソン 北区上十条五丁目店 366m オーケー 十条店 292m J&MALL 976m 石垣医院 410m 藤崎医院 609m 十条こどもクリニック 655m セブンイレブン 北区上十条4丁目店 494m ファミリーマート 十条仲原三丁目店 485m まいばすけっと 十条仲原店 446m 清水坂公園 550m 北区立じゅうじょうなかはら幼稚園 500m 西が丘保育園 341m |
||
|---|---|---|---|
| 周辺の物件検索 | |||
現地見学会情報
お問い合わせ 赤羽店
0120-303-976




















