江戸川区南葛西3丁目 新築一戸建て/全2棟 1号棟
お支払いローンシミュレーション
月々の支払い
0円
| 物件価格 | 万円 |
|---|---|
| 自己資金 (頭金) |
万円 |
| 金利 | % |
| 返済年数 |
40年(NEW) 35年(一般的) 30年 |
※返済金額はあくまでも目安の数値となります。詳しくは下記よりご相談ください。
資金計画相談お問い合わせ ▶ 西葛西店
0120-978-305
| 価格 | 7690万円 (税込) |
| 所在地 | 東京都江戸川区南葛西3丁目 |
| 沿線・駅 | 東京メトロ東西線葛西駅 徒歩21分 JR京葉線葛西臨海公園駅バス15分 「南葛西住宅前」バス停 停歩3分 都営新宿線一之江駅バス15分 「総合レクリエーション公園」バス停 停歩7分 |
| 建物面積 | 119.67m2(36.2坪) うち1F車庫 面積:9.72m2 |
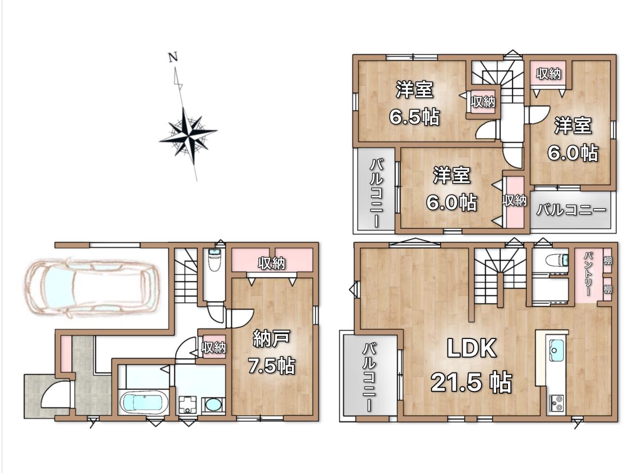
| 間取り | 3LDK+S |
間取り・区画図
おすすめポイント
【1号棟~使い分けしやすい3階建て】
◆玄関から室内が見えにくい設計!
◆1階の納戸は7.5帖!3階の全居室も6帖越え&収納付き!
◆開放感のある21.5帖のリビング!折り上げ天井が開放感を演出し、明るくのびやかなリビングです。
◆棚付きパントリー完備で、食品や日用品のストックもすっきり収納!
物件詳細
| 所在地 | 東京都江戸川区南葛西3丁目9-1 | ||
|---|---|---|---|
| 交通 | 東京メトロ東西線葛西駅 徒歩21分 JR京葉線葛西臨海公園駅バス15分 「南葛西住宅前」バス停 停歩3分 都営新宿線一之江駅バス15分 「総合レクリエーション公園」バス停 停歩7分 |
||
| 総戸数 | 2戸 | ||
| 販売戸数 | 1戸 | ||
| 価格 | 7690万円 (税込) | ||
| 土地面積 | 71.46m2(21.61坪) | ||
| 建物面積 | 119.67m2(36.2坪) うち1F車庫 面積:9.72m2 | ||
| 土地権利 | 所有権 | ||
| 間取り | 3LDK+S | ||
| 築年月 | 令和8年4月 | ||
| 構造 | 木造 地上3階建て | ||
| 都市計画 | 市街化 | ||
| 用途地域 | 第1種住居地域 | ||
| 建ぺい率/容積率 | 70% / 240% | ||
| 地目 | 宅地 | ||
| 接道 | 西側 6.00m 公道 | ||
| 私道負担 | 無 |
||
| 現況 | 未完成 | ||
| 設備 | 都市ガス 公営水道 公共下水 | ||
| 入居年月 | 期日指定 2026年5月上旬 | ||
| 取引形態 | 媒介 | ||
| 備考 | 第UDI1W建08468-2号 景観法、航空法、準防火地域、日影制限有、第3種高度地区、下水道処理区域、宅地造成工事規制区域、最低敷地面積(70平米) | ||
| 更新日 | 2026年3月7日 | ||
| 次回更新予定日 | 2026年4月8日 | ||
| 取引有効期限 | 2026年04月08日 | ||
周辺環境
| 施設 | 江戸川区立臨海小学校 978m 江戸川区立南葛西第二中学校 1080m セブンイレブン 江戸川南葛西左近通り店 279m ベルク 江戸川臨海店 554m Ario(アリオ)葛西 1338m 吉利医院 475m 村澤医院 247m 葛西みなみ診療所 684m ファミリーマート 南葛西レク公園前店4 487m バウ動物病院 576m 葛西区民館 2063m ファミリースポーツ広場 326m 総合レクリエーション公園 652m 堀江保育園 475m |
||
|---|---|---|---|
| 周辺の物件検索 | |||
現地見学会情報
お支払いローンシミュレーション
月々の支払い
0円
| 物件価格 | 万円 |
|---|---|
| 自己資金 (頭金) |
万円 |
| 金利 | % |
| 返済年数 |
40年(NEW) 35年(一般的) 30年 |
※返済金額はあくまでも目安の数値となります。詳しくは下記よりご相談ください。
資金計画相談お問い合わせ 西葛西店
0120-978-305






























