市川市真間5丁目 新築一戸建て/全14棟 9号棟
月々の支払い
0円
| 物件価格 | 万円 |
|---|---|
| 自己資金 (頭金) |
万円 |
| 金利 | % |
| 返済年数 |
40年(NEW) 35年(一般的) 30年 |
※返済金額はあくまでも目安の数値となります。詳しくは下記よりご相談ください。
資金計画相談お問い合わせ ▶ 本八幡店
0120-303-965
| 価格 | 5580万円 (税込) |
| 所在地 | 千葉県市川市真間5丁目 |
| 沿線・駅 | 京成本線市川真間駅 徒歩14分~15分 JR中央・総武線市川駅 徒歩19分~20分 京成本線国府台駅 徒歩15分~16分 |
| 建物面積 | 94.77m2(28.66坪) |
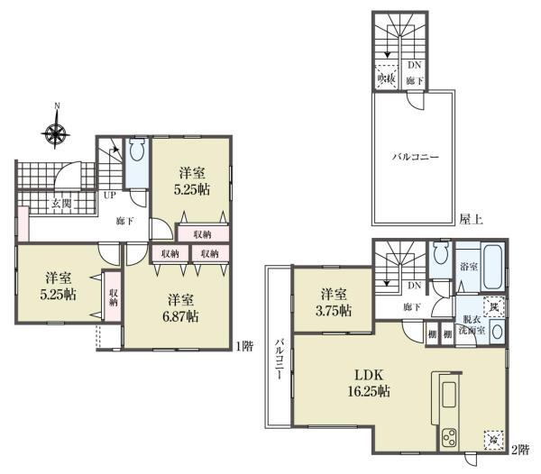
| 間取り | 4LDK |
間取り・区画図
おすすめポイント
【即日ご対応いたします 諸条件ご相談ください】全14棟の大型コミュニティ
【スタッフのおすすめポイント】
☆大規模分譲地なので同世代やファミリー世帯が集まりやすいです
☆小中学校も徒歩6分の距離なので、通学も安心です。
☆LDKは全号棟15帖以上!対面式キッチンやリビング階段採用で家族が顔を合わせやすい設計です
☆全居室収納完備!その他リビング収納や廊下収納など、各号棟収納が充実しています
☆周辺物件やご希望に沿った物件もあわせてご紹介いたします
物件詳細
| 所在地 | 千葉県市川市真間5丁目【以下未定】 | ||
|---|---|---|---|
| 交通 | 京成本線市川真間駅 徒歩14分~15分 JR中央・総武線市川駅 徒歩19分~20分 京成本線国府台駅 徒歩15分~16分 |
||
| 総戸数 | 14戸 | ||
| 販売戸数 | 1戸 | ||
| 価格 | 5580万円 (税込) | ||
| 土地面積 | 120.12m2(36.33坪) | ||
| 建物面積 | 94.77m2(28.66坪) | ||
| 土地権利 | 所有権 | ||
| 間取り | 4LDK | ||
| 築年月 | 令和8年3月 | ||
| 構造 | 木造 地上2階建て | ||
| 都市計画 | 市街化 | ||
| 用途地域 | 第1種低層住居専用地域 | ||
| 建ぺい率/容積率 | 40% / 80% | ||
| 地目 | 宅地 | ||
| 接道 | 北側 4.50m 私道 | ||
| 私道負担 | |||
| 現況 | 完成済 | ||
| 設備 | 都市ガス 公営水道 個別浄化槽 | ||
| 入居年月 | 即時 | ||
| 取引形態 | 媒介 | ||
| 備考 | 第25UDI1W建08720号 【私道】持分有:260平米×1/15ずつ・10.89平米×1/15ずつ・26平米×1/15ずつ・10平米×1/15ずつ・2.05平米×1/15ずつ、【ごみ置場】持分有:3.63平米×1/15ずつ、【備考】宅地内に電柱及び支線が入る場合がございます | ||
| 更新日 | 2026年3月23日 | ||
| 次回更新予定日 | 2026年4月9日 | ||
| 取引有効期限 | 2026年04月09日 | ||
周辺環境
| 施設 | 市川市立真間小学校 357m 市川市立第二中学校 418m デイリーヤマザキ 真間店 458m 全日食チェーン ショッピングふじき 544m シャポー市川 1405m 井上医院 869m マックスバリュエクスプレス市川店 1281m リブレキッチン 国府台店 1109m ライフ 市川国分店 850m セブンイレブン 市川菅野6丁目店 1022m 真間山幼稚園 495m 須和田公園 357m 国府台公園 1069m AIAI NURSERY菅野六丁目 868m |
||
|---|---|---|---|
| 周辺の物件検索 | |||
現地見学会情報
月々の支払い
0円
| 物件価格 | 万円 |
|---|---|
| 自己資金 (頭金) |
万円 |
| 金利 | % |
| 返済年数 |
40年(NEW) 35年(一般的) 30年 |
※返済金額はあくまでも目安の数値となります。詳しくは下記よりご相談ください。
資金計画相談お問い合わせ 本八幡店
0120-303-965































