松戸市新松戸6丁目 新築一戸建て/全8棟 2-K号棟
月々の支払い
0円
| 物件価格 | 万円 |
|---|---|
| 自己資金 (頭金) |
万円 |
| 金利 | % |
| 返済年数 |
40年(NEW) 35年(一般的) 30年 |
※返済金額はあくまでも目安の数値となります。詳しくは下記よりご相談ください。
資金計画相談お問い合わせ ▶ 浦安店
0120-980-611
| 価格 | 5790万円 (税込) |
| 所在地 | 千葉県松戸市新松戸6丁目 |
| 沿線・駅 | 千代田常磐線新松戸駅 徒歩20分 JR武蔵野線新松戸駅 徒歩20分 つくばエクスプレス南流山駅 徒歩25分 |
| 建物面積 | 103.51m2(31.31坪) |
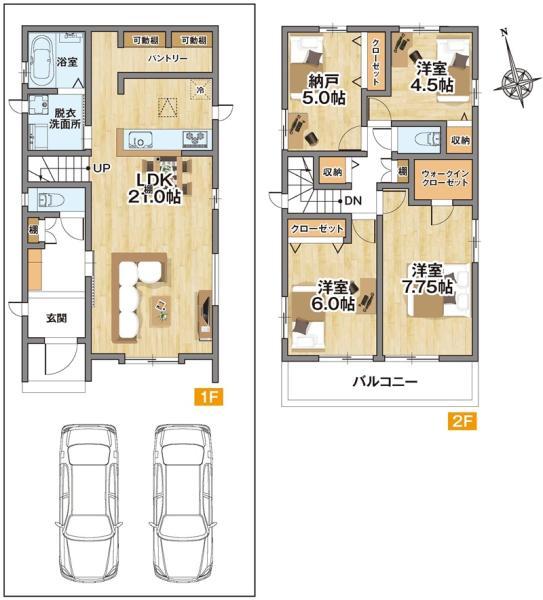
| 間取り | 3LDK+S |
間取り・区画図
おすすめポイント
全42区画の大型分譲開始!小学校そばの安心できる街区!
常磐線、武蔵野線の2沿線をご利用できる「新松戸駅」を最寄りとした松戸市新松戸6丁目に全42区画の大型分譲物件が登場しました!!
様々なタイプの間取りプランがあり、あなたにピッタリな間取りもあるはずです!
小学校が近くにあり、落ち着いた住環境となっているためどんな世帯にもお勧めできる好立地です。
日当たりのいい南側や、価格を抑えたプラン、並列車庫2台のプラン等様々な間取りに対応可能な大型物件となっております!
周辺に高い建物がなく閑静な住宅街、周辺にお買い物施設やコンビニ、ドラッグストア等もあるため日常生活にお役立ていただける立地となります。
物件詳細
| 所在地 | 千葉県松戸市新松戸6丁目以下未定 | ||
|---|---|---|---|
| 交通 | 千代田常磐線新松戸駅 徒歩20分 JR武蔵野線新松戸駅 徒歩20分 つくばエクスプレス南流山駅 徒歩25分 |
||
| 総戸数 | 8戸 | ||
| 販売戸数 | 1戸 | ||
| 価格 | 5790万円 (税込) | ||
| 土地面積 | 114.57m2(34.65坪) | ||
| 建物面積 | 103.51m2(31.31坪) | ||
| 土地権利 | 所有権 | ||
| 間取り | 3LDK+S | ||
| 築年月 | 令和8年3月 | ||
| 構造 | 木造 地上2階建て | ||
| 都市計画 | 市街化 | ||
| 用途地域 | 第1種低層住居専用地域 | ||
| 建ぺい率/容積率 | 50% / 100% | ||
| 地目 | 宅地 | ||
| 接道 | 南側 6.00m 公道 | ||
| 私道負担 | 無 |
||
| 現況 | 未完成 | ||
| 設備 | 都市ガス 公営水道 公共下水 | ||
| 入居年月 | 期日指定 2026年3月下旬 | ||
| 取引形態 | 媒介 | ||
| 備考 | 第HPA-25-14460-1号 宅地造成工事規制区域、法第22条区域、日影制限有、【ゴミ置場持ち分】2.55平米×1/12ずつ(G、H号棟)・2.56平米×1/11ずつ(M、N号棟)・2.60平米×1/10ずつ(2-C、2-F号棟)・2.59平米×1/9ずつ(2-K、2-L号棟) | ||
| 更新日 | 2026年3月6日 | ||
| 次回更新予定日 | 2026年3月30日 | ||
| 取引有効期限 | 2026年03月30日 | ||
周辺環境
| 施設 | 松戸市立新松戸南小学校 133m 松戸市立新松戸南中学校 388m ファミリーマート 新松戸六丁目店 586m コモディイイダ 新松戸店 571m 業務スーパー 新松戸店 991m けやきトータルクリニック 692m 森内科クリニック 551m 東葛クリニック 新松戸 885m セブンイレブン 新松戸5丁目店 680m 松戸市立新松戸中央保育所 735m 新松戸南公園 623m 新松戸中央公園 735m 松戸市立新松戸南部保育所 679m |
||
|---|---|---|---|
| 周辺の物件検索 | |||
現地見学会情報
月々の支払い
0円
| 物件価格 | 万円 |
|---|---|
| 自己資金 (頭金) |
万円 |
| 金利 | % |
| 返済年数 |
40年(NEW) 35年(一般的) 30年 |
※返済金額はあくまでも目安の数値となります。詳しくは下記よりご相談ください。
資金計画相談お問い合わせ 浦安店
0120-980-611



































