板橋区栄町 新築一戸建て
月々の支払い
0円
| 物件価格 | 万円 |
|---|---|
| 自己資金 (頭金) |
万円 |
| 金利 | % |
| 返済年数 |
40年(NEW) 35年(一般的) 30年 |
※返済金額はあくまでも目安の数値となります。詳しくは下記よりご相談ください。
資金計画相談お問い合わせ ▶ 池袋店
0120-954-387
| 価格 | 1億999万円 (税込) |
| 所在地 | 東京都板橋区栄町 |
| 沿線・駅 | 東武東上線大山駅 徒歩7分 都営三田線板橋区役所前駅 徒歩12分 JR埼京線赤羽駅バス23分 国際興業バス 「豊島病院」バス停 停歩4分 |
| 建物面積 | 121.93m2(36.88坪) うち1F車庫 面積:14.49m2 |
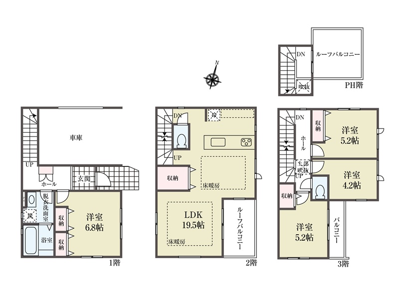
| 間取り | 4LDK |
間取り・区画図
おすすめポイント
LDK19.5帖×ルーフバルコニー付4LDK×ZEH水準
東武東上線「大山」徒歩7分、三田線「板橋区役所前」徒歩11分。
通勤も買物も動線が短い栄町の新築1棟です。
建物は延床面積121.93平米のゆとりの4LDK。
約19.5帖の広々としたLDKは、家族が集う開放的な空間を演出します。
さらに、都心居住の質を高める「屋上ルーフバルコニー」を完備。
プライベート性豊かな屋外空間として多目的に活用可能です。
車庫スぺースもゆとりを持たせ、大型の自動車も駐車可能。
小学校や中学校はもちろん、保育園や病院、公園も徒歩10分以内に揃う住環境。
ZEH水準の断熱性能・省エネ性能を備え、光熱費を抑えながら快適な暮らしを実現する、次世代の都市型住宅です。
物件詳細
| 所在地 | 東京都板橋区栄町26 | ||
|---|---|---|---|
| 交通 | 東武東上線大山駅 徒歩7分 都営三田線板橋区役所前駅 徒歩12分 JR埼京線赤羽駅バス23分 国際興業バス 「豊島病院」バス停 停歩4分 |
||
| 総戸数 | 1戸 | ||
| 販売戸数 | 1戸 | ||
| 価格 | 1億999万円 (税込) | ||
| 土地面積 | 73.44m2(22.21坪) | ||
| 建物面積 | 121.93m2(36.88坪) うち1F車庫 面積:14.49m2 | ||
| 土地権利 | 所有権 | ||
| 間取り | 4LDK | ||
| 築年月 | 令和8年4月 | ||
| 構造 | 木造 地上3階建て | ||
| 都市計画 | 市街化 | ||
| 用途地域 | 第1種住居地域 | ||
| 建ぺい率/容積率 | 70% / 160% | ||
| 地目 | 宅地 | ||
| 接道 | 東側 4.00m 私道 | ||
| 私道負担 | 無 |
||
| 現況 | 未完成 | ||
| 設備 | 都市ガス 公営水道 公共下水 | ||
| 入居年月 | 期日指定 2026年4月下旬 | ||
| 取引形態 | 媒介 | ||
| 備考 | 第KBI-YKH25-10-3207号 準防火地域、第3種高度地区、敷地面積最低限度有(60平米)、宅地造成等工事規制区域 | ||
| 更新日 | 2026年2月23日 | ||
| 次回更新予定日 | 2026年3月10日 | ||
| 取引有効期限 | 2026年03月10日 | ||
周辺環境
| 施設 | 板橋区立中根橋小学校 663m 板橋区立板橋第三中学校 819m ファミリーマート 熊代栄町店 248m よしや大山店 463m 遊座大山商店街 617m 豊島病院 300m あいそ内科 593m スーパーみらべる 大山店 491m マルエツ クロス大山店 631m 松葉保育園 388m 板橋区役所 940m 板橋大山公園 240m 氷川つり堀公園 858m 栄町保育園 75m |
||
|---|---|---|---|
| 周辺の物件検索 | |||
現地見学会情報
月々の支払い
0円
| 物件価格 | 万円 |
|---|---|
| 自己資金 (頭金) |
万円 |
| 金利 | % |
| 返済年数 |
40年(NEW) 35年(一般的) 30年 |
※返済金額はあくまでも目安の数値となります。詳しくは下記よりご相談ください。
資金計画相談お問い合わせ 池袋店
0120-954-387







































