市川市柏井町3丁目 新築一戸建て/全3棟
| 価格 | 4190万円~4690万円 (税込) |
| 所在地 | 千葉県市川市柏井町3丁目 |
| 沿線・駅 | JR武蔵野線市川大野駅 徒歩16分 京成本線京成八幡駅バス19分 「大野町三丁目」バス停 停歩3分 JR中央・総武線本八幡駅バス24分 「大野町三丁目」バス停 停歩3分 |
| 建物面積 | 102.16m2(30.9坪)~104.74m2(31.68坪) |
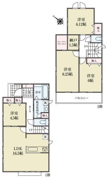
| 間取り | 4LDK~4LDK+S |
各棟情報
おすすめポイント
【現地販売窓口 諸条件ご相談ください】土地面積48坪以上!ゆとりある邸宅
【スタッフのおすすめポイント】
☆JR武蔵野線「市川大野駅」徒歩16分
☆最寄りのバス停まで徒歩3分!JR総武線・都営新宿線「本八幡駅」までバスでラクラク!
☆敷地面積がなんと48坪越え!2台駐車可能な車庫スペースもございます
☆2階部分の居室はすべて6帖以上!お子さまのお部屋も広々とお使いいただけます
☆その他充実した仕様・設備の新築住宅です
☆周辺物件やご希望に沿った物件もあわせてご紹介いたします
物件詳細
| 所在地 | 千葉県市川市柏井町3丁目148 | ||
|---|---|---|---|
| 交通 | JR武蔵野線市川大野駅 徒歩16分 京成本線京成八幡駅バス19分 「大野町三丁目」バス停 停歩3分 JR中央・総武線本八幡駅バス24分 「大野町三丁目」バス停 停歩3分 |
||
| 総戸数 | 3戸 | ||
| 販売戸数 | 3戸 | ||
| 価格 | 4190万円~4690万円 (税込) | ||
| 土地面積 | 161.00m2(48.7坪)~179.55m2(54.31坪) | ||
| 建物面積 | 102.16m2(30.9坪)~104.74m2(31.68坪) | ||
| 土地権利 | 所有権 | ||
| 間取り | 4LDK~4LDK+S | ||
| 築年月 | 令和8年4月 | ||
| 構造 | 木造 地上2階 | ||
| 都市計画 | 調整 | ||
| 用途地域 | 無指定 | ||
| 建ぺい率/容積率 | 50%/100% | ||
| 地目 | 宅地 | ||
| 接道 | 北東側 5.90m 公道 |
||
| 私道負担 | 無 |
||
| 現況 | 未完成 | ||
| 設備 | 都市ガス 公営水道 個別浄化槽 | ||
| 入居年月 | 相談 | ||
| 取引形態 | 媒介 | ||
| 備考 | 第HPA-26-01331-1号 他 法22条区域、宅地造成等工事規制区域、【土地面積】路地状部分約41.51平米含(B号棟)、約43.89平米含(C号棟) | ||
| 更新日 | 2026年3月8日 | ||
| 次回更新予定日 | 2026年3月31日 | ||
| 開発面積 | |||
| 取引有効期限 | 2026年03月31日 | ||
周辺環境
| 施設 | 市川市立大柏小学校 988m 市川市立第五中学校 649m ローソン 市川大野町三丁目店 457m ビッグ・エー 市川南大野店 721m パティオ本八幡 4672m 大野中央病院 1730m クリエイトSD 市川柏井町店 903m ワイズディスカ 大野店 1254m マルエツ 市川大野店 830m ファミリーマート 市川南大野二丁目店 782m ひだまり保育園 966m 柏井第二公園 93m おおさき公園 500m 浄光寺幼稚園 803m |
||
|---|---|---|---|
| 周辺の物件検索 | |||
現地見学会情報
お支払いローンシミュレーション
月々の支払い
0円
| 物件価格 | 万円 |
|---|---|
| 自己資金 (頭金) |
万円 |
| 金利 | % |
| 返済年数 |
40年(NEW) 35年(一般的) 30年 |
※返済金額はあくまでも目安の数値となります。詳しくは下記よりご相談ください。
資金計画相談お問い合わせ 本八幡店
0120-303-965





































