板橋区常盤台1丁目 新築一戸建て/全3棟 3号棟
月々の支払い
0円
| 物件価格 | 万円 |
|---|---|
| 自己資金 (頭金) |
万円 |
| 金利 | % |
| 返済年数 |
40年(NEW) 35年(一般的) 30年 |
※返済金額はあくまでも目安の数値となります。詳しくは下記よりご相談ください。
資金計画相談お問い合わせ ▶ 赤羽店
0120-303-976
| 価格 | 7790万円 (税込) |
| 所在地 | 東京都板橋区常盤台1丁目 |
| 沿線・駅 | 東武東上線ときわ台駅 徒歩9分 都営三田線板橋本町駅 徒歩16分 東武東上線中板橋駅 徒歩10分 |
| 建物面積 | 71.44m2(21.61坪) |
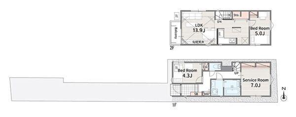
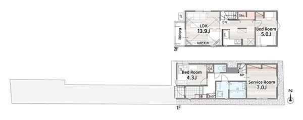
| 間取り | 2LDK+S |
間取り・区画図
おすすめポイント
【おかげさまでGoogle口コミ☆4.7!】
東武東上線「ときわ台」徒歩9分の立地にハイグレードなデザイナーズ住宅の登場です。
小学校徒歩6分で通学安心!
即日・平日・夜間、いつでもご対応可能です。
モデルハウスや現地のご見学とあわせて周辺物件のご案内も一括して承っております。
コンビニ、ドラッグストアなど買い物施設まで徒歩圏内で行くことができる生活環境が良好な立地です。
また、保育園、幼稚園、小学校、中学校までも徒歩圏内で行くことができ子育て環境には最適な立地となります♪
公園もあり、お子様の遊び場やご家族での時間をゆったり過ごせる街並みです。
住宅ローンに自信があります。諸費用やおまとめローンなど何でもご相談ください。
お気軽にお問い合わせください。
物件詳細
| 所在地 | 東京都板橋区常盤台1丁目(地番) | ||
|---|---|---|---|
| 交通 | 東武東上線ときわ台駅 徒歩9分 都営三田線板橋本町駅 徒歩16分 東武東上線中板橋駅 徒歩10分 |
||
| 総戸数 | 3戸 | ||
| 販売戸数 | 1戸 | ||
| 価格 | 7790万円 (税込) | ||
| 土地面積 | 89.66m2(27.12坪)(うち路地状部分:36.25m2) | ||
| 建物面積 | 71.44m2(21.61坪) | ||
| 土地権利 | 所有権 | ||
| 間取り | 2LDK+S | ||
| 築年月 | 令和8年4月 | ||
| 構造 | 木造 地上2階建て | ||
| 都市計画 | 市街化 | ||
| 用途地域 | 第1種中高層住居専用地域 | ||
| 建ぺい率/容積率 | 60% / 200% | ||
| 地目 | 宅地 | ||
| 接道 | 西側 5.45m 公道 | ||
| 私道負担 | 無 |
||
| 現況 | 未完成 | ||
| 設備 | 都市ガス 公営水道 公共下水 | ||
| 入居年月 | 期日指定 2026年4月下旬 | ||
| 取引形態 | 媒介 | ||
| 備考 | 第KBI-SGM25-10-3375号 準防火地域、第2種高度地区、宅地造成等工事規制区域、最低敷地面積80平米、17m最高限度高度地区、景観形成重点地区(常盤台一丁目・二丁目地区)・緑化計画 | ||
| 更新日 | 2026年2月20日 | ||
| 次回更新予定日 | 2026年3月8日 | ||
| 取引有効期限 | 2026年03月08日 | ||
周辺環境
| 施設 | 板橋区立常盤台小学校 460m 板橋区立志村第一中学校 925m セブンイレブン 板橋富士見町店 382m ライフ前野町店 525m EQUiA(エキア)ときわ台 639m 高木内科クリニック 52m 風見医院 374m 石川医院 498m ローソン 前野町店 471m ファミリーマート 常盤台北口店 486m ビッグ・エー板橋双葉町店 606m 板橋区立常盤台公園 300m 帝都幼稚園 384m 板橋保育園 435m |
||
|---|---|---|---|
| 周辺の物件検索 | |||
現地見学会情報
月々の支払い
0円
| 物件価格 | 万円 |
|---|---|
| 自己資金 (頭金) |
万円 |
| 金利 | % |
| 返済年数 |
40年(NEW) 35年(一般的) 30年 |
※返済金額はあくまでも目安の数値となります。詳しくは下記よりご相談ください。
資金計画相談お問い合わせ 赤羽店
0120-303-976

































