足立区保木間3丁目 新築一戸建て/全2棟 1号棟
月々の支払い
0円
| 物件価格 | 万円 |
|---|---|
| 自己資金 (頭金) |
万円 |
| 金利 | % |
| 返済年数 |
40年(NEW) 35年(一般的) 30年 |
※返済金額はあくまでも目安の数値となります。詳しくは下記よりご相談ください。
資金計画相談お問い合わせ ▶ 本店(営業部)
0120-566-877
| 価格 | 6480万円 (税込) |
| 所在地 | 東京都足立区保木間3丁目 |
| 沿線・駅 | 東武伊勢崎線竹ノ塚駅 徒歩23分 つくばエクスプレス六町駅バス3分 「保木間四丁目」バス停 停歩3分 東武伊勢崎線谷塚駅 徒歩29分 |
| 建物面積 | 99.01m2(29.95坪) |
| 間取り | 4LDK |
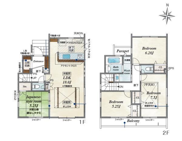
間取り・区画図
おすすめポイント
モデルハウス今から見れます!【グーグル口コミ☆4.4】【諸条件相談可】
□■営業のオススメポイント■□
・LDK18帖以上ある為、広々とした空間が確保されております
・LDkにつながる使い勝手の良い続き間和室の付きとなっております(1号棟)
・土間収納もついている為、玄関周りがすっきりとした空間が確保されます(1号棟)
・主寝室も7.5帖のお部屋(1号棟)、8.1帖のお部屋もある為、申し分ない広さが確保されております
モデルハウスも御座いますのでいつでもご案内可能となります。
平日、夜間問わずお気軽にお問い合わせ下さい。
周辺環境やその他の物件情報も含めてご提案させて頂きますので是非一度ご相談下さいませ。
物件詳細
| 所在地 | 東京都足立区保木間3丁目15 | ||
|---|---|---|---|
| 交通 | 東武伊勢崎線竹ノ塚駅 徒歩23分 つくばエクスプレス六町駅バス3分 「保木間四丁目」バス停 停歩3分 東武伊勢崎線谷塚駅 徒歩29分 |
||
| 総戸数 | 2戸 | ||
| 販売戸数 | 1戸 | ||
| 価格 | 6480万円 (税込) | ||
| 土地面積 | 95.35m2(28.84坪) | ||
| 建物面積 | 99.01m2(29.95坪) | ||
| 土地権利 | 所有権 | ||
| 間取り | 4LDK | ||
| 築年月 | 令和8年8月 | ||
| 構造 | 木造 地上2階建て | ||
| 都市計画 | 市街化 | ||
| 用途地域 | 第1種住居地域 | ||
| 建ぺい率/容積率 | 60% / 200% | ||
| 地目 | 宅地 | ||
| 接道 | 北側 7.00m 公道 西側 4.00m 私道 |
||
| 私道負担 | 有(面積:4.62m²(1.39坪)×持分:1/2) |
||
| 現況 | 未完成 | ||
| 設備 | 都市ガス 公営水道 公共下水 | ||
| 入居年月 | 期日指定 2026年8月中旬 | ||
| 取引形態 | 媒介 | ||
| 備考 | 第R08SHC100816号 準防火地域、第2種高度地区、宅地造成等工事規制区域 | ||
| 更新日 | 2026年3月2日 | ||
| 次回更新予定日 | 2026年3月17日 | ||
| 取引有効期限 | 2026年03月17日 | ||
周辺環境
| 施設 | 足立区立渕江第一小学校 350m 足立区立渕江中学校 190m セブンイレブン 足立保木間3丁目店 120m マックスバリュエクスプレス保木間店 570m ベルクスモール足立花畑 1500m あさひ病院 2000m 倉井内科医院 400m 業務スーパー 花畑店 600m ファミリーマート 保木間五丁目店 550m 足立保木間四郵便局 200m トータス保育園足立区保木間 350m 土井苗間堀公園 35m 元渕江公園 450m 保木間保育園 220m |
||
|---|---|---|---|
| 周辺の物件検索 | |||
現地見学会情報
月々の支払い
0円
| 物件価格 | 万円 |
|---|---|
| 自己資金 (頭金) |
万円 |
| 金利 | % |
| 返済年数 |
40年(NEW) 35年(一般的) 30年 |
※返済金額はあくまでも目安の数値となります。詳しくは下記よりご相談ください。
資金計画相談お問い合わせ 本店(営業部)
0120-566-877










































