北区岩淵町 中古一戸建て
月々の支払い
0円
| 物件価格 | 万円 |
|---|---|
| 自己資金 (頭金) |
万円 |
| 金利 | % |
| 返済年数 |
40年(NEW) 35年(一般的) 30年 |
※返済金額はあくまでも目安の数値となります。詳しくは下記よりご相談ください。
資金計画相談お問い合わせ ▶ 赤羽店
0120-303-976
| 価格 | 6790万円 (税込) |
| 所在地 | 東京都北区岩淵町 |
| 沿線・駅 | JR京浜東北線赤羽駅 徒歩14分 東京メトロ南北線赤羽岩淵駅 徒歩7分 JR埼京線北赤羽駅 徒歩26分 |
| 建物面積 | 80.94m2(24.48坪) |
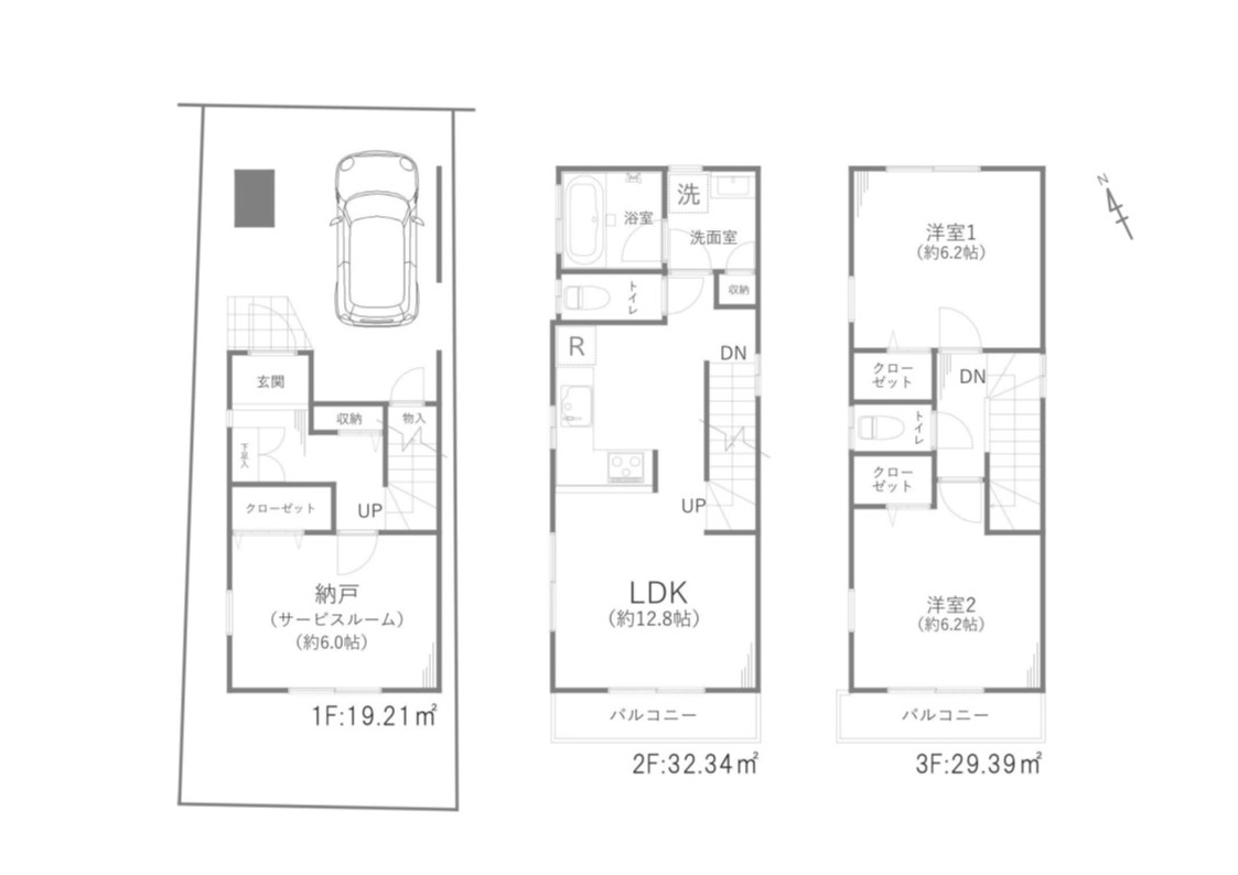
| 間取り | 2LDK+S |
間取り・区画図
おすすめポイント
内覧可能!【おかげさまでGoogle口コミ☆4.7】リフォーム物件!!
☆☆おススメポイント☆☆
2階に水まわりが集中!リフォーム物件!3路線2駅利用可!
即日・平日・夜間、いつでもご対応可能です。
リフォーム内容のお問い合わせや現地のご見学とあわせて周辺物件のご案内も一括して承っております。
コンビニ、ドラッグストアなど買い物施設まで徒歩圏内で行くことができる生活環境が良好な立地です。
また、保育園、幼稚園、小学校、中学校までも徒歩圏内で行くことができ子育て環境には最適な立地となります♪
公園もありお子様の遊び場やご家族での時間をゆったり過ごせる街並みです。
住宅ローンに自信があります。諸費用やおまとめローンなど何でもご相談ください。
物件詳細
| 所在地 | 東京都北区岩淵町(地番) | ||
|---|---|---|---|
| 交通 | JR京浜東北線赤羽駅 徒歩14分 東京メトロ南北線赤羽岩淵駅 徒歩7分 JR埼京線北赤羽駅 徒歩26分 |
||
| 総戸数 | 1戸 | ||
| 販売戸数 | 1戸 | ||
| 価格 | 6790万円 (税込) | ||
| 土地面積 | 56.33m2(17.03坪) | ||
| 建物面積 | 80.94m2(24.48坪) | ||
| 土地権利 | 所有権 | ||
| 間取り | 2LDK+S | ||
| 築年月 | 平成24年8月 | ||
| 構造 | 木造 地上3階建て | ||
| 都市計画 | 市街化 | ||
| 用途地域 | 第1種中高層住居専用地域 | ||
| 建ぺい率/容積率 | 60% / 200% | ||
| 地目 | 宅地 | ||
| 接道 | 北側 5.40m 公道 | ||
| 私道負担 | 無 |
||
| 現況 | 完成済 | ||
| 設備 | 都市ガス 公営水道 公共下水 | ||
| 入居年月 | 相談 | ||
| 取引形態 | 媒介 | ||
| 備考 | 2026/03 内装リフォーム完了予定・キッチン・トイレ・壁・床・洗面所・建具 準防火地域、第2種高度地区、【現況】空室、セットバック部分持分有:3.99平米、建物面積別途車庫スペースあり(9.11平米) |
||
| 更新日 | 2026年2月20日 | ||
| 次回更新予定日 | 2026年3月9日 | ||
| 取引有効期限 | 2026年03月09日 | ||
周辺環境
| 施設 | 北区立岩淵小学校 109m 北区立赤羽岩淵中学校 719m セブンイレブン 北区岩淵北本通り店 321m まいばすけっと 赤羽岩淵駅前店 477m Beans赤羽(ビーンズ赤羽) 1156m すずきクリニック 552m 碓井医院 406m はんだこどもクリニック 552m ファミリーマート 赤羽二丁目店 616m ダイエー赤羽スズラン通り店 948m サンドラッグ 赤羽店 850m 北区立志茂五丁目児童遊園 35m 明照幼稚園 263m 志茂つくし保育園 350m |
||
|---|---|---|---|
| 周辺の物件検索 | |||
現地見学会情報
月々の支払い
0円
| 物件価格 | 万円 |
|---|---|
| 自己資金 (頭金) |
万円 |
| 金利 | % |
| 返済年数 |
40年(NEW) 35年(一般的) 30年 |
※返済金額はあくまでも目安の数値となります。詳しくは下記よりご相談ください。
資金計画相談お問い合わせ 赤羽店
0120-303-976































