板橋区富士見町 新築一戸建て/全2棟 2号棟
月々の支払い
0円
| 物件価格 | 万円 |
|---|---|
| 自己資金 (頭金) |
万円 |
| 金利 | % |
| 返済年数 |
40年(NEW) 35年(一般的) 30年 |
※返済金額はあくまでも目安の数値となります。詳しくは下記よりご相談ください。
資金計画相談お問い合わせ ▶ 赤羽店
0120-303-976
| 価格 | 7480万円 (税込) |
| 所在地 | 東京都板橋区富士見町 |
| 沿線・駅 | 東武東上線ときわ台駅 徒歩10分 都営三田線板橋本町駅 徒歩13分 東武東上線中板橋駅 徒歩11分 |
| 建物面積 | 109.98m2(33.26坪) うち1F車庫 面積:12.42m2 |
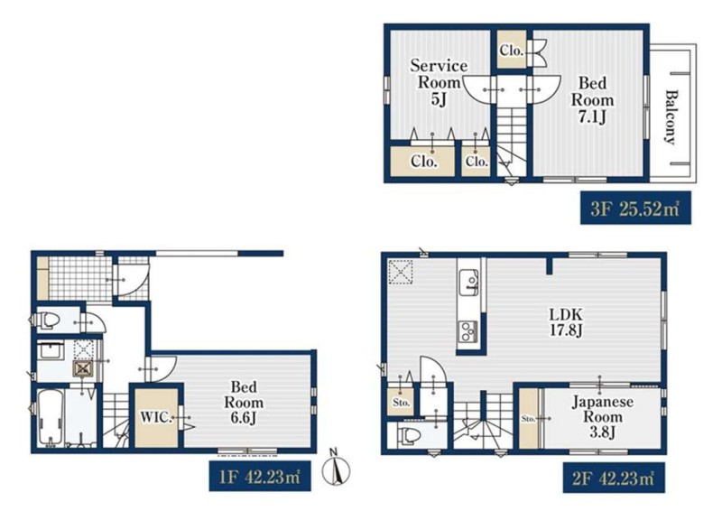
| 間取り | 2LDK+S |
間取り・区画図
おすすめポイント
【おかげさまでGoogle口コミ☆4.7】LDK17帖以上!駅10分以内!
☆☆おススメポイント☆☆
ときわ台駅徒歩10分、板橋本町駅徒歩13分、東向き!
即日・平日・夜間、いつでもご対応可能です。
モデルハウス、現地のご見学とあわせて周辺物件のご案内も一括して承っております。
コンビニ、ドラッグストアなど買い物施設まで徒歩圏内で行くことができる生活環境が良好な立地です。
また、保育園、幼稚園、小学校、中学校までも徒歩圏内で行くことができ子育て環境には最適な立地となります♪
公園もありお子様の遊び場やご家族での時間をゆったり過ごせる街並みです。
住宅ローンに自信があります。諸費用やおまとめローンなど何でもご相談ください。
物件詳細
| 所在地 | 東京都板橋区富士見町39-12 | ||
|---|---|---|---|
| 交通 | 東武東上線ときわ台駅 徒歩10分 都営三田線板橋本町駅 徒歩13分 東武東上線中板橋駅 徒歩11分 |
||
| 総戸数 | 2戸 | ||
| 販売戸数 | 1戸 | ||
| 価格 | 7480万円 (税込) | ||
| 土地面積 | 61.60m2(18.63坪) | ||
| 建物面積 | 109.98m2(33.26坪) うち1F車庫 面積:12.42m2 | ||
| 土地権利 | 所有権 | ||
| 間取り | 2LDK+S | ||
| 築年月 | 令和8年4月 | ||
| 構造 | 木造 地上3階建て | ||
| 都市計画 | 市街化 | ||
| 用途地域 | 第1種中高層住居専用地域 | ||
| 建ぺい率/容積率 | 70% / 160% | ||
| 地目 | 宅地 | ||
| 接道 | 東側 4.00m 私道 接面6.68m | ||
| 私道負担 | 無 |
||
| 現況 | 未完成 | ||
| 設備 | 都市ガス 公営水道 公共下水 | ||
| 入居年月 | 期日指定 2026年4月下旬 | ||
| 取引形態 | 媒介 | ||
| 備考 | 確認サービス第KS125-3120-51353号 準防火地域、最高限度22m第2種高度地区、宅地造成等工事規制区域、通行承諾・掘削許可書(覚書あり) | ||
| 更新日 | 2026年2月13日 | ||
| 次回更新予定日 | 2026年3月8日 | ||
| 取引有効期限 | 2026年03月08日 | ||
周辺環境
| 施設 | 板橋区立富士見台小学校 367m 板橋区立志村第一中学校 868m セブンイレブン 板橋前野町1丁目店 296m ライフ前野町店 569m EQUiA(エキア)ときわ台 889m 高木内科クリニック 304m 内村医院 649m 石川医院 570m セブンイレブン 板橋富士見町店 454m ファミリーマート 常盤台北口店 736m ビッグ・エー板橋双葉町店 572m 板橋区立常盤台公園 500m 板橋保育園 381m ソラストときわ台第二 538m |
||
|---|---|---|---|
| 周辺の物件検索 | |||
現地見学会情報
月々の支払い
0円
| 物件価格 | 万円 |
|---|---|
| 自己資金 (頭金) |
万円 |
| 金利 | % |
| 返済年数 |
40年(NEW) 35年(一般的) 30年 |
※返済金額はあくまでも目安の数値となります。詳しくは下記よりご相談ください。
資金計画相談お問い合わせ 赤羽店
0120-303-976































