葛飾区高砂6丁目 売地/建築条件なし
| 価格 | 4900万円 |
| 所在地 | 東京都葛飾区高砂6丁目 |
| 沿線・駅 | 京成本線京成高砂駅 徒歩11分 京成金町線京成高砂駅 徒歩11分 北総鉄道京成高砂駅 徒歩11分 京成金町線柴又駅徒歩19分 |
| 土地面積 | 60.89m2(18.41坪) |
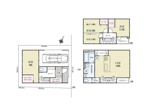
間取り・区画図
おすすめポイント
【ご案内致します♪】特急停車駅「京成高砂」駅徒歩11分♪建築条件なし売地!
区画整理が完了したスッキリとした街並みを形成しております。
車道に出る前に広い歩道も御座いますので、 小さいお子様が居るご家族も安心です。
お好きなハウスメーカー・工務店で建築可能♪
もちろんご紹介も可能です!
土地の広さに対して、どれくらいの間取りを入れられるのかが分かる
【参考プラン案】がございますのでお気軽にお問い合わせください。
■■■■■ ご見学予約受付中 ■■■■■
ご希望があれば周辺物件もご一緒にご案内できます。
現地集合・現地解散も可能。営業車での送迎も可能です。
お問い合わせは0120-180-344までお気軽にご連絡下さい。
ハウスプラザ青戸店
物件詳細
| 所在地 | 東京都葛飾区高砂6丁目11 | ||
|---|---|---|---|
| 交通 | 京成本線京成高砂駅 徒歩11分 京成金町線京成高砂駅 徒歩11分 北総鉄道京成高砂駅 徒歩11分 京成金町線柴又駅徒歩19分 |
||
| 総区画数 | 1区画 | ||
| 販売区画数 | 1区画 | ||
| 価格 | 4900万円 | ||
| 土地面積 | 60.89m2(18.41坪) セットバック | ||
| 土地権利 | 所有権 | ||
| 都市計画 | 市街化 | ||
| 用途地域 | 第1種住居地域 | ||
| 建ぺい率/容積率 | 60% / 200% | ||
| 地目 | 宅地 | ||
| 接道 | 北東側 21.79m 公道 | ||
| 私道負担 | 無 |
||
| 現況 | 更地 | ||
| 設備 | 都市ガス 公営水道 公共下水 | ||
| 引渡日 | 相談 | ||
| 取引形態 | 媒介 | ||
| 備考 | 準防火地域、第2種高度地区、【接道】北東21.79m~21.996m公道(歩道含む) | ||
| 更新日 | 2026年2月13日 | ||
| 次回更新予定日 | 2026年2月28日 | ||
| 取引有効期限 | 2026年02月28日 | ||
周辺環境
| 施設 | 葛飾区立住吉小学校 770m 葛飾区立新宿中学校 760m セブンイレブン 葛飾新宿3丁目店 450m まいばすけっと 葛飾新宿1丁目店 120m 東京かつしか赤十字母子医療センター 820m 東京都立葛飾商業高等学校 840m グルメシティ柴又店 830m 住吉子供第二広場 220m 新宿公園 210m 北野保育園 940m 北住吉幼稚園 880m 葛飾高砂たいよう保育園 550m 東中川保育園 290m |
||
|---|---|---|---|
| 周辺の物件検索 | |||
現地見学会情報
■現地販売会情報
【ご見学できます】事前にお問い合わせ下さい。
開催期間:2月12日(木)~2月28日(土)
事前に必ずお問合せ下さい
※平日にご希望の方は電話でお問い合わせ下さい。
お問い合わせ 青戸店
0120-180-344


























