江戸川区鹿骨3丁目 新築一戸建て/全2棟 A号棟
月々の支払い
0円
| 物件価格 | 万円 |
|---|---|
| 自己資金 (頭金) |
万円 |
| 金利 | % |
| 返済年数 |
40年(NEW) 35年(一般的) 30年 |
※返済金額はあくまでも目安の数値となります。詳しくは下記よりご相談ください。
資金計画相談お問い合わせ ▶ 篠崎店
0120-664-511
| 価格 | 5490万円 (税込) |
| 所在地 | 東京都江戸川区鹿骨3丁目 |
| 沿線・駅 | 都営新宿線篠崎駅 徒歩21分 JR中央・総武線小岩駅バス19分 京成バス 「鹿骨3丁目」バス停 停歩2分 JR総武本線新小岩駅バス23分 京成バス 「前沼橋」バス停 停歩3分 |
| 建物面積 | 110.95m2(33.56坪) うち1F車庫 面積:11.17m2 |
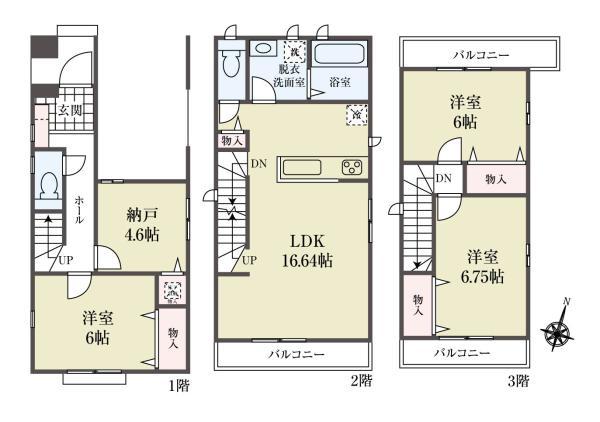
| 間取り | 3LDK+S |
間取り・区画図
おすすめポイント
即日ご案内致します!ハウスプラザ篠崎店
【おかげ様でグーグル口コミ☆4.9】
【北東角地】【災害に強いお家】【日当たり通風良好な立地】
【2階建て・3階建て】【生活環境良好】
【営業が感じたここがオススメポイント】
・まずはなんといっても都営新宿線「篠崎」駅徒歩21分の日当たり良好な立地
・いつでも現地やモデルハウスまでご案内いたします
・前面道路は車通りの少ない安心安全な住環境です
・玄関を開けると広々ホールが気持ちいい空間
・各お部屋の広さは十分に確保しており、収納スペースは充実
・リビングフロアは16帖から19帖超えの家具の配置がしやすい広々空間
・リビング水廻り集約のママ楽家事動線を採用
・住宅性能評価取得予定物件(設計性能評価・建設性能評価)
・頭金0円からご購入いただけます
・ハウスプラザ篠崎店にて住宅ローンの相談会を行っております
【生活環境良好な住環境】
江戸川区には住宅地域が広がり、区内には幼稚園や保育園、小中学校なども充実しており、子育て世代にも優しい環境です。大小さまざまな公園が存在し、自然が豊かで過ごしやすい環境が整っています
物件詳細
| 所在地 | 東京都江戸川区鹿骨3丁目100-1 | ||
|---|---|---|---|
| 交通 | 都営新宿線篠崎駅 徒歩21分 JR中央・総武線小岩駅バス19分 京成バス 「鹿骨3丁目」バス停 停歩2分 JR総武本線新小岩駅バス23分 京成バス 「前沼橋」バス停 停歩3分 |
||
| 総戸数 | 2戸 | ||
| 販売戸数 | 1戸 | ||
| 価格 | 5490万円 (税込) | ||
| 土地面積 | 70.65m2(21.37坪) | ||
| 建物面積 | 110.95m2(33.56坪) うち1F車庫 面積:11.17m2 | ||
| 土地権利 | 所有権 | ||
| 間取り | 3LDK+S | ||
| 築年月 | 令和8年4月 | ||
| 構造 | 木造 地上3階建て | ||
| 都市計画 | 市街化 | ||
| 用途地域 | 第1種中高層住居専用地域 | ||
| 建ぺい率/容積率 | 60% / 150% | ||
| 地目 | 宅地 | ||
| 接道 | 北側 7.00m 公道 東側 7.00m 公道 |
||
| 私道負担 | 無 |
||
| 現況 | 未完成 | ||
| 設備 | 都市ガス 公営水道 公共下水 | ||
| 入居年月 | 期日指定 2026年4月下旬 | ||
| 取引形態 | 媒介 | ||
| 備考 | 第HPA-25-15233-1号他 景観法、航空法、宅地造成工事規制区域、準防火地域、敷地面積最低限度有(70平米)、日影制限有、第二種高度地区、53条区域 | ||
| 更新日 | 2026年2月27日 | ||
| 次回更新予定日 | 2026年3月13日 | ||
| 取引有効期限 | 2026年03月13日 | ||
周辺環境
| 施設 | 江戸川区立鹿骨東小学校 321m 江戸川区立鹿骨中学校 719m 業務スーパー 鹿骨店 173m まちの便利スーパー ベンリー西篠崎店 249m セブン-イレブン 江戸川鹿骨3丁目店 278m ウエルシア 江戸川鹿骨店 444m 鹿骨おひさま保育園 771m こじか幼稚園 166m 押上第二幼稚園 1028m 鹿骨第三広場 320m 鹿骨町児童遊園 331m 医療法人三和会 東京東病院 401m 村上医院 569m 西篠崎おひさま保育園 425m |
||
|---|---|---|---|
| 周辺の物件検索 | |||
現地見学会情報
月々の支払い
0円
| 物件価格 | 万円 |
|---|---|
| 自己資金 (頭金) |
万円 |
| 金利 | % |
| 返済年数 |
40年(NEW) 35年(一般的) 30年 |
※返済金額はあくまでも目安の数値となります。詳しくは下記よりご相談ください。
資金計画相談お問い合わせ 篠崎店
0120-664-511














































