豊島区池袋4丁目 新築一戸建て
月々の支払い
0円
| 物件価格 | 万円 |
|---|---|
| 自己資金 (頭金) |
万円 |
| 金利 | % |
| 返済年数 |
40年(NEW) 35年(一般的) 30年 |
※返済金額はあくまでも目安の数値となります。詳しくは下記よりご相談ください。
資金計画相談お問い合わせ ▶ 池袋店
0120-954-387
| 価格 | 1億9980万円 (税込) |
| 所在地 | 東京都豊島区池袋4丁目 |
| 沿線・駅 | JR山手線池袋駅 徒歩12分 東京メトロ丸ノ内線池袋駅 徒歩12分 JR埼京線池袋駅 徒歩12分 |
| 建物面積 | 173.57m2(52.5坪) うち1F車庫 面積:15.13m2 |
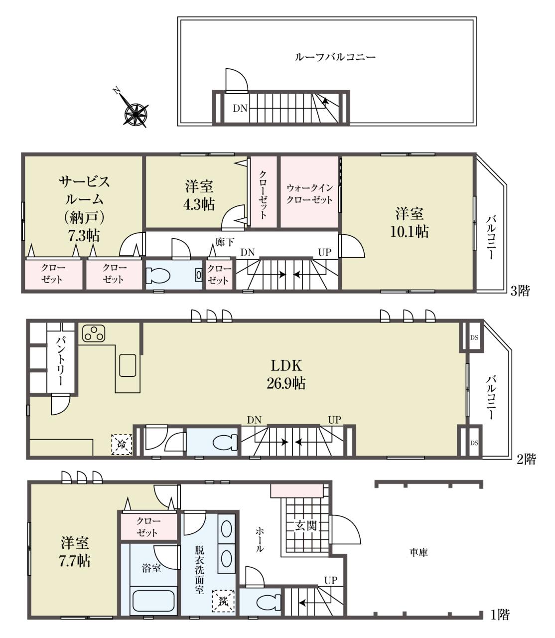
| 間取り | 3LDK+S |
間取り・区画図
おすすめポイント
池袋徒歩12分×LDK26帖 建物173平米超
忙しい毎日でも、帰れば自然と家族が集まる
池袋徒歩圏の角地に、約26.9帖の大空間LDKを確保した新築3階建です
床暖房のぬくもり、家事が進むキッチン、パントリースペース、ダブルボウル、各居室や共用部の収納の多さで“片付く暮らし”を実現。
約15帖のルーフバルコニーは都心の庭として、休日の朝食やお子様の遊び場に。
1620サイズと大型な浴室(浴室TV付き)で一日の終わりをリセット。
旅館許可の相談もでき、将来の選択肢も広がります。
都心アクセスと生活利便を手放さず、住まいの広さと快適性を両立できます。
前面約5.3m公道で車の出し入れもスムーズ、来客時も気兼ねなく迎えられる住まいです。
物件詳細
| 所在地 | 東京都豊島区池袋4丁目12 | ||
|---|---|---|---|
| 交通 | JR山手線池袋駅 徒歩12分 東京メトロ丸ノ内線池袋駅 徒歩12分 JR埼京線池袋駅 徒歩12分 |
||
| 総戸数 | 1戸 | ||
| 販売戸数 | 1戸 | ||
| 価格 | 1億9980万円 (税込) | ||
| 土地面積 | 80.64m2(24.39坪) | ||
| 建物面積 | 173.57m2(52.5坪) うち1F車庫 面積:15.13m2 | ||
| 土地権利 | 所有権 | ||
| 間取り | 3LDK+S | ||
| 築年月 | 令和8年5月 | ||
| 構造 | 木造 地上3階建て | ||
| 都市計画 | 市街化 | ||
| 用途地域 | 近隣商業地域 | ||
| 建ぺい率/容積率 | 90% / 300% | ||
| 地目 | 宅地 | ||
| 接道 | 南東側 5.30m 公道 北東側 4.00m 私道 |
||
| 私道負担 | 有(面積:31.97m²(9.67坪)) |
||
| 現況 | 未完成 | ||
| 設備 | 都市ガス 公営水道 公共下水 | ||
| 入居年月 | 期日指定 2026年5月下旬 | ||
| 取引形態 | 媒介 | ||
| 備考 | 第25UDI1S建00503号 準防火地域、第3種高度地区、宅地造成等工事規制区域、【隅切り部分】約0.99平米含む | ||
| 更新日 | 2026年2月13日 | ||
| 次回更新予定日 | 2026年3月8日 | ||
| 取引有効期限 | 2026年03月08日 | ||
周辺環境
| 施設 | 豊島区立池袋小学校 288m 豊島区立西池袋中学校 1690m ミニストップ 板橋中丸店 211m 肉のハナマサ 要町店 272m エチカ池袋 968m 関野病院 500m 阿部医院 96m ビッグ・エー山手通り中丸町店 270m maruetsu(マルエツ) 池袋店 434m 池袋いづみ幼稚園 376m 豊島区役所東池袋分庁舎 1271m 池袋公園 221m 池袋四丁目児童遊園 243m わくわく保育園 95m |
||
|---|---|---|---|
| 周辺の物件検索 | |||
現地見学会情報
月々の支払い
0円
| 物件価格 | 万円 |
|---|---|
| 自己資金 (頭金) |
万円 |
| 金利 | % |
| 返済年数 |
40年(NEW) 35年(一般的) 30年 |
※返済金額はあくまでも目安の数値となります。詳しくは下記よりご相談ください。
資金計画相談お問い合わせ 池袋店
0120-954-387











































