荒川区西尾久4丁目 新築一戸建て/全2棟
| 価格 | 8980万円~9098万円 (税込) |
| 所在地 | 東京都荒川区西尾久4丁目 |
| 沿線・駅 | JR東北本線(宇都宮線)尾久駅 徒歩9分 JR山手線田端駅 徒歩18分 都電荒川線小台駅 徒歩6分 |
| 建物面積 | 117.47m2(35.53坪)~127.55m2(38.58坪) |
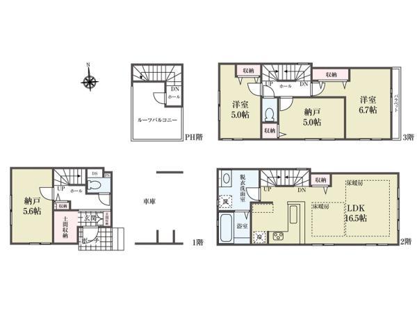
| 間取り | 2LDK+2S~3LDK+S |
各棟情報
おすすめポイント
【モデルハウス見学可能】ルーフバルコニーの有るお家。屋上で一日の疲れをゆっく癒せます。
◇◆◇おすすめポイント◇◆◇
□玄関わきに土間収納が有る2号棟
□両号棟共にリビング16帖以上。人が集まるリビングです。
□今のお家賃と比べてみて下さい。
□徒歩10分圏に学校・スーパー・病院が揃い、子育て環境も良好
□他の借り入れも住宅ローンに一本化するおまとめローンにも対応しておりますので支払い不安を軽減できます。
お問い合わせはハウスプラザ日暮里店までお気軽にどうぞ!
【フリーダイヤル 0120-417-081 携帯電話からもOK】
物件詳細
| 所在地 | 東京都荒川区西尾久4丁目14 | ||
|---|---|---|---|
| 交通 | JR東北本線(宇都宮線)尾久駅 徒歩9分 JR山手線田端駅 徒歩18分 都電荒川線小台駅 徒歩6分 |
||
| 総戸数 | 2戸 | ||
| 販売戸数 | 2戸 | ||
| 価格 | 8980万円~9098万円 (税込) | ||
| 土地面積 | 75.64m2(22.88坪) | ||
| 建物面積 | 117.47m2(35.53坪)~127.55m2(38.58坪) | ||
| 土地権利 | 所有権 | ||
| 間取り | 2LDK+2S~3LDK+S | ||
| 築年月 | 令和8年6月 | ||
| 構造 | 木造 地上3階建て | ||
| 都市計画 | 市街化 | ||
| 用途地域 | 準工業地域 | ||
| 建ぺい率/容積率 | 90% / 240% | ||
| 地目 | 宅地 | ||
| 接道 | 南西側 4.00m 公道 |
||
| 私道負担 | 無 |
||
| 現況 | 未完成 | ||
| 設備 | 都市ガス 公営水道 公共下水 | ||
| 入居年月 | 期日指定 2026年6月下旬 | ||
| 取引形態 | 媒介 | ||
| 備考 | 第KBI-YKH25-10-3336号他 準防火地域、第三種高度地区、宅地造成等工事規制区域、最低敷地面積60平米、新防火地域、特別工業地区、【車庫面積含む】10.09平米(1号棟)・13.40平米(2号棟)、協定地あり | ||
| 更新日 | 2026年2月6日 | ||
| 次回更新予定日 | 2026年2月23日 | ||
| 開発面積 | |||
| 取引有効期限 | 2026年02月23日 | ||
周辺環境
| 施設 | 荒川区立尾久西小学校 619m 荒川区立第七中学校 399m セブンイレブン 荒川西尾久1丁目店 240m Olympic西尾久店 381m atrevie TABATA(アトレヴィ田端) 1338m 令和あらかわ病院 650m かわさき内科クリニック 316m スーパーみらべる 小台店 389m スーパーバリュー西尾久店 475m 尾久第二幼稚園 1100m あらかわ遊園 950m 西尾久四丁目北公園 250m 荒川区立宮前公園 706m 西尾久みどり保育園 406m |
||
|---|---|---|---|
| 周辺の物件検索 | |||
現地見学会情報
お支払いローンシミュレーション
月々の支払い
0円
| 物件価格 | 万円 |
|---|---|
| 自己資金 (頭金) |
万円 |
| 金利 | % |
| 返済年数 |
40年(NEW) 35年(一般的) 30年 |
※返済金額はあくまでも目安の数値となります。詳しくは下記よりご相談ください。
資金計画相談お問い合わせ 日暮里店
0120-417-081







































