葛飾区南水元2丁目 新築一戸建て/全2棟 B号棟
月々の支払い
0円
| 物件価格 | 万円 |
|---|---|
| 自己資金 (頭金) |
万円 |
| 金利 | % |
| 返済年数 |
40年(NEW) 35年(一般的) 30年 |
※返済金額はあくまでも目安の数値となります。詳しくは下記よりご相談ください。
資金計画相談お問い合わせ ▶ 金町店
0120-787-551
| 価格 | 5190万円 (税込) |
| 所在地 | 東京都葛飾区南水元2丁目 |
| 沿線・駅 | 千代田常磐線金町駅 徒歩24分 京成金町線京成金町駅 徒歩24分 千代田常磐線亀有駅バス15分 「葛飾清掃工場」バス停 停歩5分 |
| 建物面積 | 97.92m2(29.62坪) |
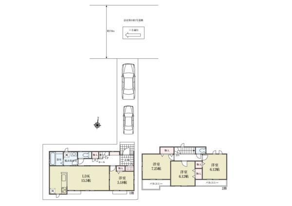
| 間取り | 4LDK |
間取り・区画図
おすすめポイント
【Google口コミ4.8】 車庫2台 土地34坪越え ご案内可能です
◇◆◇◆◇◆◇◆◇◆◇◆◇◆◇◆◇◆◇◆◇◆◇◆◇◆◇◆◇◆◇◆
都心までアクセス良好なJR常磐線「金町駅」
「金町駅」からは「東京駅」直結の「大手町駅」まで25分で到着いたします。
【おススメポイント】
・車庫2台駐車可能(車種による)
・土地34坪超のビッグプラン
・前面道路も広く開放感がございます
・周辺には学校や公園、買い物施設も揃った利便性
・収納豊富な充実の4LDK
ご見学・ご不明点などは気軽にお問い合わせください。
◇◆◇◆◇◆◇◆◇◆◇◆◇◆◇◆◇◆◇◆◇◆◇◆◇◆◇◆◇◆◇◆
物件詳細
| 所在地 | 東京都葛飾区南水元2丁目18 | ||
|---|---|---|---|
| 交通 | 千代田常磐線金町駅 徒歩24分 京成金町線京成金町駅 徒歩24分 千代田常磐線亀有駅バス15分 「葛飾清掃工場」バス停 停歩5分 |
||
| 総戸数 | 2戸 | ||
| 販売戸数 | 1戸 | ||
| 価格 | 5190万円 (税込) | ||
| 土地面積 | 116.88m2(35.35坪)(うち路地状部分:29.80m2) | ||
| 建物面積 | 97.92m2(29.62坪) | ||
| 土地権利 | 所有権 | ||
| 間取り | 4LDK | ||
| 築年月 | 令和8年4月 | ||
| 構造 | 木造 地上2階建て | ||
| 都市計画 | 市街化 | ||
| 用途地域 | 第2種低層住居専用地域 | ||
| 建ぺい率/容積率 | 50% / 150% | ||
| 地目 | 宅地 | ||
| 接道 | 北側 7.00m 公道 | ||
| 私道負担 | 無 |
||
| 現況 | 未完成 | ||
| 設備 | 都市ガス 公営水道 公共下水 | ||
| 入居年月 | 期日指定 2026年4月下旬 | ||
| 取引形態 | 媒介 | ||
| 備考 | 第HPA-25-15231-1号 第1種高度地区、都市計画法第53条区域、準防火地域 | ||
| 更新日 | 2026年3月5日 | ||
| 次回更新予定日 | 2026年4月10日 | ||
| 取引有効期限 | 2026年04月10日 | ||
周辺環境
| 施設 | 葛飾区立飯塚小学校 228m 葛飾区立葛美中学校 1140m ファミリーマート 葛飾水元店 273m ビッグ・エー葛飾南水元店 595m MARK IS katsushika kanamachi(マークイズ葛飾かなまち) 1529m 愛育苑診療所 1052m セブン-イレブン 葛飾南水元2丁目店 387m いなげや金町店 1306m えんアニマルクリニック 885m 葛飾区役所 科学教育センター未来わくわく館 963m 水元スポーツセンター公園 202m ポニースクールかつしか 778m 南水元いろは保育園 228m |
||
|---|---|---|---|
| 周辺の物件検索 | |||
現地見学会情報
月々の支払い
0円
| 物件価格 | 万円 |
|---|---|
| 自己資金 (頭金) |
万円 |
| 金利 | % |
| 返済年数 |
40年(NEW) 35年(一般的) 30年 |
※返済金額はあくまでも目安の数値となります。詳しくは下記よりご相談ください。
資金計画相談お問い合わせ 金町店
0120-787-551
































