浦安市弁天4丁目 新築一戸建て/全2棟 A号棟
月々の支払い
0円
| 物件価格 | 万円 |
|---|---|
| 自己資金 (頭金) |
万円 |
| 金利 | % |
| 返済年数 |
40年(NEW) 35年(一般的) 30年 |
※返済金額はあくまでも目安の数値となります。詳しくは下記よりご相談ください。
資金計画相談お問い合わせ ▶ 浦安店
0120-980-611
| 価格 | 6890万円 (税込) |
| 所在地 | 千葉県浦安市弁天4丁目 |
| 沿線・駅 | JR京葉線舞浜駅 徒歩16分 東京メトロ東西線浦安駅バス17分 「見明川住宅」バス停 停歩9分 |
| 建物面積 | 82.80m2(25.04坪) |
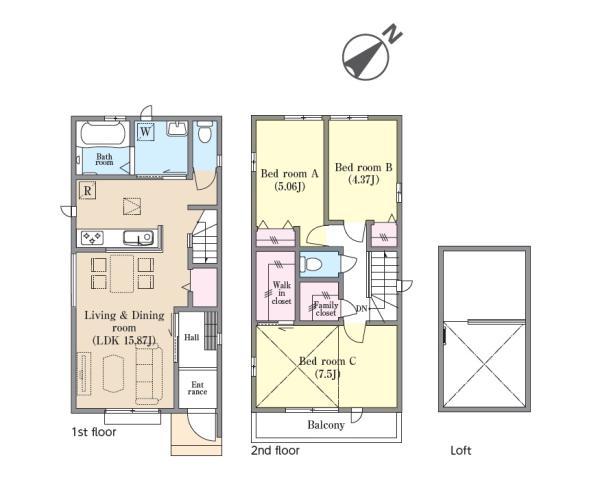
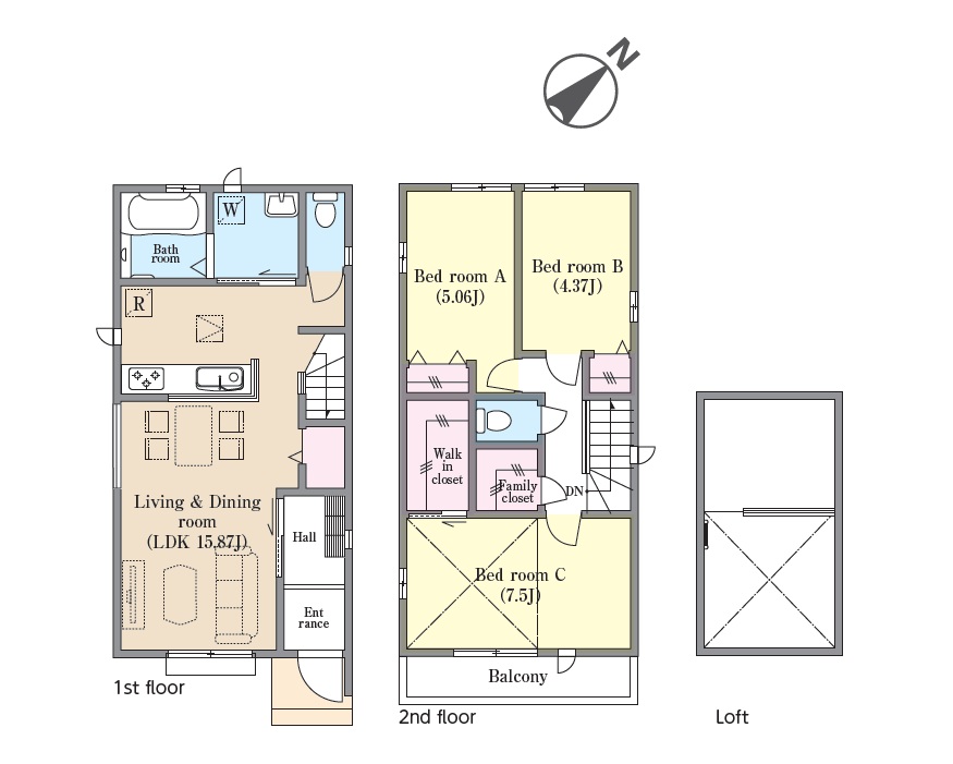
| 間取り | 3LDK |
間取り・区画図
おすすめポイント
【毎日見学可能】
◇閑静な住宅街に新築戸建ての誕生です!
高い建物が少なく開放感のある閑静な住宅地に収納豊富な2階建てが誕生します。周辺環境も子育て中のファミリーにおすすめしたい環境となっております。収納に関してはウォークインクローゼット、ファミリークローゼット、ロフト等の利用目的に合わせて多彩な収納スペースがございます。またA,B号棟ともに主寝室にロフトがあります。収納だけではなく縦空間のおくゆきを感じられることでしょう。建物設備・仕様をモデルハウスにてご確認できます。ぜひ一度見学してみてはいかがでしょうか?今から建物完成が楽しみです。
物件詳細
| 所在地 | 千葉県浦安市弁天4丁目11 | ||
|---|---|---|---|
| 交通 | JR京葉線舞浜駅 徒歩16分 東京メトロ東西線浦安駅バス17分 「見明川住宅」バス停 停歩9分 |
||
| 総戸数 | 2戸 | ||
| 販売戸数 | 1戸 | ||
| 価格 | 6890万円 (税込) | ||
| 土地面積 | 83.06m2(25.12坪) | ||
| 建物面積 | 82.80m2(25.04坪) | ||
| 土地権利 | 所有権 | ||
| 間取り | 3LDK | ||
| 築年月 | 令和8年4月 | ||
| 構造 | 木造 地上2階建て | ||
| 都市計画 | 市街化 | ||
| 用途地域 | 第1種低層住居専用地域 | ||
| 建ぺい率/容積率 | 50% / 100% | ||
| 地目 | 宅地 | ||
| 接道 | 南東側 5.90m 公道 | ||
| 私道負担 | 無 |
||
| 現況 | 未完成 | ||
| 設備 | 都市ガス 公営水道 公共下水 | ||
| 入居年月 | 期日指定 2026年4月下旬 | ||
| 取引形態 | 媒介 | ||
| 備考 | 第HPA-26-00501-1号 法第22条区域、高さ限度有 | ||
| 更新日 | 2026年3月19日 | ||
| 次回更新予定日 | 2026年4月9日 | ||
| 取引有効期限 | 2026年04月09日 | ||
周辺環境
| 施設 | 浦安市立見明川小学校 393m 浦安市立見明川中学校 529m セブンイレブン 湾岸浦安インター店 452m サミットストア ライフガーデン浦安富岡店 1045m ライフガーデン新浦安 897m アクロスプラザ浦安東野 1417m ドラッグセイムス 舞浜店 1288m ローソン 浦安見明川店 595m アスク舞浜保育園 711m 弁天ふれあいの森公園 264m 大三角公園 846m 浦安市立見明川認定こども園 218m |
||
|---|---|---|---|
| 周辺の物件検索 | |||
現地見学会情報
月々の支払い
0円
| 物件価格 | 万円 |
|---|---|
| 自己資金 (頭金) |
万円 |
| 金利 | % |
| 返済年数 |
40年(NEW) 35年(一般的) 30年 |
※返済金額はあくまでも目安の数値となります。詳しくは下記よりご相談ください。
資金計画相談お問い合わせ 浦安店
0120-980-611































