豊島区池袋本町2丁目 新築一戸建て/全2棟 1号棟
月々の支払い
0円
| 物件価格 | 万円 |
|---|---|
| 自己資金 (頭金) |
万円 |
| 金利 | % |
| 返済年数 |
40年(NEW) 35年(一般的) 30年 |
※返済金額はあくまでも目安の数値となります。詳しくは下記よりご相談ください。
資金計画相談お問い合わせ ▶ 池袋店
0120-954-387
| 価格 | 1億3180万円 (税込) |
| 所在地 | 東京都豊島区池袋本町2丁目 |
| 沿線・駅 | 東武東上線北池袋駅 徒歩8分 JR山手線池袋駅 徒歩18分 東京メトロ丸ノ内線池袋駅 徒歩18分 |
| 建物面積 | 141.67m2(42.85坪) うち1F車庫 面積:11.38m2 |
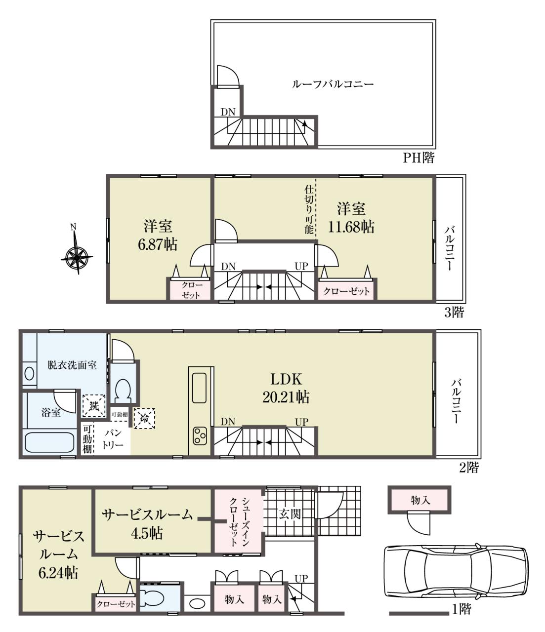
| 間取り | 2LDK+2S |
間取り・区画図
おすすめポイント
池袋徒歩圏・建物141平米・家事集約動線と可変間取、屋上が描く機能的居住空間
【池袋徒歩圏×建物面積141平米超の資産性と機能性】
8路線利用可能な「池袋」駅へ徒歩18分。都心利便と住環境を両立する立地に、LDK20帖超の大型邸宅が登場。
【時間と空間を最大化する合理的設計】
水回りを2階に集約し、洗濯動線をワンフロアで完結させることで家事時間を短縮。11.68帖の洋室は将来的に2部屋へ分割可能で、家族構成の変化に柔軟に対応します。
【都市生活の質を高める設備仕様】
ダブルボウル洗面台、床暖房2面、豊富な収納に加え、多目的に使えるルーフバルコニーを完備。機能美と居住性を追求した、永住に相応しい仕様です。
このエリアで検討中のお客様はぜひ一度ご見学ください!
物件詳細
| 所在地 | 東京都豊島区池袋本町2丁目17 | ||
|---|---|---|---|
| 交通 | 東武東上線北池袋駅 徒歩8分 JR山手線池袋駅 徒歩18分 東京メトロ丸ノ内線池袋駅 徒歩18分 |
||
| 総戸数 | 2戸 | ||
| 販売戸数 | 1戸 | ||
| 価格 | 1億3180万円 (税込) | ||
| 土地面積 | 81.46m2(24.64坪) | ||
| 建物面積 | 141.67m2(42.85坪) うち1F車庫 面積:11.38m2 | ||
| 土地権利 | 所有権 | ||
| 間取り | 2LDK+2S | ||
| 築年月 | 令和8年4月 | ||
| 構造 | 木造 地上3階建て | ||
| 都市計画 | 市街化 | ||
| 用途地域 | 第1種中高層住居専用地域 | ||
| 建ぺい率/容積率 | 60% / 160% | ||
| 地目 | 宅地 | ||
| 接道 | 東側 3.20m 公道 | ||
| 私道負担 | 無 |
||
| 現況 | 未完成 | ||
| 設備 | 都市ガス 公営水道 公共下水 | ||
| 入居年月 | 期日指定 2026年4月下旬 | ||
| 取引形態 | 媒介 | ||
| 備考 | 第KBI-SGM25-10-4685号 準防火地域、新防火地域、第3種高度地区、池袋本町地区地区計画 | ||
| 更新日 | 2026年2月13日 | ||
| 次回更新予定日 | 2026年3月8日 | ||
| 取引有効期限 | 2026年03月08日 | ||
周辺環境
| 施設 | 豊島区立池袋本町小学校 372m 豊島区立池袋中学校 376m セブンイレブン 豊島池袋本町3丁目店 156m まいばすけっと 池袋本町1丁目店 323m ドン・キホーテ北池袋店 400m 大成会(社会医療法人社団)長汐病院 910m 田村医院 343m ヨークマート下板橋店 770m ビッグ・エー山手通り中丸町店 800m こざくら幼稚園 465m 豊島区役所東池袋分庁舎 1339m 池袋本町三丁目児童遊園 272m 池袋本町公園 369m 豊島区立池袋第二保育園 189m |
||
|---|---|---|---|
| 周辺の物件検索 | |||
現地見学会情報
月々の支払い
0円
| 物件価格 | 万円 |
|---|---|
| 自己資金 (頭金) |
万円 |
| 金利 | % |
| 返済年数 |
40年(NEW) 35年(一般的) 30年 |
※返済金額はあくまでも目安の数値となります。詳しくは下記よりご相談ください。
資金計画相談お問い合わせ 池袋店
0120-954-387







































