足立区西新井3丁目 新築一戸建て
月々の支払い
0円
| 物件価格 | 万円 |
|---|---|
| 自己資金 (頭金) |
万円 |
| 金利 | % |
| 返済年数 |
40年(NEW) 35年(一般的) 30年 |
※返済金額はあくまでも目安の数値となります。詳しくは下記よりご相談ください。
資金計画相談お問い合わせ ▶ 竹の塚店
0120-973-767
| 価格 | 6998万円 (税込) |
| 所在地 | 東京都足立区西新井3丁目 |
| 沿線・駅 | 東武大師線大師前駅 徒歩14分 東武伊勢崎線西新井駅 徒歩21分 日暮里・舎人ライナー谷在家駅 徒歩18分 |
| 建物面積 | 130.05m2(39.34坪) うち1F車庫 面積:11.24m2 |
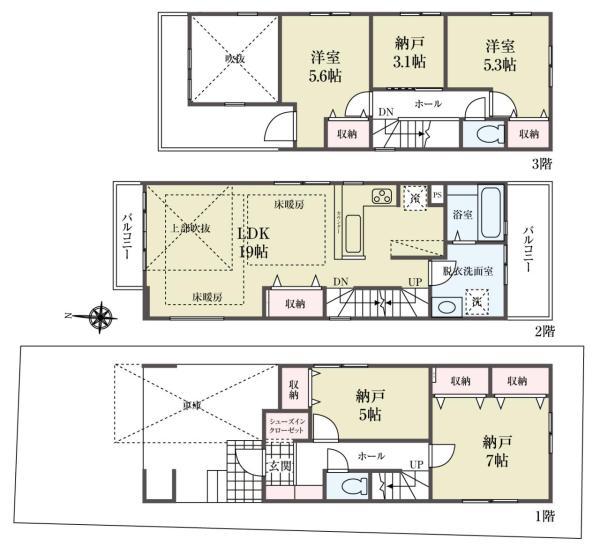
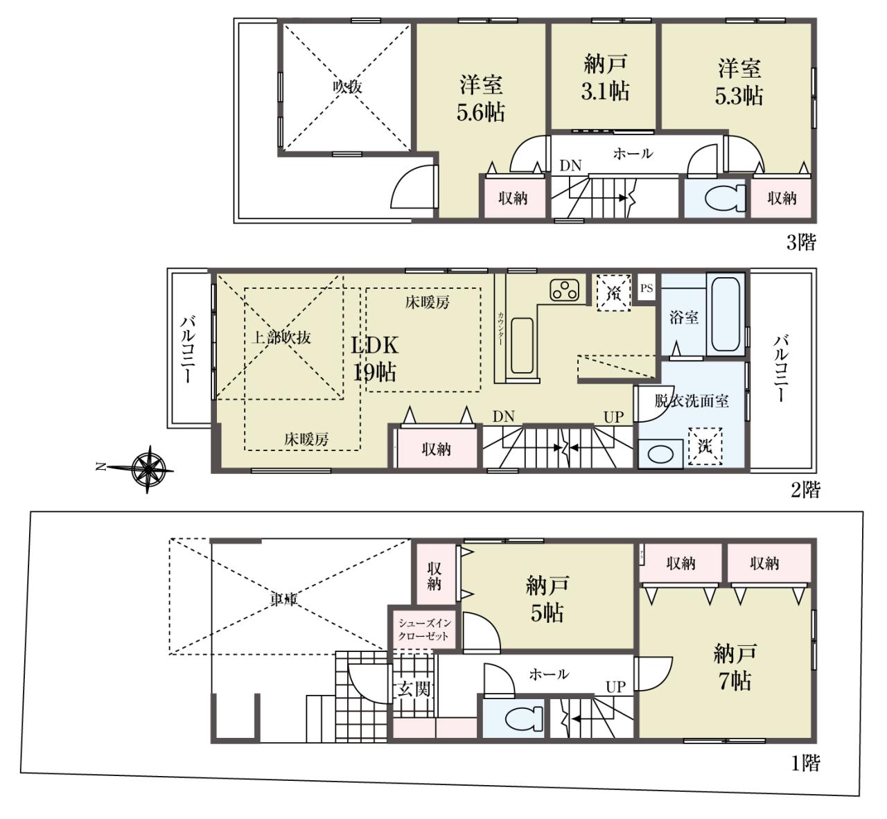
| 間取り | 2LDK+3S |
間取り・区画図
おすすめポイント
即日ご案内します【おかげさまでグーグル口コミ4.9】ハウスプラザ竹の塚店
【営業が感じたここがオススメポイント】
■約95平米超の広々とした土地です。
■周辺環境が充実!西伊興小学校や公園、保育園はもちろん、買い物施設も徒歩圏内に揃っております!
■始発駅「大師前」駅が徒歩14分、さらに舎人ライナーと東武線も使える好立地な物件です。
■北道路ですが、西側が約17m超の間口に通路部分が隣接。開放感ある土地となっております。
■いつでも現地のご見学可能です!さらに、モデルハウスなども内覧できます
■吹き抜けがある19帖LDKで開放感あります
■水回り集約型のLDKで生活動線がスムーズで子育て世帯にもオススメです
■住宅ローンに自信があります。諸費用やおまとめローンなど何でもご相談ください。
物件詳細
| 所在地 | 東京都足立区西新井3丁目【地番】 | ||
|---|---|---|---|
| 交通 | 東武大師線大師前駅 徒歩14分 東武伊勢崎線西新井駅 徒歩21分 日暮里・舎人ライナー谷在家駅 徒歩18分 |
||
| 総戸数 | 1戸 | ||
| 販売戸数 | 1戸 | ||
| 価格 | 6998万円 (税込) | ||
| 土地面積 | 95.62m2(28.92坪) | ||
| 建物面積 | 130.05m2(39.34坪) うち1F車庫 面積:11.24m2 | ||
| 土地権利 | 所有権 | ||
| 間取り | 2LDK+3S | ||
| 築年月 | 令和8年7月 | ||
| 構造 | 木造 地上3階建て | ||
| 都市計画 | 市街化 | ||
| 用途地域 | 第1種中高層住居専用地域 | ||
| 建ぺい率/容積率 | 70% / 160% | ||
| 地目 | 宅地 | ||
| 接道 | 北側 4.00m 公道 | ||
| 私道負担 | 無 |
||
| 現況 | 未完成 | ||
| 設備 | 都市ガス 公営水道 公共下水 | ||
| 入居年月 | 期日指定 2026年7月中旬 | ||
| 取引形態 | 媒介 | ||
| 備考 | 第KBI-YKH25-10-3659号 準防火地域、宅地造成工事規制区域、第2種高度地区、西側通路あり【通路持分】有り:32.81平米×10/62 | ||
| 更新日 | 2026年3月23日 | ||
| 次回更新予定日 | 2026年4月10日 | ||
| 取引有効期限 | 2026年04月10日 | ||
周辺環境
| 施設 | 足立区立西伊興小学校 800m 足立区立西新井中学校 1400m ファミリーマート 西新井三丁目店 190m マルエツ 西新井店 340m アリオ西新井 1600m 東京洪誠病院 520m EQUiA竹ノ塚 1260m しみず医院 1140m セブンイレブン 足立栗原4丁目店 240m はなぞの幼稚園 530m くりはら愛育保育園 480m 足立区立いかづち公園 250m 舎人公園 2260m うぃず西新井保育園 170m |
||
|---|---|---|---|
| 周辺の物件検索 | |||
現地見学会情報
月々の支払い
0円
| 物件価格 | 万円 |
|---|---|
| 自己資金 (頭金) |
万円 |
| 金利 | % |
| 返済年数 |
40年(NEW) 35年(一般的) 30年 |
※返済金額はあくまでも目安の数値となります。詳しくは下記よりご相談ください。
資金計画相談お問い合わせ 竹の塚店
0120-973-767











































