中野区中央3丁目 新築一戸建て/全2棟 1号棟
月々の支払い
0円
| 物件価格 | 万円 |
|---|---|
| 自己資金 (頭金) |
万円 |
| 金利 | % |
| 返済年数 |
40年(NEW) 35年(一般的) 30年 |
※返済金額はあくまでも目安の数値となります。詳しくは下記よりご相談ください。
資金計画相談お問い合わせ ▶ 池袋店
0120-954-387
| 価格 | 1億1680万円 (税込) |
| 所在地 | 東京都中野区中央3丁目 |
| 沿線・駅 | JR中央線中野駅 徒歩15分 JR中央・総武線中野駅 徒歩15分 東京メトロ丸ノ内線新中野駅 徒歩10分 |
| 建物面積 | 122.30m2(36.99坪) うち地下面積:31.26m2 うち地下車庫 面積:11.26m2 |
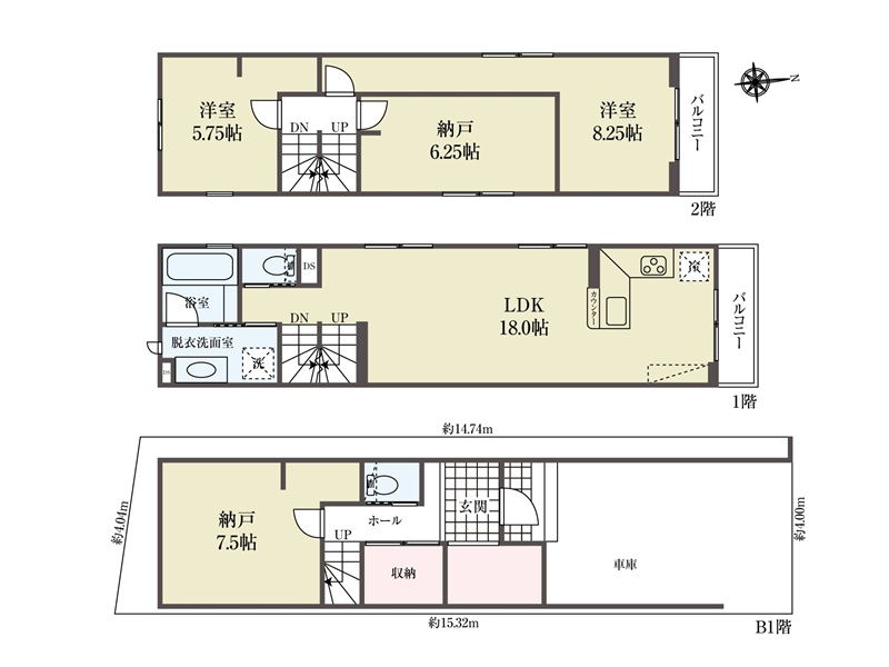
| 間取り | 2LDK+2S |
間取り・区画図
おすすめポイント
耐震等級3×延床120平米超×屋上テラス
大規模再開発が進む中野エリアの大型新築分譲。
丸ノ内線「新中野」歩10分・JR「中野」歩15分
◆「可変プラン」×「資産価値」で永住品質を極める】
大規模再開発が進む中野エリア。
将来を見据えた資産性に、ライフステージに合わせて進化する居住性能を。
◇「可変間取り」×「120平米超」の柔軟性
2階の撤去可能壁により3部屋⇔4部屋に変更可能。
お子様の成長や独立など、家族構成の変化に合わせて調整でき、大規模リフォームなしで永く快適に住み継げます。
◆「耐震等級3」×「4寸柱」の資産防衛
消防署と同等の最も高い等級耐震と、高耐久4寸柱を採用。
大地震への備えが、家族の安全と資産価値の維持に直結します。
◇「屋上テラス」×「地下RC室」の非日常
視線を気にせず空を独占するテラス。
防音性の高い地下室が、都心での「開放感」と「没頭」を叶えます。
物件詳細
| 所在地 | 東京都中野区中央3丁目16 | ||
|---|---|---|---|
| 交通 | JR中央線中野駅 徒歩15分 JR中央・総武線中野駅 徒歩15分 東京メトロ丸ノ内線新中野駅 徒歩10分 |
||
| 総戸数 | 2戸 | ||
| 販売戸数 | 1戸 | ||
| 価格 | 1億1680万円 (税込) | ||
| 土地面積 | 60.17m2(18.2坪) | ||
| 建物面積 | 122.30m2(36.99坪) うち地下面積:31.26m2 うち地下車庫 面積:11.26m2 | ||
| 土地権利 | 所有権 | ||
| 間取り | 2LDK+2S | ||
| 築年月 | 令和8年5月 | ||
| 構造 | 木造 地上2階 地下1階建て | ||
| 都市計画 | 市街化 | ||
| 用途地域 | 第1種中高層住居専用地域 | ||
| 建ぺい率/容積率 | 70% / 160% | ||
| 地目 | 宅地 | ||
| 接道 | 北側 3.62m 公道 | ||
| 私道負担 | 無 |
||
| 現況 | 未完成 | ||
| 設備 | 都市ガス 公営水道 公共下水 | ||
| 入居年月 | 期日指定 2026年5月下旬 | ||
| 取引形態 | 媒介 | ||
| 備考 | 第KBI-SGM25-10-4239号 準防火地域、第二種高度地区、宅地造成等工事規制区域、最低敷地面積60平米 | ||
| 更新日 | 2026年3月2日 | ||
| 次回更新予定日 | 2026年3月22日 | ||
| 取引有効期限 | 2026年03月22日 | ||
周辺環境
| 施設 | 中野区立谷戸小学校 397m 中野区立中野東中学校 1067m セブンイレブン 中野一丁目店 154m まいばすけっと 中野2丁目店 442m 中野サンモール商店街 1342m 新渡戸記念中野総合病院 820m 宇野医院 508m 肉のハナマサ 中野店 456m マルマンストア中野店 490m 仲町保育園 297m 中野区役所 1746m 城山公園 462m 上の原公園 873m ほりこし幼稚園 260m |
||
|---|---|---|---|
| 周辺の物件検索 | |||
現地見学会情報
月々の支払い
0円
| 物件価格 | 万円 |
|---|---|
| 自己資金 (頭金) |
万円 |
| 金利 | % |
| 返済年数 |
40年(NEW) 35年(一般的) 30年 |
※返済金額はあくまでも目安の数値となります。詳しくは下記よりご相談ください。
資金計画相談お問い合わせ 池袋店
0120-954-387




































