江戸川区西小岩4丁目 新築一戸建て
月々の支払い
0円
| 物件価格 | 万円 |
|---|---|
| 自己資金 (頭金) |
万円 |
| 金利 | % |
| 返済年数 |
40年(NEW) 35年(一般的) 30年 |
※返済金額はあくまでも目安の数値となります。詳しくは下記よりご相談ください。
資金計画相談お問い合わせ ▶ 篠崎店
0120-664-511
| 価格 | 9580万円 (税込) |
| 所在地 | 東京都江戸川区西小岩4丁目 |
| 沿線・駅 | JR中央・総武線小岩駅 徒歩8分 京成本線京成小岩駅 徒歩10分 千代田常磐線金町駅バス19分 京成バス 「北小岩2丁目」バス停 停歩5分 |
| 建物面積 | 140.67m2(42.55坪) うち1F車庫 面積:12.42m2 |
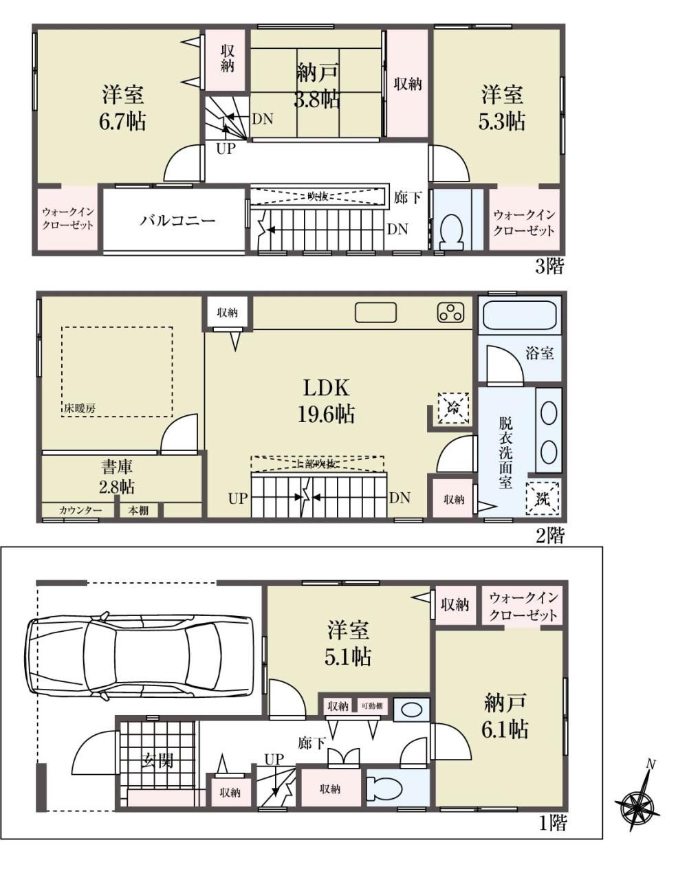
| 間取り | 4LDK+2S |
間取り・区画図
おすすめポイント
注目物件!ハウスプラザ篠崎店
【おかげさまでグーグル口コミ☆4.9】
【デザイナーズハウス】【小岩駅徒歩8分駅チカ好立地】【リビング天井高2.6m】
【住宅設備・収納充実】【吹抜け天井】【書斎】
【営業が感じたここがオススメポイント】
・まずは何といっても再開発エリアのJR総武線「小岩」駅徒歩8分の駅チカ好立地
・いつでも現地やモデルハウスまでご案内いたします
・プレゼンテーションのご予約受付中
・前面道路は南西公道面5.4mに面した日当たり通風良好且つ、車通りの少ない安心安全な住環境です
・玄関を開けると広々ホールが気持ちいい空間+収納スペース付き!
・リビングダイニングは約20帖の広々とした空間+水廻り集約のママ楽家事動線を採用
・キッチン上部は気持ちの良い吹き抜け天井
・あったら嬉しいキッチンパントリースペースもご用意
・リビングフロアは天井高2.6mの開放感あるくつろぎの空間
・リビングフロアには書庫を設け、書斎スペースやテレワークスペースなどに最適です
・各お部屋の広さは十分確保しており、ウォークインクローゼットなど収納スペースは充実
物件詳細
| 所在地 | 東京都江戸川区西小岩4丁目12 | ||
|---|---|---|---|
| 交通 | JR中央・総武線小岩駅 徒歩8分 京成本線京成小岩駅 徒歩10分 千代田常磐線金町駅バス19分 京成バス 「北小岩2丁目」バス停 停歩5分 |
||
| 総戸数 | 1戸 | ||
| 販売戸数 | 1戸 | ||
| 価格 | 9580万円 (税込) | ||
| 土地面積 | 70.07m2(21.19坪) | ||
| 建物面積 | 140.67m2(42.55坪) うち1F車庫 面積:12.42m2 | ||
| 土地権利 | 所有権 | ||
| 間取り | 4LDK+2S | ||
| 築年月 | 令和8年9月 | ||
| 構造 | 木造 地上3階建て | ||
| 都市計画 | 市街化 | ||
| 用途地域 | 第1種住居地域 | ||
| 建ぺい率/容積率 | 60% / 300% | ||
| 地目 | 宅地 | ||
| 接道 | 南西側 5.40m 公道 | ||
| 私道負担 | 無 |
||
| 現況 | 未完成 | ||
| 設備 | 都市ガス 公営水道 公共下水 | ||
| 入居年月 | 期日指定 2026年9月下旬 | ||
| 取引形態 | 媒介 | ||
| 備考 | 第25UDI1T建03973号 景観法、航空法、宅地造成工事規制区域、準防火地域、敷地面積最低限度有、日影制限有、第三種高度地区 | ||
| 更新日 | 2026年3月12日 | ||
| 次回更新予定日 | 2026年4月10日 | ||
| 取引有効期限 | 2026年04月10日 | ||
周辺環境
| 施設 | 江戸川区立西小岩小学校 417m 江戸川区立小岩第四中学校 598m スーパーマーケットリコス 西小岩1丁目店 468m ローソンストア100 西小岩四丁目店 67m どらっぐぱぱす 西小岩店 428m なでしこ保育園 522m 認定こども園葛飾みどり 561m レジナ幼稚園 164m 西小岩幼稚園 349m 江戸川区立西小岩公園 269m 西小岩五丁目児童遊園 376m 西小岩ファミリークリニック 217m 篠崎医院 447m ライフ 西小岩店 202m |
||
|---|---|---|---|
| 周辺の物件検索 | |||
現地見学会情報
月々の支払い
0円
| 物件価格 | 万円 |
|---|---|
| 自己資金 (頭金) |
万円 |
| 金利 | % |
| 返済年数 |
40年(NEW) 35年(一般的) 30年 |
※返済金額はあくまでも目安の数値となります。詳しくは下記よりご相談ください。
資金計画相談お問い合わせ 篠崎店
0120-664-511



















































