江東区大島7丁目 新築一戸建て/全2棟 A号棟
月々の支払い
0円
| 物件価格 | 万円 |
|---|---|
| 自己資金 (頭金) |
万円 |
| 金利 | % |
| 返済年数 |
40年(NEW) 35年(一般的) 30年 |
※返済金額はあくまでも目安の数値となります。詳しくは下記よりご相談ください。
資金計画相談お問い合わせ ▶ 錦糸町店
0120-987-419
| 価格 | 7280万円 (税込) |
| 所在地 | 東京都江東区大島7丁目 |
| 沿線・駅 | 都営新宿線大島駅 徒歩5分 都営新宿線東大島駅 徒歩8分 JR中央・総武線亀戸駅 徒歩20分 |
| 建物面積 | 84.75m2(25.63坪) うち1F車庫 面積:10.78m2 |
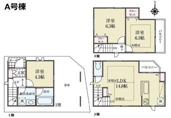
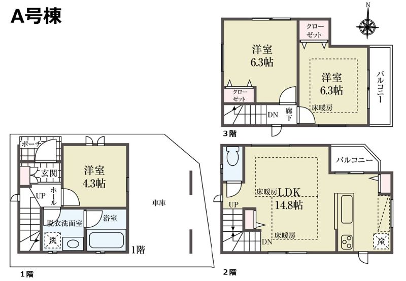
| 間取り | 3LDK |
間取り・区画図
おすすめポイント
【おかげさまでGoogle口コミ☆5.0】
都営新宿線『大島駅』徒歩5分・新築戸建ての発表です♪
現地・モデルハウスのご見学が可能です!
◇◆◇おすすめPOINT◇◆◇
・大島駅まで徒歩5分、東大島駅まで徒歩8分、2駅利用可能な利便性の良い立地です♪
・コンビニエンスストアやスーパーも徒歩圏。
・プレゼンテーションご予約承ります。
・住宅ローンのシュミレーション・ご相談も担当スタッフにお任せください。
資料請求・ご質問や、現地の見学等、
【ハウスプラザ錦糸町店 0120-987-419】まで
お気軽にお問合せ下さい。
物件詳細
| 所在地 | 東京都江東区大島7丁目4(以下未定) | ||
|---|---|---|---|
| 交通 | 都営新宿線大島駅 徒歩5分 都営新宿線東大島駅 徒歩8分 JR中央・総武線亀戸駅 徒歩20分 |
||
| 総戸数 | 2戸 | ||
| 販売戸数 | 1戸 | ||
| 価格 | 7280万円 (税込) | ||
| 土地面積 | 44.67m2(13.51坪) | ||
| 建物面積 | 84.75m2(25.63坪) うち1F車庫 面積:10.78m2 | ||
| 土地権利 | 所有権 | ||
| 間取り | 3LDK | ||
| 築年月 | 令和8年3月 | ||
| 構造 | 木造 地上3階建て | ||
| 都市計画 | 市街化 | ||
| 用途地域 | 準工業地域 | ||
| 建ぺい率/容積率 | 80% / 273% | ||
| 地目 | 宅地 | ||
| 接道 | 北側 4.00m 私道 東側 4.54m 公道 |
||
| 私道負担 | 無 |
||
| 現況 | 未完成 | ||
| 設備 | 都市ガス 公営水道 公共下水 | ||
| 入居年月 | 期日指定 2026年3月上旬 | ||
| 取引形態 | 媒介 | ||
| 備考 | 第R07SHC117341号 宅地造成工事規制区域、準防火地域、第3種高度地区、第2種特別工業地区、【隅切り部分】0.86平米含む | ||
| 更新日 | 2026年2月7日 | ||
| 次回更新予定日 | 2026年2月23日 | ||
| 取引有効期限 | 2026年02月23日 | ||
周辺環境
| 施設 | 江東区立第三大島小学校 778m 江東区立大島中学校 485m ローソン大島五丁目店 398m リコス大島5丁目店 323m KAMEIDO CLOCK 1400m 江東病院 549m 中の橋クリニック 134m ビーハッピークリニック 198m 第三大島幼稚園 549m 江東大島郵便局 139m 江東区大島出張所 1300m 東大島児童遊園 204m 旧三大小記念公園 268m かがやき保育園 317m |
||
|---|---|---|---|
| 周辺の物件検索 | |||
現地見学会情報
月々の支払い
0円
| 物件価格 | 万円 |
|---|---|
| 自己資金 (頭金) |
万円 |
| 金利 | % |
| 返済年数 |
40年(NEW) 35年(一般的) 30年 |
※返済金額はあくまでも目安の数値となります。詳しくは下記よりご相談ください。
資金計画相談お問い合わせ 錦糸町店
0120-987-419




































