足立区南花畑1丁目 新築一戸建て/全15棟
| 価格 | 6740万円~7540万円 (税込) |
| 所在地 | 東京都足立区南花畑1丁目 |
| 沿線・駅 | つくばエクスプレス六町駅 徒歩10分~11分 東京メトロ千代田線北綾瀬駅 徒歩29分~30分 つくばエクスプレス青井駅 徒歩29分~30分 |
| 建物面積 | 99.35m2(30.05坪)~100.49m2(30.39坪) |
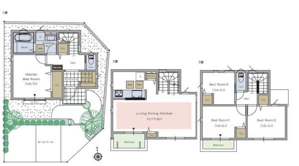
| 間取り | 4LDK |
各棟情報
おすすめポイント
今から見れます!【グーグル口コミ☆4.4】【諸条件相談可】
□■営業のオススメポイント□■
・南北東角地の三方角地の為、日当たり良好と開放感良好
・4LDKのゆとりのあるプランニング
・充実した収納が全部屋確保されております
・1階洋室には7.6帖もある主寝室、WICもついております(9号棟)
・玄関にはシューズインクローゼット付期の為、すっきりとした空間が確保されております
・お客様のライフプランに合った間取りがお選びすることができます
平日、夜間問わずお気軽にお問い合わせ下さい。
周辺環境やその他の物件情報も含めてご提案させて頂きますので是非一度ご相談下さいませ。
物件詳細
| 所在地 | 東京都足立区南花畑1丁目18-15 | ||
|---|---|---|---|
| 交通 | つくばエクスプレス六町駅 徒歩10分~11分 東京メトロ千代田線北綾瀬駅 徒歩29分~30分 つくばエクスプレス青井駅 徒歩29分~30分 |
||
| 総戸数 | 15戸 | ||
| 販売戸数 | 4戸 | ||
| 価格 | 6740万円~7540万円 (税込) | ||
| 土地面積 | 83.87m2(25.37坪)~87.07m2(26.33坪) | ||
| 建物面積 | 99.35m2(30.05坪)~100.49m2(30.39坪) | ||
| 土地権利 | 所有権 | ||
| 間取り | 4LDK | ||
| 築年月 | 令和8年1月 | ||
| 構造 | 木造 地上3階建て | ||
| 都市計画 | 市街化 | ||
| 用途地域 | 準工業地域 | ||
| 建ぺい率/容積率 | 60% / 200% | ||
| 地目 | 宅地 | ||
| 接道 | 5.00m 私道 5.00m 公道 |
||
| 私道負担 | 有(面積:495.58m²(149.91坪)×持分:1/15) |
||
| 現況 | 完成済 | ||
| 設備 | 都市ガス 公営水道 公共下水 | ||
| 入居年月 | 即時 | ||
| 取引形態 | 媒介 | ||
| 備考 | 第25UDI1K建00626号他 準防火地域、第3種高度地区、宅地造成工事等規制区域、足立東部地域南花畑一・三・四丁目地区計画、【ゴミ置き場】持分:2.09平米×1/8(1~8号棟)・1.92平米×1/7(9~15号棟) | ||
| 更新日 | 2026年2月1日 | ||
| 次回更新予定日 | 2026年2月23日 | ||
| 開発面積 | |||
| 取引有効期限 | 2026年02月23日 | ||
周辺環境
| 施設 | 足立区立花畑小学校 400m 足立区立花保中学校 1100m セブンイレブン 足立神明1丁目店 600m ベルクス足立南花畑店 700m 三井ショッピングパーク ららテラス北綾瀬 2300m 等潤病院 1900m 南花畑クリニック 550m 東保木間保育園 1100m ファミリーマート 南花畑店 650m ライフ六町駅前店 800m 六町保育園 550m 堺田公園 170m 内匠本町児童遊園 160m 社会福祉法人東児童福祉会六町あづま保育園 500m |
||
|---|---|---|---|
| 周辺の物件検索 | |||
現地見学会情報
お支払いローンシミュレーション
月々の支払い
0円
| 物件価格 | 万円 |
|---|---|
| 自己資金 (頭金) |
万円 |
| 金利 | % |
| 返済年数 |
40年(NEW) 35年(一般的) 30年 |
※返済金額はあくまでも目安の数値となります。詳しくは下記よりご相談ください。
資金計画相談お問い合わせ 本店(営業部)
0120-566-877









































































