板橋区上板橋2丁目 新築一戸建て/全4棟
| 価格 | 8999万円~9799万円 (税込) |
| 所在地 | 東京都板橋区上板橋2丁目 |
| 沿線・駅 | 東武東上線上板橋駅 徒歩7分 東京メトロ有楽町線氷川台駅 徒歩23分 東京メトロ副都心線平和台駅 徒歩25分 |
| 建物面積 | 100.60m2(30.43坪)~115.61m2(34.97坪) |
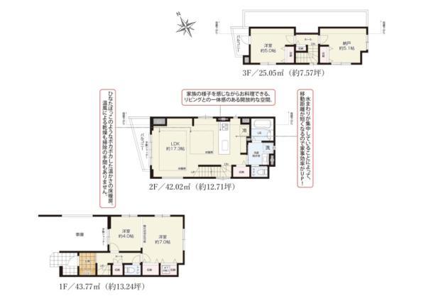
| 間取り | 2LDK+S~4LDK |
各棟情報
おすすめポイント
上板橋駅徒歩7分!【おかげさまでGoogle口コミ☆4.7】モデルハウス有!
☆☆おススメポイント☆☆
上板橋駅徒歩7分の立地に佇む邸宅です!!
即日・平日・夜間、いつでもご対応可能です。
モデルハウスや現地のご見学とあわせて周辺物件のご案内も一括して承っております。
コンビニ、ドラッグストアなど買い物施設まで徒歩圏内で行くことができる生活環境が良好な立地です。
また、保育園、幼稚園、小学校、中学校までも徒歩圏内で行くことができ子育て環境には最適な立地となります♪
公園もありお子様の遊び場やご家族での時間をゆったり過ごせる街並みです。
住宅ローンに自信があります。諸費用やおまとめローンなど何でもご相談ください。
物件詳細
| 所在地 | 東京都板橋区上板橋2丁目(地番) | ||
|---|---|---|---|
| 交通 | 東武東上線上板橋駅 徒歩7分 東京メトロ有楽町線氷川台駅 徒歩23分 東京メトロ副都心線平和台駅 徒歩25分 |
||
| 総戸数 | 4戸 | ||
| 販売戸数 | 4戸 | ||
| 価格 | 8999万円~9799万円 (税込) | ||
| 土地面積 | 62.45m2(18.89坪)~79.05m2(23.91坪) | ||
| 建物面積 | 100.60m2(30.43坪)~115.61m2(34.97坪) | ||
| 土地権利 | 所有権 | ||
| 間取り | 2LDK+S~4LDK | ||
| 築年月 | 令和8年4月 | ||
| 構造 | 木造 地上3階 | ||
| 都市計画 | 市街化 | ||
| 用途地域 | 第1種住居地域 第1種住居地域 |
||
| 建ぺい率/容積率 | 70%/200% 80%/200% |
||
| 地目 | 宅地 | ||
| 接道 | 北西側 6.00m 公道 南西側 6.00m 公道 |
||
| 私道負担 | 無 |
||
| 現況 | 未完成 | ||
| 設備 | 都市ガス 公営水道 公共下水 | ||
| 入居年月 | 期日指定 2026年4月下旬 | ||
| 取引形態 | 媒介 | ||
| 備考 | 第KBI-YKH25-10-2779号 他 準防火地域、第2種高度地区、【車庫面積】13.34平米(1号棟)・11.43平米(3号棟)・16.29平米(4号棟)含む、【路地状面積】24.13平米(2号棟)含む、【建ぺい率】80%(3号棟) | ||
| 更新日 | 2026年1月15日 | ||
| 次回更新予定日 | 2026年2月3日 | ||
| 開発面積 | |||
| 取引有効期限 | 2026年02月03日 | ||
周辺環境
| 施設 | 板橋区立上板橋第四小学校 818m 板橋区立桜川中学校 1016m セブンイレブン 上板橋駅前店 478m オーケー 上板橋店 203m イオン板橋ショッピングセンター 1457m 宮本外科内科 651m 山櫻診療所 599m 桜川ファミリークリニック 409m ファミリーマート 上板橋三丁目店 472m ファミリーマート 桜川三丁目店 565m コモディイイダ 上板橋店 455m 七軒家公園 270m 上板橋保育園 263m アスク上板橋保育園 443m |
||
|---|---|---|---|
| 周辺の物件検索 | |||
現地見学会情報
月々の支払い
0円
| 物件価格 | 万円 |
|---|---|
| 自己資金 (頭金) |
万円 |
| 金利 | % |
| 返済年数 |
40年(NEW) 35年(一般的) 30年 |
※返済金額はあくまでも目安の数値となります。詳しくは下記よりご相談ください。
資金計画相談お問い合わせ 赤羽店
0120-303-976















































