江戸川区大杉5丁目 新築一戸建て
月々の支払い
0円
| 物件価格 | 万円 |
|---|---|
| 自己資金 (頭金) |
万円 |
| 金利 | % |
| 返済年数 |
40年(NEW) 35年(一般的) 30年 |
※返済金額はあくまでも目安の数値となります。詳しくは下記よりご相談ください。
資金計画相談お問い合わせ ▶ 篠崎店
0120-664-511
| 価格 | 7199万円 (税込) |
| 所在地 | 東京都江戸川区大杉5丁目 |
| 沿線・駅 | 都営新宿線一之江駅バス7分 京成バス 「大杉第二小学校」バス停 停歩6分 JR総武本線新小岩駅バス15分 京成バス 「松本弁天」バス停 停歩4分 東京メトロ東西線葛西駅バス16分 京成バス 「大杉第二小学校」バス停 停歩6分 |
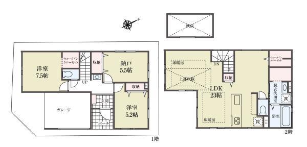
| 建物面積 | 111.18m2(33.63坪) うち1F車庫 面積:14.66m2 |
| 間取り | 2LDK+S |
間取り・区画図
おすすめポイント
即日ご案内致します!ハウスプラザ篠崎店
【おかげさまでグーグル口コミ☆4.9】
【デザイナーズハウス】【南西・南東角地】【リビングフロア23帖】
【住宅設備・収納充実】【日当たり通風良好】
【営業が感じたここがオススメポイント】
・まずは何といっても南西・南東角地の日当たり通風良好な新築2階建て
・いつでも現地やモデルハウスまでご案内いたします
・前面道路は車通りの少ない安心安全な住環境です
・玄関を開けると広々ホールが気持ちいい空間+ただいま洗面付き
・各お部屋の広さは十分確保しており、ウォークインクローゼットなど収納スペースは充実
・2階リビングフロアは23帖の広々とした空間+勾配天井採用で開放感アップ
・2階リビング水廻り集約のママ楽家事動線
・リビング部分に間仕切り壁を設けることで、4LDKプランに変更可能
・食洗器付きシステムキッチンや床暖房、浴室乾燥機など住宅設備は充実
・頭金0円からご購入が可能です
【生活環境良好な住環境】
江戸川区には住宅地域が広がり、区内には幼稚園や保育園、小中学校なども充実しており、子育て世代にも優しい環境です。
物件詳細
| 所在地 | 東京都江戸川区大杉5丁目432-2 | ||
|---|---|---|---|
| 交通 | 都営新宿線一之江駅バス7分 京成バス 「大杉第二小学校」バス停 停歩6分 JR総武本線新小岩駅バス15分 京成バス 「松本弁天」バス停 停歩4分 東京メトロ東西線葛西駅バス16分 京成バス 「大杉第二小学校」バス停 停歩6分 |
||
| 総戸数 | 1戸 | ||
| 販売戸数 | 1戸 | ||
| 価格 | 7199万円 (税込) | ||
| 土地面積 | 84.09m2(25.43坪) | ||
| 建物面積 | 111.18m2(33.63坪) うち1F車庫 面積:14.66m2 | ||
| 土地権利 | 所有権 | ||
| 間取り | 2LDK+S | ||
| 築年月 | 令和8年5月 | ||
| 構造 | 木造 地上2階建て | ||
| 都市計画 | 市街化 | ||
| 用途地域 | 第1種中高層住居専用地域 | ||
| 建ぺい率/容積率 | 70% / 150% | ||
| 地目 | 宅地 | ||
| 接道 | 南西側 4.00m 公道 南東側 4.00m 私道 |
||
| 私道負担 | 有(面積:17.76m²(5.37坪)) |
||
| 現況 | 未完成 | ||
| 設備 | 都市ガス 公営水道 公共下水 | ||
| 入居年月 | 期日指定 2026年5月中旬 | ||
| 取引形態 | 専任媒介 | ||
| 備考 | 第25UDI1W建09965号 景観法、航空法、宅地造成工事規制区域、準防火地域、隅切り有、敷地面積最低限度有(70平米)、日影制限有、16m第二種高度地区、53条区域 | ||
| 更新日 | 2026年1月16日 | ||
| 次回更新予定日 | 2026年2月19日 | ||
| 取引有効期限 | 2026年02月19日 | ||
周辺環境
| 施設 | 江戸川区立大杉第二小学校 544m 江戸川区立鹿本中学校 1027m ビッグ・エー 江戸川松本店 666m アタック 中央店 718m セブン-イレブン 江戸川大杉1丁目店 480m スギドラッグ 江戸川中央店 541m アゼリーアネックス保育園 548m 松本幼稚園 642m 大杉神明幼稚園 762m 大杉五丁目公園 80m 大杉五丁目児童遊園 351m 金田クリニック 648m YACC CLINIC 760m 松本おひさま保育園 460m |
||
|---|---|---|---|
| 周辺の物件検索 | |||
現地見学会情報
月々の支払い
0円
| 物件価格 | 万円 |
|---|---|
| 自己資金 (頭金) |
万円 |
| 金利 | % |
| 返済年数 |
40年(NEW) 35年(一般的) 30年 |
※返済金額はあくまでも目安の数値となります。詳しくは下記よりご相談ください。
資金計画相談お問い合わせ 篠崎店
0120-664-511












































