市川市中国分5丁目 新築一戸建て
月々の支払い
0円
| 物件価格 | 万円 |
|---|---|
| 自己資金 (頭金) |
万円 |
| 金利 | % |
| 返済年数 |
40年(NEW) 35年(一般的) 30年 |
※返済金額はあくまでも目安の数値となります。詳しくは下記よりご相談ください。
資金計画相談お問い合わせ ▶ 本八幡店
0120-303-965
| 価格 | 4590万円 (税込) |
| 所在地 | 千葉県市川市中国分5丁目 |
| 沿線・駅 | 北総鉄道矢切駅 徒歩13分 JR中央・総武線市川駅バス18分 「小学校」バス停 停歩10分 JR常磐線(上野~取手)松戸駅バス18分 「小学校」バス停 停歩10分 |
| 建物面積 | 78.86m2(23.85坪) うち1F車庫 面積:5.06m2 |
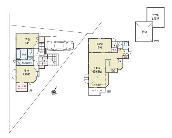
| 間取り | 3LDK |
間取り・区画図
おすすめポイント
【当日予約可能です 諸条件ご相談ください】矢切駅徒歩13分解放感のある角地物件のご紹介です!
~スタッフのおすすめポイント~
☆北総線「矢切」駅まで徒歩13分。
☆解放感あふれる角地。
☆ガーデニングなどにピッタリなお庭があります!
☆土地面積35坪越え!
☆各居室に収納はもちろん、パントリーやウォークインクローゼットも完備!
☆収納不足を解消する4.75帖ロフト付き!
☆建物について、住宅ローンについて、まずはご相談からでも当社へお問い合わせください
☆リビングに解放感を持たせる上部吹き抜け施工!
物件詳細
| 所在地 | 千葉県市川市中国分5丁目9 | ||
|---|---|---|---|
| 交通 | 北総鉄道矢切駅 徒歩13分 JR中央・総武線市川駅バス18分 「小学校」バス停 停歩10分 JR常磐線(上野~取手)松戸駅バス18分 「小学校」バス停 停歩10分 |
||
| 総戸数 | 1戸 | ||
| 販売戸数 | 1戸 | ||
| 価格 | 4590万円 (税込) | ||
| 土地面積 | 118.42m2(35.82坪) | ||
| 建物面積 | 78.86m2(23.85坪) うち1F車庫 面積:5.06m2 | ||
| 土地権利 | 所有権 | ||
| 間取り | 3LDK | ||
| 築年月 | 令和8年2月 | ||
| 構造 | 木造 地上2階建て | ||
| 都市計画 | 市街化 | ||
| 用途地域 | 第1種低層住居専用地域 | ||
| 建ぺい率/容積率 | 40% / 80% | ||
| 地目 | 宅地 | ||
| 接道 | 南東側 4.60m 公道 南西側 4.00m 公道 |
||
| 私道負担 | 無 |
||
| 現況 | 未完成 | ||
| 設備 | 都市ガス 公営水道 個別浄化槽 | ||
| 入居年月 | 期日指定 2026年3月下旬 | ||
| 取引形態 | 媒介 | ||
| 備考 | 第HPA-25-13603-1号 法22条区域、高さ制限10m、国府台風致地区、宅地造成工事規制区域 | ||
| 更新日 | 2026年1月29日 | ||
| 次回更新予定日 | 2026年2月22日 | ||
| 取引有効期限 | 2026年02月22日 | ||
周辺環境
| 施設 | 市川市立国府台小学校 684m 市川市立第一中学校 1980m セブンイレブン 市川中国分3丁目店 712m マルエツ 矢切駅前店 1079m アクティオーレ市川 3692m 国際医療福祉大学市川病院 738m 業務スーパー 北国分店 1446m ベルクス市川堀之内店 1208m ヤオコー 市川中国分店 1090m ミニストップ 下矢切栄町店 942m 国府台文化幼稚園 458m 小塚山公園 365m じゅん菜池緑地 821m AIAI NURSERY中国分 455m |
||
|---|---|---|---|
| 周辺の物件検索 | |||
現地見学会情報
月々の支払い
0円
| 物件価格 | 万円 |
|---|---|
| 自己資金 (頭金) |
万円 |
| 金利 | % |
| 返済年数 |
40年(NEW) 35年(一般的) 30年 |
※返済金額はあくまでも目安の数値となります。詳しくは下記よりご相談ください。
資金計画相談お問い合わせ 本八幡店
0120-303-965










































