北区東十条5丁目 中古一戸建て
月々の支払い
0円
| 物件価格 | 万円 |
|---|---|
| 自己資金 (頭金) |
万円 |
| 金利 | % |
| 返済年数 |
40年(NEW) 35年(一般的) 30年 |
※返済金額はあくまでも目安の数値となります。詳しくは下記よりご相談ください。
資金計画相談お問い合わせ ▶ 本八幡店
0120-303-965
| 価格 | 5930万円 (税込) |
| 所在地 | 東京都北区東十条5丁目 |
| 沿線・駅 | JR京浜東北線東十条駅 徒歩6分 東京メトロ南北線王子神谷駅 徒歩15分 JR埼京線赤羽駅 徒歩16分 |
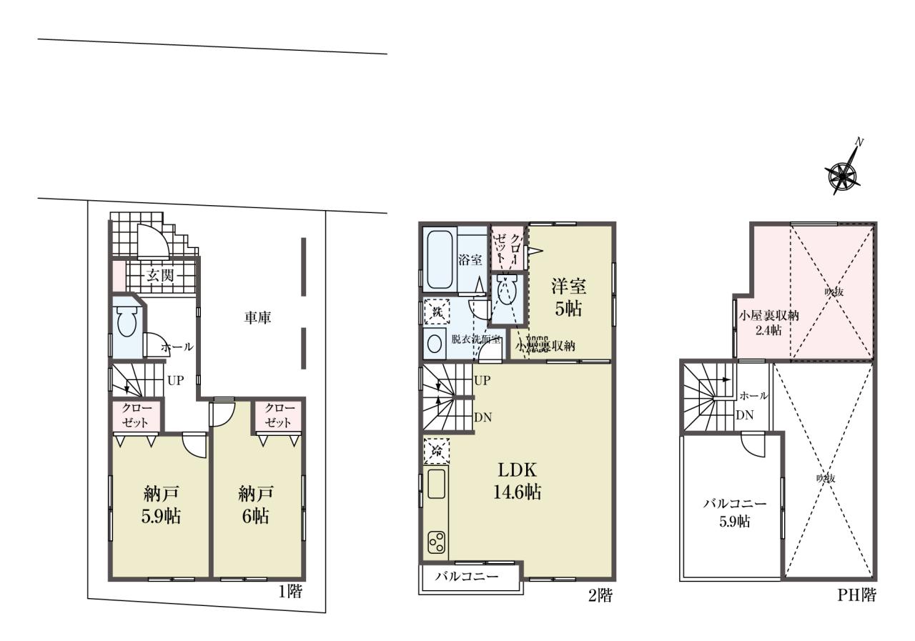
| 建物面積 | 91.96m2(27.81坪) うち1F車庫 面積:12.09m2 |
| 間取り | 1LDK+2S |
間取り・区画図
おすすめポイント
【陽光あふれる勾配天井とルーフバルコニーの家】ご予約可能です!!
【スタッフのおすすめポイント】
☆JR京浜東北線「東十条」駅まで徒歩6分
☆東京メトロ南北線「王子神谷」駅まで徒歩15分
☆JR埼京線「十条」駅まで徒歩16分
☆室内きれいにお使いです
☆勾配天井がLDKを演出
☆買い物施設が充実した住環境
☆総合病院や公園も近く、住みやすい街です
☆周辺物件もご案内します
☆おまとめローンもご提案可能
物件詳細
| 所在地 | 東京都北区東十条5丁目(地番) | ||
|---|---|---|---|
| 交通 | JR京浜東北線東十条駅 徒歩6分 東京メトロ南北線王子神谷駅 徒歩15分 JR埼京線赤羽駅 徒歩16分 |
||
| 総戸数 | 1戸 | ||
| 販売戸数 | 1戸 | ||
| 価格 | 5930万円 (税込) | ||
| 土地面積 | 62.51m2(18.9坪) | ||
| 建物面積 | 91.96m2(27.81坪) うち1F車庫 面積:12.09m2 | ||
| 土地権利 | 所有権 | ||
| 間取り | 1LDK+2S | ||
| 築年月 | 平成18年3月 | ||
| 構造 | 木造 地上2階建て | ||
| 都市計画 | 市街化 | ||
| 用途地域 | 近隣商業地域 | ||
| 建ぺい率/容積率 | 80% / 240% | ||
| 地目 | 宅地 | ||
| 接道 | 北西側 4.00m 私道 | ||
| 私道負担 | 有(面積:3.61m²(1.09坪)) |
||
| 現況 | 完成済 | ||
| 設備 | 都市ガス 公営水道 公共下水 | ||
| 入居年月 | 相談 | ||
| 取引形態 | 媒介 | ||
| 備考 | 第BVJ-T05-10-3117号 防火地域、第3種高度地区、高さ制限7m以上、北区環状七号線沿道地区計画内、【建物面積】車庫部分12.09平米、ルーフバルコニー部分4.14平米含 | ||
| 更新日 | 2025年12月26日 | ||
| 次回更新予定日 | 2026年1月11日 | ||
| 取引有効期限 | 2026年01月11日 | ||
周辺環境
| 施設 | 北区立都の北学園小学校 853m 北区立都の北学園中学校 852m ファミリーマート 東十条店 120m スーパーみらべる 東十条店 217m 十条銀座商店街 1002m 明理会中央総合病院 348m コモディイイダ 東十条店 602m まいばすけっと 神谷2丁目店 533m ココットマーケット 388m セブンイレブン 北区東十条4丁目店 152m 北区立東十条保育園 393m 上十条五丁目東緑地遊び場 927m 神谷堀公園 1238m うぃず東十条保育園 121m |
||
|---|---|---|---|
| 周辺の物件検索 | |||
現地見学会情報
月々の支払い
0円
| 物件価格 | 万円 |
|---|---|
| 自己資金 (頭金) |
万円 |
| 金利 | % |
| 返済年数 |
40年(NEW) 35年(一般的) 30年 |
※返済金額はあくまでも目安の数値となります。詳しくは下記よりご相談ください。
資金計画相談お問い合わせ 本八幡店
0120-303-965



































