荒川区西尾久2丁目 新築一戸建て/全2棟 1号棟
月々の支払い
0円
| 物件価格 | 万円 |
|---|---|
| 自己資金 (頭金) |
万円 |
| 金利 | % |
| 返済年数 |
40年(NEW) 35年(一般的) 30年 |
※返済金額はあくまでも目安の数値となります。詳しくは下記よりご相談ください。
資金計画相談お問い合わせ ▶ 日暮里店
0120-417-081
| 価格 | 7680万円 (税込) |
| 所在地 | 東京都荒川区西尾久2丁目 |
| 沿線・駅 | 都電荒川線宮ノ前駅 徒歩3分 JR高崎線尾久駅 徒歩13分 日暮里・舎人ライナー熊野前駅 徒歩7分 |
| 建物面積 | 117.32m2(35.48坪) うち1F車庫 面積:11.28m2 |
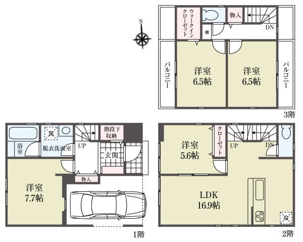
| 間取り | 4LDK |
間取り・区画図
おすすめポイント
【即日ご案内可能】ショールームにて実際の設備仕様をご見学できます。
◆オススメポイント◆
・前面道路約4mにつきカースペースは駐車しやすくなっております。
・ゆったりとした間取りになっております。
・ウォークインクローゼット付きの収納たっぷり間取り
・住宅ローン控除が利用できる省エネ適合住宅
・徒歩15分圏に学校・スーパー・病院が揃い、子育て環境も良好
・他の借り入れも住宅ローンに一本化するおまとめローンにも対応しておりますので支払い不安を軽減できます。
お問い合わせはハウスプラザ日暮里店までお気軽にどうぞ!
【フリーダイヤル 0120-417-081 携帯電話からもOK】
物件詳細
| 所在地 | 東京都荒川区西尾久2丁目22 | ||
|---|---|---|---|
| 交通 | 都電荒川線宮ノ前駅 徒歩3分 JR高崎線尾久駅 徒歩13分 日暮里・舎人ライナー熊野前駅 徒歩7分 |
||
| 総戸数 | 2戸 | ||
| 販売戸数 | 1戸 | ||
| 価格 | 7680万円 (税込) | ||
| 土地面積 | 63.86m2(19.31坪) | ||
| 建物面積 | 117.32m2(35.48坪) うち1F車庫 面積:11.28m2 | ||
| 土地権利 | 所有権 | ||
| 間取り | 4LDK | ||
| 築年月 | 令和8年2月 | ||
| 構造 | 木造 地上3階建て | ||
| 都市計画 | 市街化 | ||
| 用途地域 | 商業地域 | ||
| 建ぺい率/容積率 | 100% / 240% | ||
| 地目 | 宅地 | ||
| 接道 | 東側 4.00m 公道 西側 4.00m 私道 |
||
| 私道負担 | 有(面積:172.02m²(52.03坪)×持分:1/12) |
||
| 現況 | 未完成 | ||
| 設備 | 都市ガス 公営水道 公共下水 | ||
| 入居年月 | 期日指定 2026年2月下旬 | ||
| 取引形態 | 媒介 | ||
| 備考 | 第25UDI1S建00976号他 新防火地域、第3種高度地区、尾久中央地区地区計画、【セットバック部分】持分あり:3.91平米・4.09平米 | ||
| 更新日 | 2026年1月15日 | ||
| 次回更新予定日 | 2026年2月7日 | ||
| 取引有効期限 | 2026年02月07日 | ||
周辺環境
| 施設 | 荒川区立尾久宮前小学校 365m 荒川区立尾久八幡中学校 773m ミニストップ 西尾久2丁目店 271m スーパーみらべる 小台店 330m atrevie TABATA(アトレヴィ田端) 1447m 令和あらかわ病院 240m 宮の前診療所 245m あらかわ遊園 1100m スーパーバリュー西尾久店 700m 小台橋保育園 850m 荒川区町屋区民事務所 1910m 荒川八幡児童遊園 87m 荒川区立宮前公園 308m 至誠会第二保育園 407m |
||
|---|---|---|---|
| 周辺の物件検索 | |||
現地見学会情報
月々の支払い
0円
| 物件価格 | 万円 |
|---|---|
| 自己資金 (頭金) |
万円 |
| 金利 | % |
| 返済年数 |
40年(NEW) 35年(一般的) 30年 |
※返済金額はあくまでも目安の数値となります。詳しくは下記よりご相談ください。
資金計画相談お問い合わせ 日暮里店
0120-417-081






































