板橋区中台1丁目 新築一戸建て/全3棟 D号棟
月々の支払い
0円
| 物件価格 | 万円 |
|---|---|
| 自己資金 (頭金) |
万円 |
| 金利 | % |
| 返済年数 |
40年(NEW) 35年(一般的) 30年 |
※返済金額はあくまでも目安の数値となります。詳しくは下記よりご相談ください。
資金計画相談お問い合わせ ▶ 赤羽店
0120-303-976
| 価格 | 7850万円 (税込) |
| 所在地 | 東京都板橋区中台1丁目 |
| 沿線・駅 | 東武東上線上板橋駅 徒歩7分 東武東上線東武練馬駅 徒歩18分 都営三田線志村三丁目駅 徒歩20分 |
| 建物面積 | 109.50m2(33.12坪) |
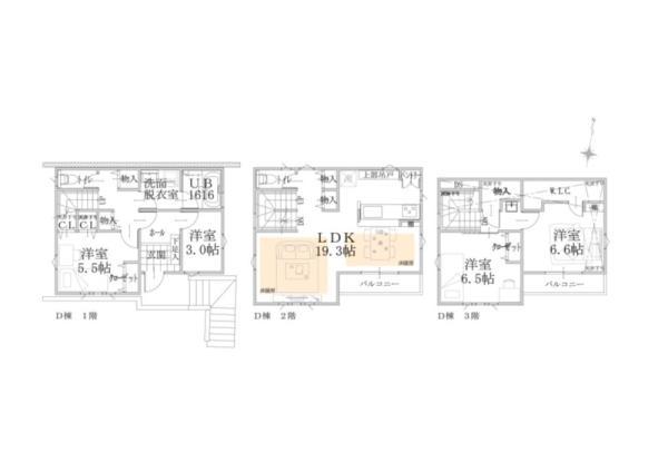
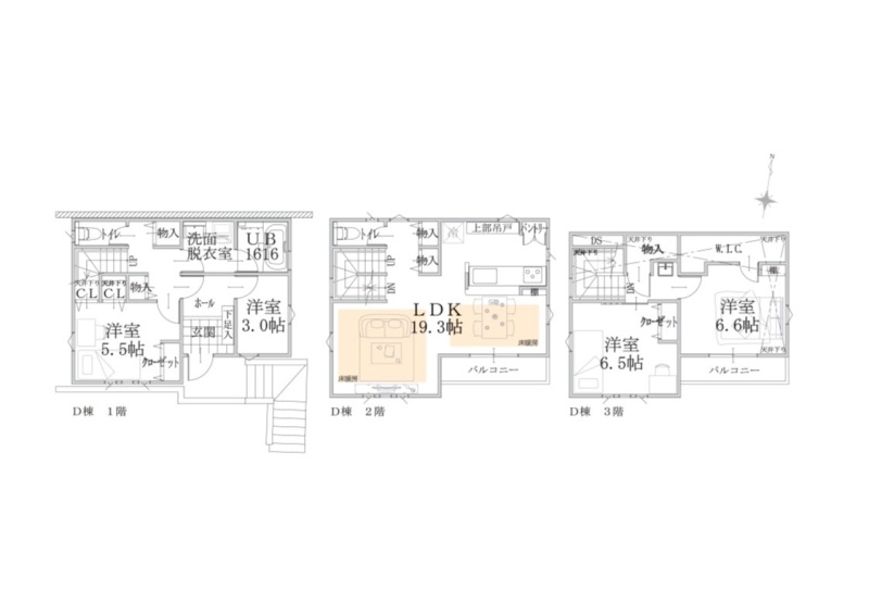
| 間取り | 4LDK |
間取り・区画図
おすすめポイント
【即日ご案内可能】おかげさまでGoogle口コミ・ハウスプラザ合計☆4.7
◇◆◇おすすめポイント◇◆◇
□東武東上線「上板橋」駅まで徒歩7分の好立地
□上板橋駅の再開発があり、周辺環境もより良くなります。
□リビングダイニングには床暖房も完備しております。
□スーパー、コンビニ、小学校は徒歩圏内にあり、住環境整った物件になります。
プレゼンテーションも承りますのでお気軽にお問い合わせくださいませ。
物件詳細
| 所在地 | 東京都板橋区中台1丁目44-5 | ||
|---|---|---|---|
| 交通 | 東武東上線上板橋駅 徒歩7分 東武東上線東武練馬駅 徒歩18分 都営三田線志村三丁目駅 徒歩20分 |
||
| 総戸数 | 3戸 | ||
| 販売戸数 | 1戸 | ||
| 価格 | 7850万円 (税込) | ||
| 土地面積 | 78.45m2(23.73坪) | ||
| 建物面積 | 109.50m2(33.12坪) | ||
| 土地権利 | 所有権 | ||
| 間取り | 4LDK | ||
| 築年月 | 令和8年5月 | ||
| 構造 | 木造 地上3階建て | ||
| 都市計画 | 市街化 | ||
| 用途地域 | 第1種中高層住居専用地域 | ||
| 建ぺい率/容積率 | 60% / 184% | ||
| 地目 | 宅地 | ||
| 接道 | 南側 4.60m 私道 | ||
| 私道負担 | 有(面積:85.00m²(25.71坪)×持分:1/6) |
||
| 現況 | 未完成 | ||
| 設備 | 都市ガス 公営水道 公共下水 | ||
| 入居年月 | 期日指定 2026年5月下旬 | ||
| 取引形態 | 媒介 | ||
| 備考 | 第25UDI1W建00121号 準防火地域、第2種高度地区、【私道負担】他有:35.64平米×1/12ずつ・9.97平米×1/12ずつ | ||
| 更新日 | 2026年2月11日 | ||
| 次回更新予定日 | 2026年3月9日 | ||
| 取引有効期限 | 2026年03月09日 | ||
周辺環境
| 施設 | 板橋区立若木小学校 338m 板橋区立中台中学校 515m セブンイレブン 板橋若木1丁目店 118m ベルクス板橋中台店 173m イオン板橋ショッピングセンター 1703m 平山貴度医院 156m 大森メディカルクリニック 472m 桜川ファミリークリニック 1107m ローソン 常盤台四丁目店 337m ファミリーマート 上板橋駅北口店 528m ビッグ・エー上板橋店 989m にりんそう公園 210m グローバルキッズ上板橋園 457m 若木保育園 611m |
||
|---|---|---|---|
| 周辺の物件検索 | |||
現地見学会情報
月々の支払い
0円
| 物件価格 | 万円 |
|---|---|
| 自己資金 (頭金) |
万円 |
| 金利 | % |
| 返済年数 |
40年(NEW) 35年(一般的) 30年 |
※返済金額はあくまでも目安の数値となります。詳しくは下記よりご相談ください。
資金計画相談お問い合わせ 赤羽店
0120-303-976




























