足立区綾瀬2丁目 売地/建築条件付き/全9区画 B区画
| 価格 | 5486万円 |
| 所在地 | 東京都足立区綾瀬2丁目 |
| 沿線・駅 | 東京メトロ千代田線綾瀬駅 徒歩9分 京成本線堀切菖蒲園駅 徒歩18分 東武伊勢崎線小菅駅 徒歩24分 |
| 土地面積 | 70.00m2(21.17坪) |
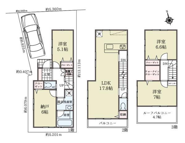
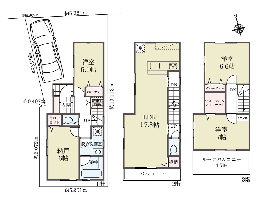
間取り・区画図
おすすめポイント
今からモデルハウス見れます!【グーグル口コミ☆4.4】【諸条件相談可】
□■営業のおすすめポイント■□
・東京メトロ綾瀬駅徒歩9分の始発駅利用可能な立地
・綾瀬小学校まで約徒歩6分の立地に為、安心して通わせることができます
・ルーフバルコニー付きの為、お子様のプールもできます
・標準仕様で床暖房、カーテンレール、網戸、浴室乾燥機、食洗器もついております
・プランによっては二階水廻り一体型の為、家事動線集約されております
・カラーセレクトも可能となっております(お問い合わせ時期に確認が必要となります)
プレゼンテーション予約受付中となっておりますのでお問い合わせの際にご希望日時をお伝えいただければと思います。
物件詳細
| 所在地 | 東京都足立区綾瀬2丁目39 | ||
|---|---|---|---|
| 交通 | 東京メトロ千代田線綾瀬駅 徒歩9分 京成本線堀切菖蒲園駅 徒歩18分 東武伊勢崎線小菅駅 徒歩24分 |
||
| 総区画数 | 9区画 | ||
| 販売区画数 | 1区画 | ||
| 価格 | 5486万円 | ||
| 土地面積 | 70.00m2(21.17坪) セットバック不要 | ||
| 土地権利 | 所有権 | ||
| 都市計画 | 市街化 | ||
| 用途地域 | 第1種中高層住居専用地域 | ||
| 建ぺい率/容積率 | 70% / 240% | ||
| 地目 | 宅地 | ||
| 接道 | 北側 4.00m 公道 | ||
| 私道負担 | 無 |
||
| 現況 | 更地 | ||
| 設備 | 都市ガス 公営水道 公共下水 | ||
| 引渡日 | 相談 | ||
| 取引形態 | 媒介 | ||
| 備考 | 準防火地域、第3種高度地区、※建築条件付売地とは、土地売買契約後、3ヶ月以内に売主と建物の請負契約を結ぶ事を条件に契約します。、この期間中に建物請負契約を締結されなかった場合は、土地売買契約は白紙になり、受領した手付金等の土地代金は全額返金します。 | ||
| 更新日 | 2026年1月20日 | ||
| 次回更新予定日 | 2026年2月6日 | ||
| 取引有効期限 | 2026年02月06日 | ||
周辺環境
| 施設 | 足立区立綾瀬小学校 500m 足立区立東綾瀬中学校 800m タウンショップシライ 260m まいばすけっと 綾瀬南店 210m ビーンズ亀有 2000m 堀切中央病院 650m 綾瀬東口医院 350m ビッグ・エー綾瀬店 500m セブンイレブン 足立綾瀬2丁目東店 400m 綾南公園 400m たけのこ保育園 450m 普賢寺公園 58m 綾瀬二丁目ふれあい公園 190m ぽけっとランド綾瀬 400m |
||
|---|---|---|---|
| 周辺の物件検索 | |||
現地見学会情報
お問い合わせ 本店(営業部)
0120-566-877










































