江戸川区大杉2丁目 新築一戸建て/全3棟 3号棟
月々の支払い
0円
| 物件価格 | 万円 |
|---|---|
| 自己資金 (頭金) |
万円 |
| 金利 | % |
| 返済年数 |
40年(NEW) 35年(一般的) 30年 |
※返済金額はあくまでも目安の数値となります。詳しくは下記よりご相談ください。
資金計画相談お問い合わせ ▶ 西葛西店
0120-978-305
| 価格 | 5480万円 (税込) |
| 所在地 | 東京都江戸川区大杉2丁目 |
| 沿線・駅 | 都営新宿線一之江駅バス7分 「大杉第二小学校」バス停 停歩7分 JR中央・総武線小岩駅バス7分 「大杉第二小学校」バス停 停歩13分 東西線葛西駅バス7分 「大杉第二小学校」バス停 停歩16分 |
| 建物面積 | 96.39m2(29.15坪) |
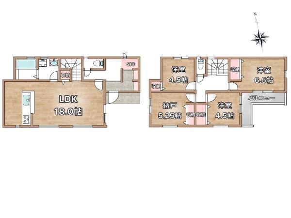
| 間取り | 3LDK+S |
間取り・区画図
おすすめポイント
1階水廻り集約の生活のしやすい2階建て邸宅♪
全棟敷地面積30坪越え!
◆お出かけ前も帰宅後も使用しやすい玄関近くにトイレを設置!
◆来客時も生活空間が見えにくいプライバシー性を高めた玄関ホール設計。
◆対面キッチンからはリビング全体が見渡せ、家族と会話をしながら調理ができます。
◆キッチンは床下収納付き。ストック整理がしやすく、使い勝手の良いキッチンスペースです。
◆LDKとホールを仕切るドアにより冷暖房効率が向上し、省エネ性の高い居住環境を実現!
◆家具を設置しやすい長方形リビング!リビングには収納も設置!
◆リビングを通って2階へ行くため家族とのコミュニケーションが取れやすい間取りです。
◆2階全居室収納付き!1階は家族団らん、2階はプライベート空間とオンオフができる邸宅です。
物件詳細
| 所在地 | 東京都江戸川区大杉2丁目19 | ||
|---|---|---|---|
| 交通 | 都営新宿線一之江駅バス7分 「大杉第二小学校」バス停 停歩7分 JR中央・総武線小岩駅バス7分 「大杉第二小学校」バス停 停歩13分 東西線葛西駅バス7分 「大杉第二小学校」バス停 停歩16分 |
||
| 総戸数 | 3戸 | ||
| 販売戸数 | 1戸 | ||
| 価格 | 5480万円 (税込) | ||
| 土地面積 | 137.50m2(41.59坪) | ||
| 建物面積 | 96.39m2(29.15坪) | ||
| 土地権利 | 所有権 | ||
| 間取り | 3LDK+S | ||
| 築年月 | 令和8年6月 | ||
| 構造 | 木造 地上2階建て | ||
| 都市計画 | 市街化 | ||
| 用途地域 | 第1種中高層住居専用地域 | ||
| 建ぺい率/容積率 | 60% / 150% | ||
| 地目 | 宅地 | ||
| 接道 | 東側 4.00m 公道 | ||
| 私道負担 | 無 |
||
| 現況 | 未完成 | ||
| 設備 | 都市ガス 公営水道 公共下水 | ||
| 入居年月 | 期日指定 2026年7月上旬 | ||
| 取引形態 | 媒介 | ||
| 備考 | 第25UDI1W建05611号 景観法、航空法、準防火地域、日影制限有、最低敷地面積(70平米)、第2種高度地区、都市計画法第53条区域、下水道処理区域 | ||
| 更新日 | 2026年2月14日 | ||
| 次回更新予定日 | 2026年4月8日 | ||
| 取引有効期限 | 2026年04月08日 | ||
周辺環境
| 施設 | 江戸川区立大杉第二小学校 447m 江戸川区立松江第四中学校 782m セブンイレブン 江戸川大杉2丁目店 189m まいばすけっと 江戸川中央2丁目店 649m ファミリーマート 江戸川大杉五丁目店 536m 京葉病院 512m 広見医院 551m はるえ子どもクリニック 1398m アタック中央店 952m みやむら動物病院 282m 鹿骨区民館 1388m 西一之江さくら公園 550m 大杉一丁目公園 265m アゼリーアネックス保育園 307m |
||
|---|---|---|---|
| 周辺の物件検索 | |||
現地見学会情報
月々の支払い
0円
| 物件価格 | 万円 |
|---|---|
| 自己資金 (頭金) |
万円 |
| 金利 | % |
| 返済年数 |
40年(NEW) 35年(一般的) 30年 |
※返済金額はあくまでも目安の数値となります。詳しくは下記よりご相談ください。
資金計画相談お問い合わせ 西葛西店
0120-978-305



























