松戸市栗山 新築一戸建て 2号棟
月々の支払い
0円
| 物件価格 | 万円 |
|---|---|
| 自己資金 (頭金) |
万円 |
| 金利 | % |
| 返済年数 |
40年(NEW) 35年(一般的) 30年 |
※返済金額はあくまでも目安の数値となります。詳しくは下記よりご相談ください。
資金計画相談お問い合わせ ▶ 本八幡店
0120-303-965
| 価格 | 4390万円 (税込) |
| 所在地 | 千葉県松戸市栗山 |
| 沿線・駅 | 北総鉄道矢切駅 徒歩8分 |
| 建物面積 | 102.46m2(30.99坪) |
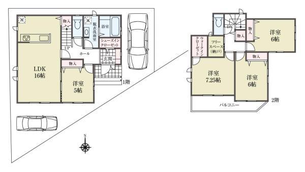
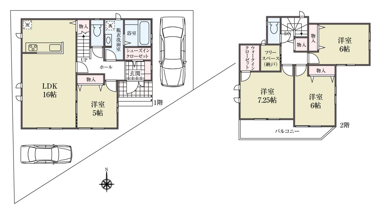
| 間取り | 4LDK+S |
間取り・区画図
おすすめポイント
【当日の見学可能です】
駅徒歩8分
~スタッフのおすすめポイント~
☆北総線「矢切」駅徒歩8分の好立地
☆日当たり、風通し良好の角地!
☆土地面積30坪以上!
☆2台駐車可能!
☆大型4LDK
☆各居室に収納スペースが完備されているのでお部屋をスッキリ使えます!
☆リビングと水回りが一体なので家事ラクプラン
☆キッチンは食洗器付きの為洗い物の時間短縮になります!
☆地震に強いお家です
☆省エネ性能ラベル取得予定
☆ローンのご相談もお任せください♪
物件詳細
| 所在地 | 千葉県松戸市栗山519 | ||
|---|---|---|---|
| 交通 | 北総鉄道矢切駅 徒歩8分 | ||
| 総戸数 | 1戸 | ||
| 販売戸数 | 1戸 | ||
| 価格 | 4390万円 (税込) | ||
| 土地面積 | 112.65m2(34.07坪) | ||
| 建物面積 | 102.46m2(30.99坪) | ||
| 土地権利 | 所有権 | ||
| 間取り | 4LDK+S | ||
| 築年月 | 令和7年11月 | ||
| 構造 | 木造 地上2階建て | ||
| 都市計画 | 市街化 | ||
| 用途地域 | 第1種低層住居専用地域 | ||
| 建ぺい率/容積率 | 60% / 100% | ||
| 地目 | 宅地 | ||
| 接道 | 西側 13.90m 公道 南東側 5.50m 公道 |
||
| 私道負担 | 無 |
||
| 現況 | 完成済 | ||
| 設備 | 都市ガス 公営水道 公共下水 | ||
| 入居年月 | 即時 | ||
| 取引形態 | 媒介 | ||
| 備考 | 第HPA-25-06447-1号 法22条区域、【建蔽率】角地緩和のため50%から60% | ||
| 更新日 | 2025年11月28日 | ||
| 次回更新予定日 | 2025年12月19日 | ||
| 取引有効期限 | 2025年12月19日 | ||
周辺環境
| 施設 | 松戸市立矢切小学校 1015m 松戸市立第二中学校 2096m セブンイレブン 松戸栗山店 933m マルエツ 矢切駅前店 1068m ヴィナシス金町プライドコート 3224m 矢切クリニック 798m 三矢小台内科クリニック 1020m ファミリーマート 市川国府台店 1218m ココカラファイン薬局国府台店 1302m ミニストップ 下矢切栄町店 1124m 矢切幼稚園 1107m 下矢切緑地 781m 里見公園 1304m ひなた保育園下矢切ルーム 1047m |
||
|---|---|---|---|
| 周辺の物件検索 | |||
現地見学会情報
月々の支払い
0円
| 物件価格 | 万円 |
|---|---|
| 自己資金 (頭金) |
万円 |
| 金利 | % |
| 返済年数 |
40年(NEW) 35年(一般的) 30年 |
※返済金額はあくまでも目安の数値となります。詳しくは下記よりご相談ください。
資金計画相談お問い合わせ 本八幡店
0120-303-965
















































