江戸川区北小岩3丁目 新築一戸建て/全5棟
| 価格 | 7390万円~7790万円 (税込) |
| 所在地 | 東京都江戸川区北小岩3丁目 |
| 沿線・駅 | 京成本線江戸川駅 徒歩8分 JR中央・総武線小岩駅 徒歩13分 都営新宿線篠崎駅バス16分 京成バス 「小岩警察・区民館」バス停 停歩9分 |
| 建物面積 | 101.27m2(30.63坪)~107.85m2(32.62坪) |
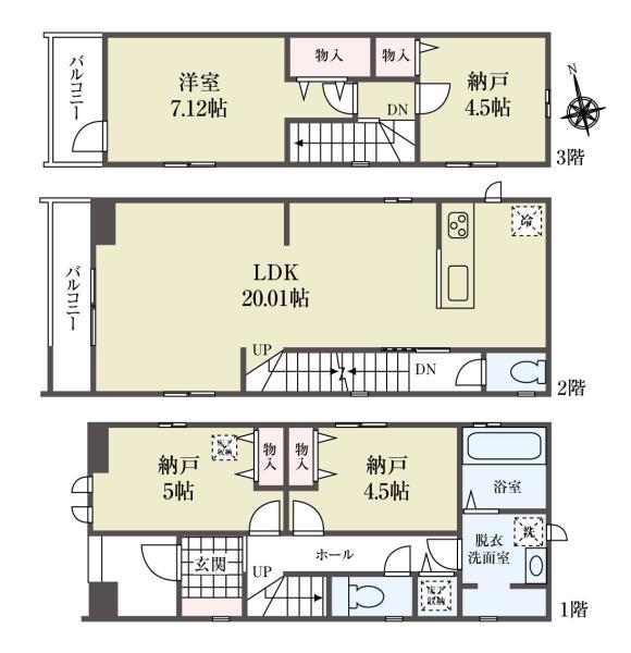
| 間取り | 2LDK+2S~4LDK |
各棟情報
おすすめポイント
即日ご案内致します!ハウスプラザ篠崎店
【江戸川駅徒歩8分駅チカ好立地】
【南西角地】【両面6メートル公道】【駐車2台可能】【2駅2線利用可能】
【全棟リビング16帖以上】【住宅設備・収納充実】
【営業が感じたここがオススメポイント】
・まずは何といっても京成本線「江戸川」駅徒歩8分の日当たり通風良好な駅チカ好立地
・JR総武線「小岩」駅徒歩13分の2駅2線利用可能な利便性快適なエリア
・完成しました!いつでもご見学できます
・南公道6メートル、西公道6メートルに面した車通りの少ない安心安全な住環境です
・お車大好きな方ご注目!並列駐車2台可能
・玄関を開けると広々ホールが気持ちいい空間
・各お部屋の広さは十分確保しており、ウォークインクローゼットなど収納スペースは充実
・全棟2階リビングフロアは16帖以上の家具の配置がしやすい広々空間
・住宅性能評価取得物件(設計性能評価・建設性能評価)W取得
【生活環境良好な住環境】
江戸川区南小岩に位置する小岩駅。駅前には大きな商店街がいくつもあり、商業施設や大型スーパーなど買い物環境が充実
物件詳細
| 所在地 | 東京都江戸川区北小岩3丁目517 | ||
|---|---|---|---|
| 交通 | 京成本線江戸川駅 徒歩8分 JR中央・総武線小岩駅 徒歩13分 都営新宿線篠崎駅バス16分 京成バス 「小岩警察・区民館」バス停 停歩9分 |
||
| 総戸数 | 5戸 | ||
| 販売戸数 | 4戸 | ||
| 価格 | 7390万円~7790万円 (税込) | ||
| 土地面積 | 70.09m2(21.2坪)~85.18m2(25.76坪) | ||
| 建物面積 | 101.27m2(30.63坪)~107.85m2(32.62坪) | ||
| 土地権利 | 所有権 | ||
| 間取り | 2LDK+2S~4LDK | ||
| 築年月 | 令和7年12月 | ||
| 構造 | 木造 地上3階 | ||
| 都市計画 | 市街化 | ||
| 用途地域 | 第1種住居地域 | ||
| 建ぺい率/容積率 | 70%/200% | ||
| 地目 | 宅地 | ||
| 接道 | 西側 6.00m 公道 南側 6.00m 公道 |
||
| 私道負担 | 無 |
||
| 現況 | 完成済 | ||
| 設備 | 都市ガス 公営水道 公共下水 | ||
| 入居年月 | 即時 | ||
| 取引形態 | 媒介 | ||
| 備考 | 第HPA-25-08432-1号 他 景観法、航空法、宅地造成工事規制区域、準防火地域、敷地面積最低限度有(70平米)、日影制限有、第二種高度地区、【車庫面積】D、E号棟:6.37平米含む | ||
| 更新日 | 2026年1月10日 | ||
| 次回更新予定日 | 2026年1月25日 | ||
| 開発面積 | |||
| 取引有効期限 | 2026年01月25日 | ||
周辺環境
| 施設 | 江戸川区立中小岩小学校 279m 江戸川区立小岩第三中学校 1175m まいばすけっと 北小岩1丁目店 355m リブレ京成 江戸川駅前店 568m セブン-イレブン 中小岩店 431m ユニバーサルドラッグ 江戸川駅前店 610m 北小岩おひさま保育園 427m 江戸川双葉幼稚園 510m キッズガーデン北小岩 897m 上小岩親水緑道 490m 小岩の森公園 539m 小岩医院 494m 佐藤医院 648m 太陽の子 北小岩第二保育園 256m |
||
|---|---|---|---|
| 周辺の物件検索 | |||
現地見学会情報
月々の支払い
0円
| 物件価格 | 万円 |
|---|---|
| 自己資金 (頭金) |
万円 |
| 金利 | % |
| 返済年数 |
40年(NEW) 35年(一般的) 30年 |
※返済金額はあくまでも目安の数値となります。詳しくは下記よりご相談ください。
資金計画相談お問い合わせ 篠崎店
0120-664-511






























































