足立区江北3丁目 新築一戸建て
月々の支払い
0円
| 物件価格 | 万円 |
|---|---|
| 自己資金 (頭金) |
万円 |
| 金利 | % |
| 返済年数 |
40年(NEW) 35年(一般的) 30年 |
※返済金額はあくまでも目安の数値となります。詳しくは下記よりご相談ください。
資金計画相談お問い合わせ ▶ 竹の塚店
0120-973-767
| 価格 | 4480万円 (税込) |
| 所在地 | 東京都足立区江北3丁目 |
| 沿線・駅 | 日暮里・舎人ライナー江北駅 徒歩16分 日暮里・舎人ライナー西新井大師西駅 徒歩19分 東武大師線大師前駅 徒歩27分 |
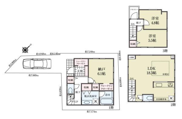
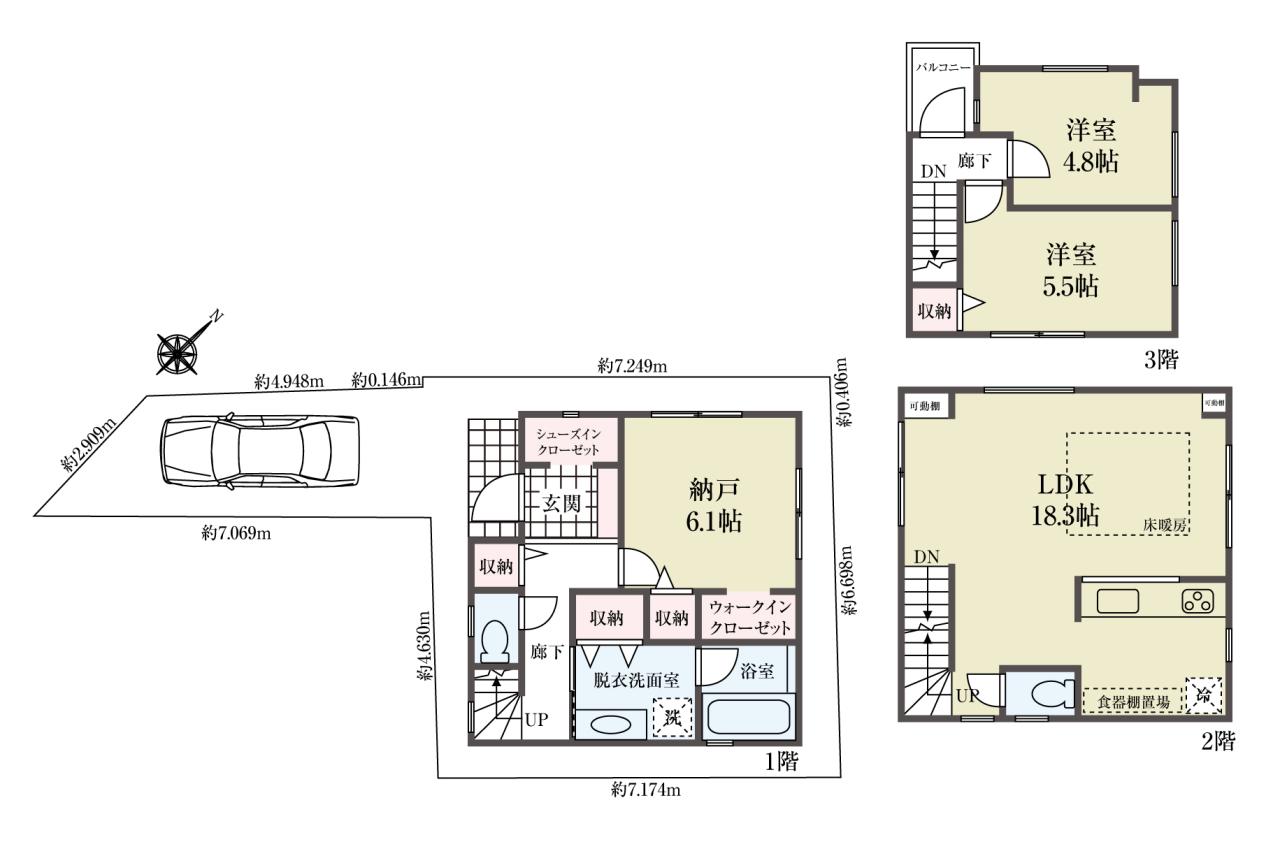
| 建物面積 | 87.18m2(26.37坪) |
| 間取り | 2LDK+S |
間取り・区画図
おすすめポイント
【20万円分】ギフト券プレゼント企画!ハウスプラザ竹の塚店で実施中です!
【プレゼント企画について】
※予算上限に達した時点で終了させていただきます。
※2026年2月末日までにご成約の方が対象となります。
詳細はスタッフまでお気軽にお問い合わせください。
■モデルハウスいつでも見学可能です!
■仕様設備にこだわり抜いたデザイナーズ邸宅。
■家事の時短に食洗機、雨の日に便利な浴室乾燥機、寒い季節に床暖房など、あって嬉しいが揃っております
■乾燥機「乾太くん」が標準完備!洗濯物がすぐ乾きます!
■全居室2面採光とLDKは3面採光を採用!開放感ある室内となっております。
■周辺環境充実!来年春オープンの「ベルクス鹿西テラス」も徒歩圏内にございます!
■収納力がある家!SICやWICはもちろん、リビングには稼働棚も付いてます
■住宅ローンに自信があります。諸費用やおまとめローンなど何でもご相談ください。
物件詳細
| 所在地 | 東京都足立区江北3丁目【以下未定】 | ||
|---|---|---|---|
| 交通 | 日暮里・舎人ライナー江北駅 徒歩16分 日暮里・舎人ライナー西新井大師西駅 徒歩19分 東武大師線大師前駅 徒歩27分 |
||
| 総戸数 | 1戸 | ||
| 販売戸数 | 1戸 | ||
| 価格 | 4480万円 (税込) | ||
| 土地面積 | 64.36m2(19.46坪)(うち路地状部分:14.00m2) | ||
| 建物面積 | 87.18m2(26.37坪) | ||
| 土地権利 | 所有権 | ||
| 間取り | 2LDK+S | ||
| 築年月 | 令和8年2月 | ||
| 構造 | 木造 地上3階建て | ||
| 都市計画 | 市街化 | ||
| 用途地域 | 第1種住居地域 | ||
| 建ぺい率/容積率 | 70% / 160% | ||
| 地目 | 宅地 | ||
| 接道 | 南西側 4.00m 私道 | ||
| 私道負担 | 無 |
||
| 現況 | 未完成 | ||
| 設備 | 都市ガス 公営水道 公共下水 | ||
| 入居年月 | 期日指定 2026年2月下旬 | ||
| 取引形態 | 媒介 | ||
| 備考 | 第25UDI1T建02553号 準防火地域、宅地造成工事規制区域、第2種高度地区 | ||
| 更新日 | 2026年2月7日 | ||
| 次回更新予定日 | 2026年2月23日 | ||
| 取引有効期限 | 2026年02月23日 | ||
周辺環境
| 施設 | 足立区立江北小学校 670m 足立区立江北桜中学校 1320m セブンイレブン 足立江北3丁目店 380m ベルクス江北店 520m アリオ西新井 2670m 東京女子医大足立医療センター 790m 大久保医院 480m ファミリーマート 江北三丁目店 390m ライフ江北駅前店 1150m 上沼田保育園 630m 江北さくら幼稚園 350m 足立堀之内公園 360m 北鹿浜公園 1280m 江北保育園 275m |
||
|---|---|---|---|
| 周辺の物件検索 | |||
現地見学会情報
月々の支払い
0円
| 物件価格 | 万円 |
|---|---|
| 自己資金 (頭金) |
万円 |
| 金利 | % |
| 返済年数 |
40年(NEW) 35年(一般的) 30年 |
※返済金額はあくまでも目安の数値となります。詳しくは下記よりご相談ください。
資金計画相談お問い合わせ 竹の塚店
0120-973-767
























































