江戸川区一之江6丁目 新築一戸建て
月々の支払い
0円
| 物件価格 | 万円 |
|---|---|
| 自己資金 (頭金) |
万円 |
| 金利 | % |
| 返済年数 |
40年(NEW) 35年(一般的) 30年 |
※返済金額はあくまでも目安の数値となります。詳しくは下記よりご相談ください。
資金計画相談お問い合わせ ▶ 篠崎店
0120-664-511
| 価格 | 7490万円 (税込) |
| 所在地 | 東京都江戸川区一之江6丁目 |
| 沿線・駅 | 都営新宿線一之江駅 徒歩12分 東京メトロ東西線葛西駅バス11分 都営バス 「春江町4丁目」バス停 停歩4分 JR中央・総武線平井駅バス24分 都営バス 「春江町4丁目」バス停 停歩4分 |
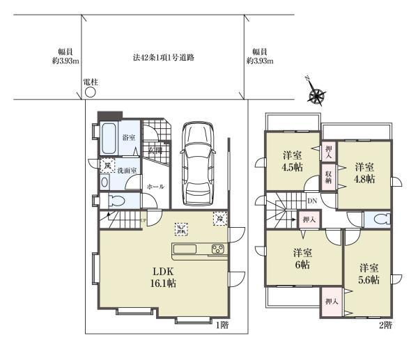
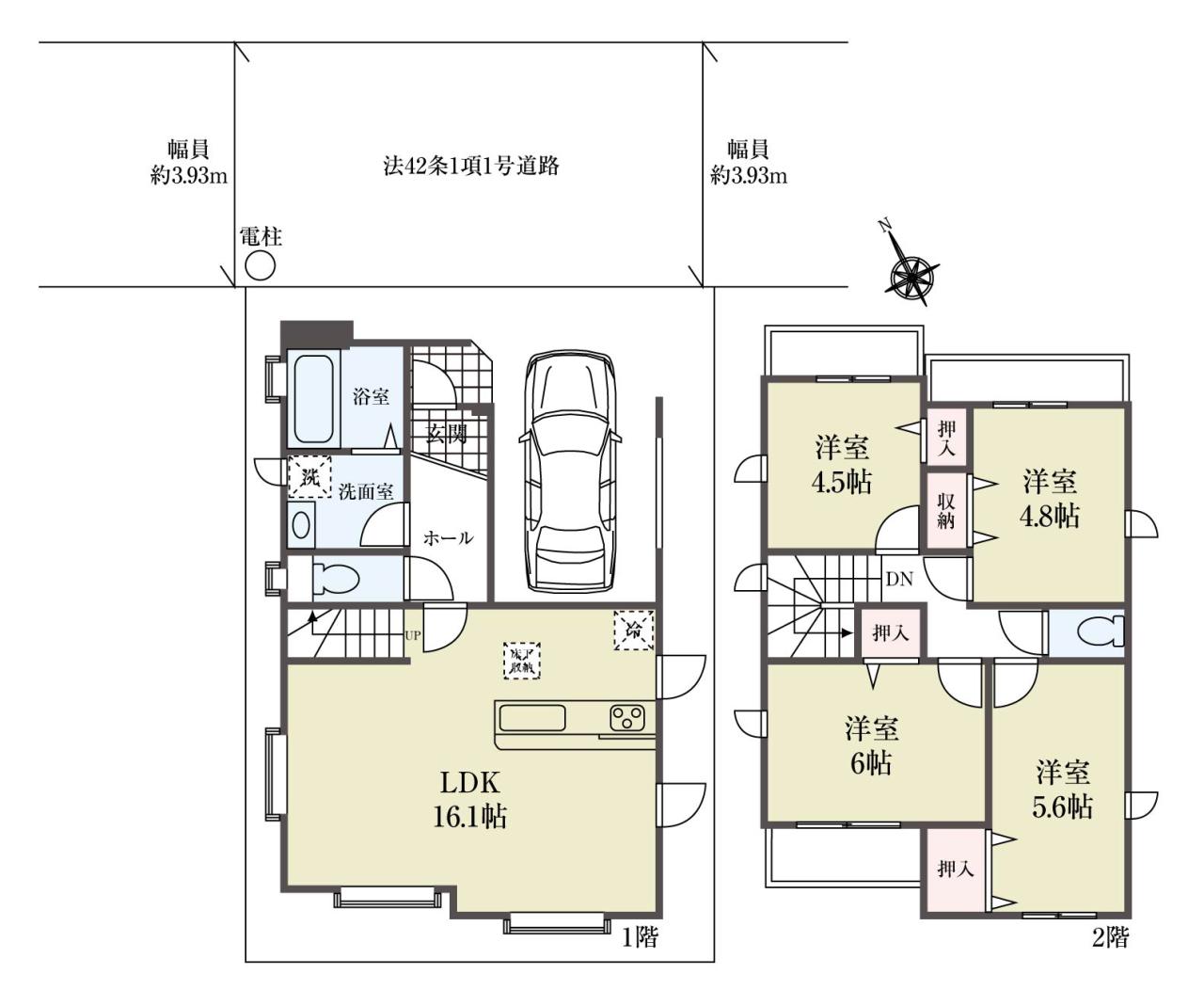
| 建物面積 | 97.91m2(29.61坪) うち1F車庫 面積:11.17m2 |
| 間取り | 4LDK |
間取り・区画図
おすすめポイント
即日ご案内致します!ハウスプラザ篠崎店
【おかげさまでグーグル口コミ☆4.9】
【ZEH水準2階建て】【太陽光パネル設置】【一之江駅徒歩12分】
【日当たり通風良好】【災害に強いお家】
【営業が感じたここがオススメポイント】
・まずは何といっても都営新宿線「一之江」駅徒歩12分の日当たり通風良好な好立地
・いつでも現地やモデルハウスまでご案内いたします
・前面道路は車通りの少ない安心安全な住環境です
・1階リビング水廻り集約の2階建て車庫付き4LDK
・玄関を開けると広々ホールが気持ちいい空間
・各お部屋の広さは十分確保しており、収納スペースは充実
・1階リビングフロアは16帖超えの家具の配置がしやすい広々空間
・太陽光発電システム搭載のZEH水準住宅
・住宅性能評価取得物件(設計性能評価・建設性能評価)W取得
・自然災害に強いお家です
【生活環境良好な住環境】
江戸川区には住宅地域が広がり、区内には幼稚園や保育園、小中学校なども充実しており、子育て世代にも優しい環境です。大小さまざまな公園が存在し、自然が豊かで過ごしやすい環境が整っています
物件詳細
| 所在地 | 東京都江戸川区一之江6丁目7 | ||
|---|---|---|---|
| 交通 | 都営新宿線一之江駅 徒歩12分 東京メトロ東西線葛西駅バス11分 都営バス 「春江町4丁目」バス停 停歩4分 JR中央・総武線平井駅バス24分 都営バス 「春江町4丁目」バス停 停歩4分 |
||
| 総戸数 | 1戸 | ||
| 販売戸数 | 1戸 | ||
| 価格 | 7490万円 (税込) | ||
| 土地面積 | 79.34m2(24坪) | ||
| 建物面積 | 97.91m2(29.61坪) うち1F車庫 面積:11.17m2 | ||
| 土地権利 | 所有権 | ||
| 間取り | 4LDK | ||
| 築年月 | 令和7年12月 | ||
| 構造 | 木造 地上2階建て | ||
| 都市計画 | 市街化 | ||
| 用途地域 | 第1種中高層住居専用地域 | ||
| 建ぺい率/容積率 | 60% / 160% | ||
| 地目 | 宅地 | ||
| 接道 | 北東側 4.00m 公道 | ||
| 私道負担 | 無 |
||
| 現況 | 未完成 | ||
| 設備 | 都市ガス 公営水道 公共下水 | ||
| 入居年月 | 期日指定 2025年12月下旬 | ||
| 取引形態 | 媒介 | ||
| 備考 | 第HPA-25-09690-1号 景観法、航空法、宅地造成工事規制区域、準防火地域、敷地面積最低限度有(70平米)、日影制限有、第二種高度地区 | ||
| 更新日 | 2025年11月7日 | ||
| 次回更新予定日 | 2025年11月24日 | ||
| 取引有効期限 | 2025年11月24日 | ||
周辺環境
| 施設 | 江戸川区立一之江第二小学校 637m 江戸川区立松江第五中学校 613m まいばすけっと 一之江7丁目店 577m ライフ 船堀店 821m セブン-イレブン 江戸川松江6丁目店 423m セブン-イレブン 江戸川一之江7丁目店 438m ウエルシア 江戸川二之江店 523m タムスわんぱく保育園船堀 656m 二ノ江幼稚園 548m なかぞのクリニック 523m 一之江六丁目児童遊園 49m 船堀五丁目児童遊園 302m 一之江消化器内科クリニック 474m まなびの森保育園 一之江 216m |
||
|---|---|---|---|
| 周辺の物件検索 | |||
現地見学会情報
月々の支払い
0円
| 物件価格 | 万円 |
|---|---|
| 自己資金 (頭金) |
万円 |
| 金利 | % |
| 返済年数 |
40年(NEW) 35年(一般的) 30年 |
※返済金額はあくまでも目安の数値となります。詳しくは下記よりご相談ください。
資金計画相談お問い合わせ 篠崎店
0120-664-511










































