江戸川区大杉3丁目 中古一戸建て
月々の支払い
0円
| 物件価格 | 万円 |
|---|---|
| 自己資金 (頭金) |
万円 |
| 金利 | % |
| 返済年数 |
40年(NEW) 35年(一般的) 30年 |
※返済金額はあくまでも目安の数値となります。詳しくは下記よりご相談ください。
資金計画相談お問い合わせ ▶ 篠崎店
0120-664-511
| 価格 | 4380万円 (税込) |
| 所在地 | 東京都江戸川区大杉3丁目 |
| 沿線・駅 | JR中央・総武線小岩駅バス11分 京成バス 「大杉第二小学校前」バス停 停歩8分 都営新宿線一之江駅バス7分 京成バス 「大杉第二小学校」バス停 停歩7分 東京メトロ東西線葛西駅バス16分 京成バス 「大杉第二小学校」バス停 停歩7分 |
| 建物面積 | 90.25m2(27.3坪) |
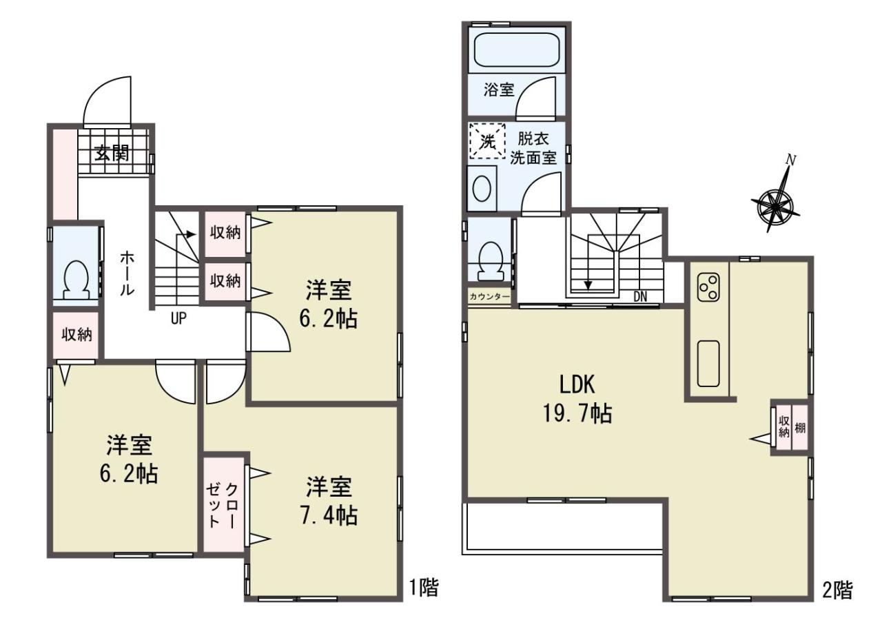
| 間取り | 3LDK |
間取り・区画図
おすすめポイント
即日ご案内致します!ハウスプラザ篠崎店
【おかげさまでグーグル口コミ☆4.9】
【リフォーム工事完了】【2階建て車庫付き】【リビング19帖以上】
【頭金0円からOK】【全居室6帖以上】
【営業が感じたここがオススメポイント】
・まずは何といっても日当たり通風良好なフルリフォーム戸建て
・リフォーム工事完了いたしました!いつでもご見学いただけます
・前面道路は車通りの少ない安心安全な住環境です
・玄関を開けると広々ホールが気持ちいい空間+シューズクローク付き
・各お部屋の広さは6帖以上確保しており、収納スペースは充実
・2階リビングフロアは19帖以上の家具の配置がしやすい、広々ホールが気持ちいい空間
・2階リビング水廻り集約のママ楽家事動線
・あったら嬉しいキッチンパントリースペース付き
・頭金0円からご購入が可能です
・月々11万円台のお支払いで2階建て3LDK車庫付き戸建てにお住まいいただけます
【生活環境良好な住環境】
江戸川区南小岩に位置する小岩駅。駅前には大きな商店街がいくつもあり、商業施設や大型スーパーなど買い物環境が充実
物件詳細
| 所在地 | 東京都江戸川区大杉3丁目539-12 | ||
|---|---|---|---|
| 交通 | JR中央・総武線小岩駅バス11分 京成バス 「大杉第二小学校前」バス停 停歩8分 都営新宿線一之江駅バス7分 京成バス 「大杉第二小学校」バス停 停歩7分 東京メトロ東西線葛西駅バス16分 京成バス 「大杉第二小学校」バス停 停歩7分 |
||
| 総戸数 | 1戸 | ||
| 販売戸数 | 1戸 | ||
| 価格 | 4380万円 (税込) | ||
| 土地面積 | 86.00m2(26.01坪)(うち路地状部分:23.90m2) | ||
| 建物面積 | 90.25m2(27.3坪) | ||
| 土地権利 | 所有権 | ||
| 間取り | 3LDK | ||
| 築年月 | 平成25年2月 | ||
| 構造 | 木造 地上2階建て | ||
| 都市計画 | 市街化 | ||
| 用途地域 | 第1種中高層住居専用地域 | ||
| 建ぺい率/容積率 | 60% / 150% | ||
| 地目 | 宅地 | ||
| 接道 | 南側 6.50m 公道 | ||
| 私道負担 | 無 |
||
| 現況 | 完成済 | ||
| 設備 | 都市ガス 公営水道 公共下水 | ||
| 入居年月 | 即時 | ||
| 取引形態 | 媒介 | ||
| 備考 | 2025/07 内装リフォーム済・キッチン・浴室・トイレ・壁・床・全室・洗面所・給湯器・建具・ 全面 景観法、航空法、宅地造成工事規制区域、準防火地域、敷地面積最低限度有(70平米)、日影制限有、16m第二種高度地区、53条区域、【ゴミ置き場持分】0.9平米:持ち分15分の5、【現況】空家 |
||
| 更新日 | 2025年11月6日 | ||
| 次回更新予定日 | 2025年12月8日 | ||
| 取引有効期限 | 2025年12月08日 | ||
周辺環境
| 施設 | 江戸川区立大杉第二小学校 497m 江戸川区立松江第四中学校 1198m 肉のハナマサPLUS 新堀店 908m まいばすけっと 江戸川中央2丁目店 1054m セブン-イレブン 江戸川大杉2丁目店 423m ローソンストア100 西一之江店 822m ドラッグセイムス 春江店 1037m 東一の江こども園 840m アゼリーアネックス保育園 661m 大杉神明幼稚園 933m 大杉三丁目公園 179m 穀倉公園 434m 京葉病院 872m ゆずりは保育園 144m |
||
|---|---|---|---|
| 周辺の物件検索 | |||
現地見学会情報
月々の支払い
0円
| 物件価格 | 万円 |
|---|---|
| 自己資金 (頭金) |
万円 |
| 金利 | % |
| 返済年数 |
40年(NEW) 35年(一般的) 30年 |
※返済金額はあくまでも目安の数値となります。詳しくは下記よりご相談ください。
資金計画相談お問い合わせ 篠崎店
0120-664-511


























































