葛飾区小菅2丁目 新築一戸建て
月々の支払い
0円
| 物件価格 | 万円 |
|---|---|
| 自己資金 (頭金) |
万円 |
| 金利 | % |
| 返済年数 |
40年(NEW) 35年(一般的) 30年 |
※返済金額はあくまでも目安の数値となります。詳しくは下記よりご相談ください。
資金計画相談お問い合わせ ▶ 本店(営業部)
0120-566-877
| 価格 | 6280万円 (税込) |
| 所在地 | 東京都葛飾区小菅2丁目 |
| 沿線・駅 | 京成本線堀切菖蒲園駅 徒歩9分 東京メトロ千代田線綾瀬駅 徒歩16分 東武伊勢崎線堀切駅 徒歩20分 |
| 建物面積 | 100.26m2(30.32坪) |
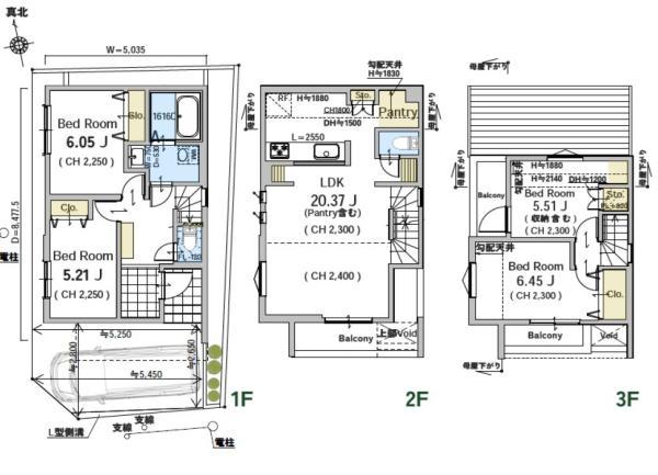
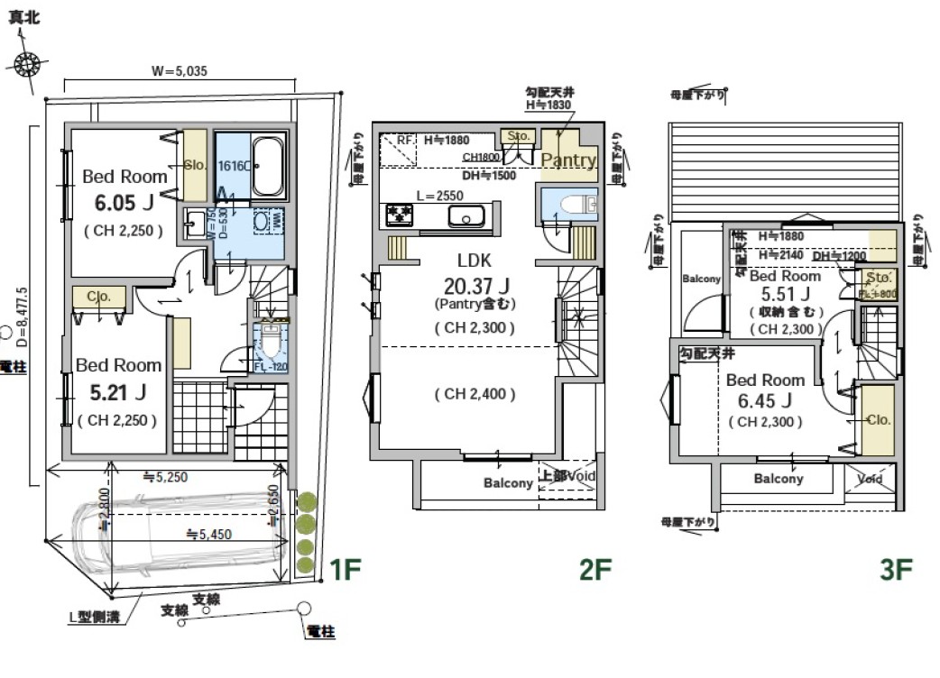
| 間取り | 4LDK |
間取り・区画図
おすすめポイント
今から見れます!【グーグル口コミ☆4.4】【諸条件相談可】
□■営業のオススメポイント□■
・京成本線「堀切菖蒲園」駅徒歩9分、東京メトロ千代田線「綾瀬」駅徒歩16分の立地
・エアコンを2台設置しております
・南西角地の為、日当たり良好となっております
・LDK20帖以上あるため、お好きな家具の配置が可能となっております
・葛飾区立こすげ小学校徒歩6分、葛飾区綾瀬中学校徒歩4分の立地にございます
・フラット35金利はBタイプとなります。
平日、夜間問わずお気軽にお問い合わせ下さい。
周辺環境やその他の物件情報も含めてご提案させて頂きますので是非一度ご相談下さいませ。
物件詳細
| 所在地 | 東京都葛飾区小菅2丁目【住居表示】 | ||
|---|---|---|---|
| 交通 | 京成本線堀切菖蒲園駅 徒歩9分 東京メトロ千代田線綾瀬駅 徒歩16分 東武伊勢崎線堀切駅 徒歩20分 |
||
| 総戸数 | 1戸 | ||
| 販売戸数 | 1戸 | ||
| 価格 | 6280万円 (税込) | ||
| 土地面積 | 74.28m2(22.46坪) | ||
| 建物面積 | 100.26m2(30.32坪) | ||
| 土地権利 | 所有権 | ||
| 間取り | 4LDK | ||
| 築年月 | 令和7年12月 | ||
| 構造 | 木造 地上3階建て | ||
| 都市計画 | 市街化 | ||
| 用途地域 | 準工業地域 | ||
| 建ぺい率/容積率 | 70% / 200% | ||
| 地目 | 宅地 | ||
| 接道 | 南側 5.30m 公道 西側 5.30m 公道 |
||
| 私道負担 | 有(面積:112.00m²(33.88坪)×持分:113/1000) |
||
| 現況 | 未完成 | ||
| 設備 | 都市ガス 公営水道 公共下水 | ||
| 入居年月 | 期日指定 2025年12月上旬 | ||
| 取引形態 | 媒介 | ||
| 備考 | 第25UDI1W建01040号 準防火地域、第2種高度地区 | ||
| 更新日 | 2025年11月4日 | ||
| 次回更新予定日 | 2025年11月20日 | ||
| 取引有効期限 | 2025年11月20日 | ||
周辺環境
| 施設 | 葛飾区立こすげ小学校 429m 葛飾区立綾瀬中学校 318m 小谷野しょうぶ保育園 367m セブンイレブン 葛飾小菅2丁目店 399m ファミリーマート 堀切店 439m まいばすけっと 堀切4丁目店 572m コモディイイダ 小菅店 669m EQUiA(エキア)北千住 2743m 堀切中央病院 687m 小菅西公園 677m まいばすけっと 堀切5丁目店 613m アブアブ赤札堂堀切店 691m 堀切水辺公園 1408m 葛飾区立小菅保育園 265m |
||
|---|---|---|---|
| 周辺の物件検索 | |||
現地見学会情報
月々の支払い
0円
| 物件価格 | 万円 |
|---|---|
| 自己資金 (頭金) |
万円 |
| 金利 | % |
| 返済年数 |
40年(NEW) 35年(一般的) 30年 |
※返済金額はあくまでも目安の数値となります。詳しくは下記よりご相談ください。
資金計画相談お問い合わせ 本店(営業部)
0120-566-877





















































