江戸川区東小岩6丁目 中古一戸建て
月々の支払い
0円
| 物件価格 | 万円 |
|---|---|
| 自己資金 (頭金) |
万円 |
| 金利 | % |
| 返済年数 |
40年(NEW) 35年(一般的) 30年 |
※返済金額はあくまでも目安の数値となります。詳しくは下記よりご相談ください。
資金計画相談お問い合わせ ▶ 篠崎店
0120-664-511
| 価格 | 1億2000万円 (税込) |
| 所在地 | 東京都江戸川区東小岩6丁目 |
| 沿線・駅 | JR中央・総武線小岩駅 徒歩12分 都営新宿線篠崎駅バス15分 京成バス 「東小岩6丁目」バス停 停歩2分 京成本線江戸川駅 徒歩8分 |
| 建物面積 | 159.76m2(48.32坪) |
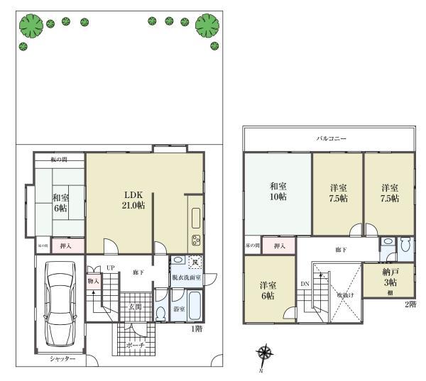
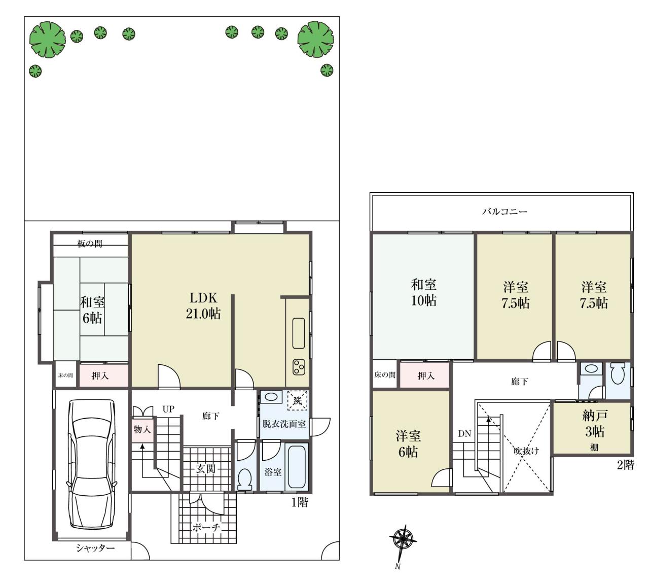
| 間取り | 5LDK+S |
間取り・区画図
おすすめポイント
ご見学ご予約受付中!ハウスプラザ篠崎店
【おかげさまでグーグル口コミ☆4.9】
【小岩駅徒歩12分】【敷地面積200平米超え】【建物面積150平米超え】
【庭付き約40平米】【シャッター付きガレージ】
【営業が感じたここがオススメポイント】
・まずは何といってもJR総武線「小岩」駅徒歩12分の公道面に面した日当たり通風良好な好立地
・ご見学ご予約受付中です!お気軽にお問い合わせください
・敷地面積が200平米超え(約61坪)建物面積が159平米超え(約48坪)
・シャッター付きガレージのお家です
・大きなお庭がとても魅力的です
・前面道路は車通りの少ない安心安全な住環境です
・全居室6帖以上のしっかりとしたお部屋の配置です
・1階リビングフロアは21帖超えの広々とした空間
・玄関を開けると吹き抜け天井の開放的な室内が出迎えてくれます
【生活環境良好な住環境】
江戸川区南小岩に位置する小岩駅。都心に出やすい立地ながら、ゆったりと流れる江戸川と新中川に囲まれた自然豊かなエリアです。駅前には大きな商店街がいくつもあり、商業施設や大型スーパーなど買い物環境が充実
物件詳細
| 所在地 | 東京都江戸川区東小岩6丁目32 | ||
|---|---|---|---|
| 交通 | JR中央・総武線小岩駅 徒歩12分 都営新宿線篠崎駅バス15分 京成バス 「東小岩6丁目」バス停 停歩2分 京成本線江戸川駅 徒歩8分 |
||
| 総戸数 | 1戸 | ||
| 販売戸数 | 1戸 | ||
| 価格 | 1億2000万円 (税込) | ||
| 土地面積 | 202.87m2(61.36坪) | ||
| 建物面積 | 159.76m2(48.32坪) | ||
| 土地権利 | 所有権 | ||
| 間取り | 5LDK+S | ||
| 築年月 | 昭和52年4月 | ||
| 構造 | 木造 地上2階建て | ||
| 都市計画 | 市街化 | ||
| 用途地域 | 第1種住居地域 | ||
| 建ぺい率/容積率 | 60% / 200% | ||
| 地目 | 宅地 | ||
| 接道 | 北側 5.45m 公道 | ||
| 私道負担 | 無 |
||
| 現況 | 完成済 | ||
| 設備 | 都市ガス 公営水道 公共下水 | ||
| 入居年月 | 相談 | ||
| 取引形態 | 媒介 | ||
| 備考 | 景観法、航空法、宅地造成工事規制区域、準防火地域、敷地面積最低限度有(70平米)、日影制限有、第二種高度地区【現況】居住中 | ||
| 更新日 | 2025年11月3日 | ||
| 次回更新予定日 | 2025年11月19日 | ||
| 取引有効期限 | 2025年11月19日 | ||
周辺環境
| 施設 | 江戸川区立小岩小学校 276m 江戸川区立小岩第一中学校 627m まいばすけっと 東小岩6丁目店 198m まいばすけっと 東小岩3丁目店 417m ファミリーマート 東小岩六丁目店 277m ファミリーマート みすみ北小岩店 645m ユニバーサルドラッグ 江戸川駅前店 652m 小岩駅前みつばち保育園 436m 江戸川白百合幼稚園 755m 江戸川双葉幼稚園 890m 北小岩一丁目児童遊園 297m 小岩の森公園 438m 小岩医院 278m 桜華保育園 424m |
||
|---|---|---|---|
| 周辺の物件検索 | |||
現地見学会情報
月々の支払い
0円
| 物件価格 | 万円 |
|---|---|
| 自己資金 (頭金) |
万円 |
| 金利 | % |
| 返済年数 |
40年(NEW) 35年(一般的) 30年 |
※返済金額はあくまでも目安の数値となります。詳しくは下記よりご相談ください。
資金計画相談お問い合わせ 篠崎店
0120-664-511





























